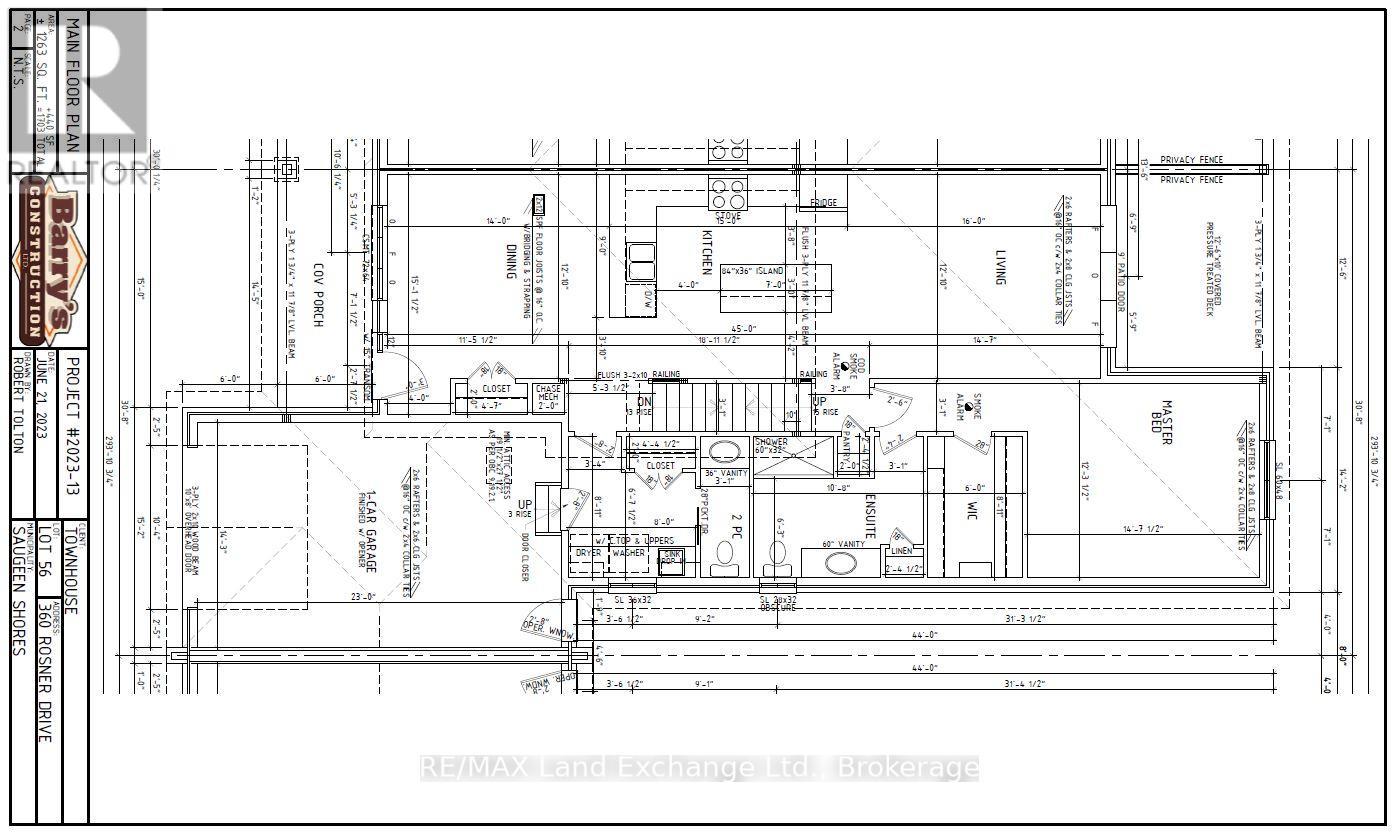
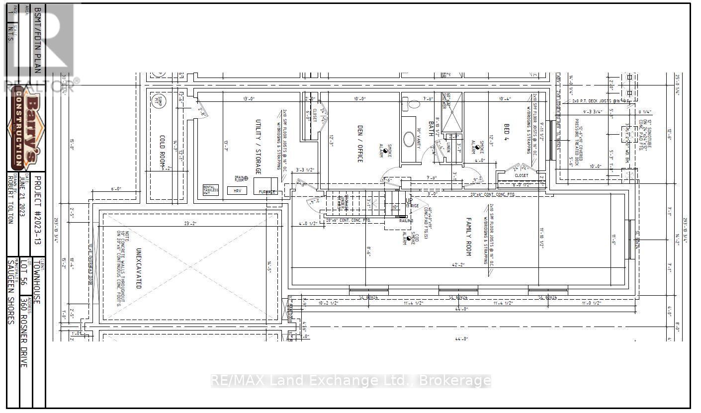
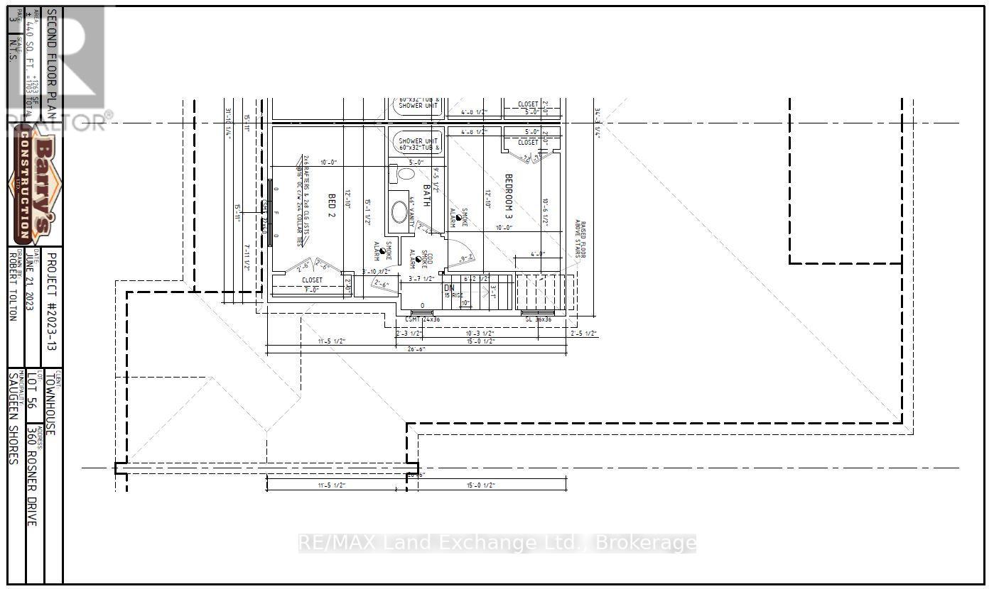
The exterior is complete for this brand new 2 storey freehold townhome at 360 Rosner Drive in Port Elgin. This model is 1703 sqft with a full unfinished basement that can be finished for an additional $30,000 including HST. The basement would include a family room with gas fireplace, full bath, den and 4th bedroom. The main floor will feature 9ft ceilings, Quartz counters in the kitchen, hardwood and ceramic flooring, 9ft patio doors to a covered back deck measuring 10 x 12'6, primary bedroom with ensuite and laundry. Upstairs there are 2 bedrooms and a 4pc bath. The yard will be entirely sodded and the driveway is concrete. Prices subject to change without notice. HST is in addition to the asking price. The Builder will co operate with the Buyers to secure the HST rebate provided it is approved by the Government and the Buyer is entitled to it. (id:47421)
Interested in obtaining the full price history for this property? Contact us!Contact us! Our real estate professionals would be happy to provide a complete listing history with historical sold prices and dates.
Detailed Information
Bedrooms
3
Bathrooms
3
Lot
30 x 138 ft
Amenities Nearby
Schools
Equipment
Water Heater - Tankless, Water Heater
Features
Flat site, Sump Pump
Listing Contract Date
2025-07-15
Location Description
Cross Streets: Rosner Drive south side between Highland and Bruce. ** Directions: Turn West of Bruce St.
Ownership Type
Freehold
# of Parking Spaces
2
Property Type
Single Family
Rental Equipment
Water Heater - Tankless, Water Heater
Structures
Deck, Porch
Transaction Type
For sale
Zoning Description
R4-17
Building
Age
New building
Appliances
Water Heater - Tankless, Water meter, Garage door opener
Basement Development
Unfinished
Basement Type
Full (Unfinished)
Construction Style (Attachment)
Attached
Cooling Type
None, Air exchanger
Exterior Finish
Stone, Vinyl siding
Fire Protection
Smoke Detectors
Flooring Type
Hardwood, Tile
Foundation Type
Poured Concrete
# of Half Bathrooms
1
Heating Fuel
Natural gas
Heating Type
Forced air
Stories Total
2
Type
Row / Townhouse
Utility Water
Municipal water
Rooms
Room
Level
Dimensions
Notes
Bedroom 2
Second level
3.2 m x 3.05 m
Bedroom 3
Second level
3.05 m x 3.91 m
Dining room
Main level
4.27 m x 2.87 m
Kitchen
Main level
4.57 m x 2.74 m
Living room
Main level
4.88 m x 3.91 m
Primary Bedroom
Main level
3.73 m x 4.44 m
Laundry room
Main level
2.01 m x 2.44 m
Parking Spaces
Name
Spaces
Attached Garage
Garage
Tandem
Utilities
Type
Description
Cable
Available
Electricity
Installed
Wireless
Available
Sewer
Installed
Land
Total Size
30 x 138 FT | under 1/2 acre
Access Type
Year-round access
Amenities
Schools
Sewer
Sanitary sewer
Size of Irregular Land
30 x 138 FT
Terms of Use
Please review and agree to the following terms of use to access the listing content:
REALTOR®, REALTORS®, and the REALTOR® logo are certification marks that are owned by REALTOR® Canada Inc. and licensed exclusively to The Canadian Real Estate Association (CREA). These certification marks identify real estate professionals who are members of CREA and who must abide by CREA's By-Laws, Rules, and the REALTOR® Code. The MLS® trademark and the MLS® logo are owned by CREA and identify the quality of services provided by real estate professionals who are members of CREA;
The information contained on this site is based in whole or in part on information that is provided by members of CREA, who are responsible for its accuracy. CREA reproduces and distributes this information as a service for its members and assumes no responsibility for its accuracy;
This website is operated by a brokerage or salesperson who is a member of CREA;
The listing content on this website is protected by copyright and other laws, and is intended solely for the private, non-commercial use by individuals. Any other reproduction, distribution or use of the content, in whole or in part, is specifically forbidden. The prohibited uses include commercial use, "screen scraping", "database scraping", and any other activity intended to collect, store, reorganize or manipulate data on the pages produced by or displayed on this website.
The information contained on this site is based in whole or in part on information that is provided under copyright by the Toronto Regional Real Estate Board (TRREB) or by members of The Canadian Real Estate Association (CREA), who are responsible for its accuracy. TRREB and CREA reproduce and distribute this information as a service for their members and assume no responsibility for its accuracy. All information displayed is believed to be accurate but is not guaranteed and should be independently verified. No warranties or representations of any kind are made with respect to the accuracy of such information. The information provided herein must only be used by consumers that have a bona fide interest in the purchase, sale, or lease of real estate and may not be used for any commercial purpose or any other purpose.