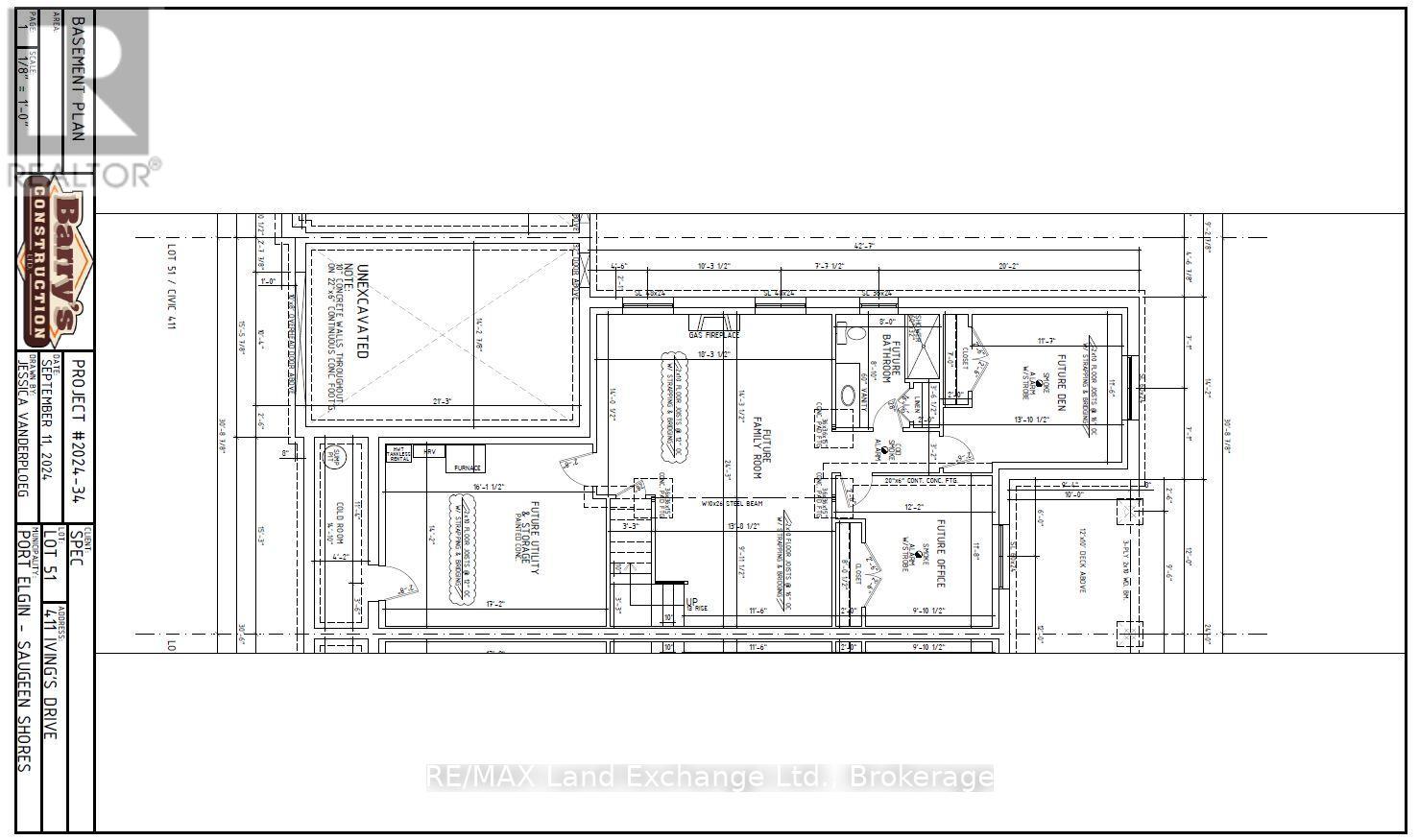
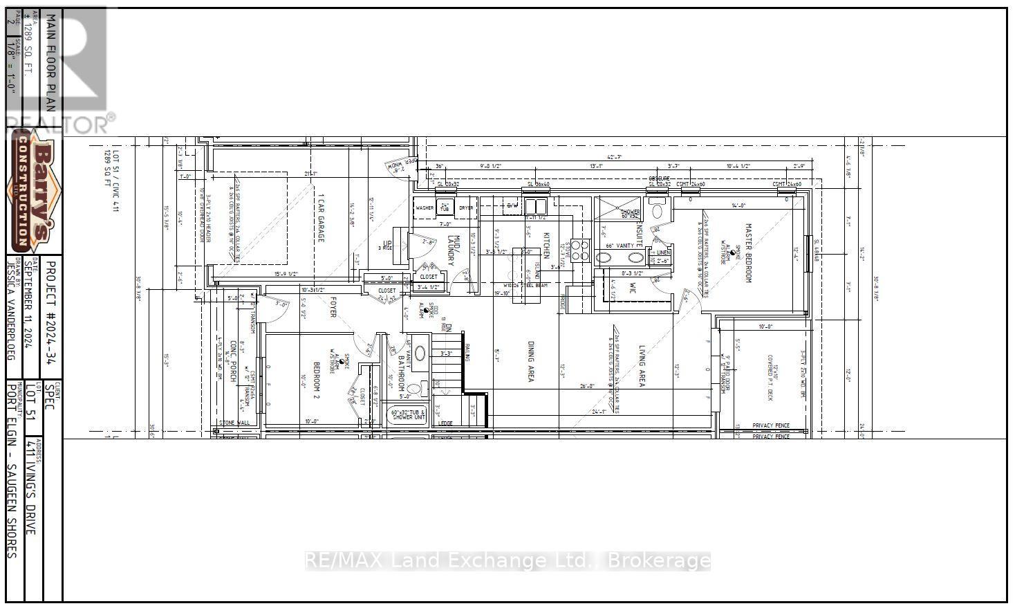
Under construction, this 1289 sqft freehold bungalow townhome at 411 Ivings Dr, Port Elgin is expected to be move-in ready in approximately 90 days. The main floor offers a bright open-concept layout featuring a spacious kitchen, dining area, and living room with walkout to a 12' x 10' covered deck. Includes 2 bedrooms, 2 full bathrooms, and a laundry room with inside entry to garage. The fully finished basement adds 2 more bedrooms, a full bathroom, and a large family room, offering nearly double the living space. Features Include: Quartz kitchen countertops, Hardwood & ceramic flooring throughout main floor, 9' ceilings, Gas fireplace, Hardwood staircase to basement, Sodded yard & concrete driveway. HST is in addition to the asking price. The Builder will co operate with the Buyers to secure the HST rebate provided it is approved by the Government and the Buyer is entitled to it. Prices subject to change without notice (id:47421)
Interested in obtaining the full price history for this property? Contact us!Contact us! Our real estate professionals would be happy to provide a complete listing history with historical sold prices and dates.
Detailed Information
Bedrooms
2+2
Bathrooms
3
Lot
30.58 x 108 ft
Amenities Nearby
Schools, Park
Equipment
Water Heater - Tankless
Features
Flat site
Listing Contract Date
2025-06-19
Location Description
Cross Streets: Ivings Dr & Hwy 21. ** Directions: From Hwy 21 turn west on Ivings Dr.
Ownership Type
Freehold
# of Parking Spaces
2
Property Type
Single Family
Rental Equipment
Water Heater - Tankless
Structures
Deck, Porch
Transaction Type
For sale
Building
Age
New building
Amenities
Fireplace(s)
Appliances
Garage door opener remote(s), Water Heater - Tankless, Water meter, Garage door opener
Architectural Style
Bungalow
Basement Development
Partially finished
Basement Type
N/A (Partially finished)
Construction Style (Attachment)
Attached
Cooling Type
Central air conditioning, Air exchanger
Exterior Finish
Stone, Vinyl siding
Fire Protection
Smoke Detectors
Fireplace Present
Yes
# of Fireplaces
1
Flooring Type
Hardwood, Concrete, Tile
Foundation Type
Poured Concrete
Heating Fuel
Natural gas
Heating Type
Forced air
Stories Total
1
Type
Row / Townhouse
Utility Water
Municipal water
Rooms
Room
Level
Dimensions
Notes
Utility room
Basement
4.9 m x 4.32 m
Bedroom 3
Basement
3.51 m x 3.53 m
Bedroom 4
Basement
3.56 m x 3.71 m
Family room
Basement
7.39 m x 5.16 m
Foyer
Main level
1.52 m x 3.12 m
Bedroom 2
Main level
3.05 m x 3.05 m
Mud room
Main level
2.13 m x 3.12 m
Dining room
Main level
4.75 m x 3.63 m
Kitchen
Main level
3.63 m x 3.84 m
Living room
Main level
3.73 m x 4.27 m
Primary Bedroom
Main level
3.76 m x 4.27 m
Parking Spaces
Name
Spaces
Attached Garage
Garage
Utilities
Type
Description
Cable
Available
Electricity
Installed
Sewer
Installed
Land
Total Size
30.6 x 108 FT
Amenities
Schools, Park
Sewer
Sanitary sewer
Size of Irregular Land
30.6 x 108 FT
Terms of Use
Please review and agree to the following terms of use to access the listing content:
REALTOR®, REALTORS®, and the REALTOR® logo are certification marks that are owned by REALTOR® Canada Inc. and licensed exclusively to The Canadian Real Estate Association (CREA). These certification marks identify real estate professionals who are members of CREA and who must abide by CREA's By-Laws, Rules, and the REALTOR® Code. The MLS® trademark and the MLS® logo are owned by CREA and identify the quality of services provided by real estate professionals who are members of CREA;
The information contained on this site is based in whole or in part on information that is provided by members of CREA, who are responsible for its accuracy. CREA reproduces and distributes this information as a service for its members and assumes no responsibility for its accuracy;
This website is operated by a brokerage or salesperson who is a member of CREA;
The listing content on this website is protected by copyright and other laws, and is intended solely for the private, non-commercial use by individuals. Any other reproduction, distribution or use of the content, in whole or in part, is specifically forbidden. The prohibited uses include commercial use, "screen scraping", "database scraping", and any other activity intended to collect, store, reorganize or manipulate data on the pages produced by or displayed on this website.
The information contained on this site is based in whole or in part on information that is provided under copyright by the Toronto Regional Real Estate Board (TRREB) or by members of The Canadian Real Estate Association (CREA), who are responsible for its accuracy. TRREB and CREA reproduce and distribute this information as a service for their members and assume no responsibility for its accuracy. All information displayed is believed to be accurate but is not guaranteed and should be independently verified. No warranties or representations of any kind are made with respect to the accuracy of such information. The information provided herein must only be used by consumers that have a bona fide interest in the purchase, sale, or lease of real estate and may not be used for any commercial purpose or any other purpose.