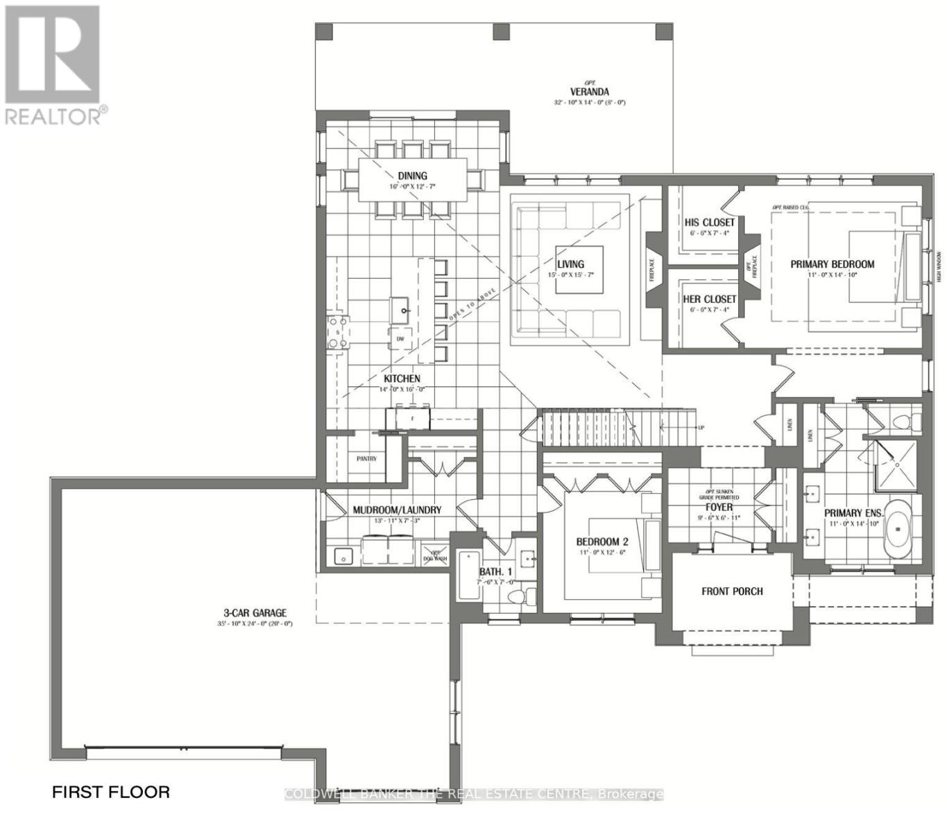
This unique Cypress Point Model has it all! 2875 sq ft of elegant open concept living space, with 4 bedrooms, 3 bathrooms, luxury designer kitchen, hardwood flooring, quartz countertops, pot lights and 3 car garage. The luxury designer kitchen with a generous size island, pantry and quartz counter space for all your entertaining. Pick your own upgrades and colour selections through the Builder to customize your home to your style. See attached Features Sheet, Bonus Plan and Floor Plan for more details. Springwinds, located in Epsom is a rare gem in a prestigious and private enclave of luxurious estate homes. Surrounded by green space and minutes from downtown Port Perry. (id:47421)
Interested in obtaining the full price history for this property? Contact us!Contact us! Our real estate professionals would be happy to provide a complete listing history with historical sold prices and dates.
Detailed Information
Bedrooms
4
Bathrooms
3
Lot
291 x 126 ft
Listing Contract Date
2026-01-05
Location Description
Marsh Hill Rd and Reach St
Ownership Type
Freehold
# of Parking Spaces
9
Property Type
Single Family
Transaction Type
For sale
Building
Age
New building
Appliances
Water Heater, Water meter
Basement Development
Unfinished
Basement Type
Full (Unfinished)
Construction Style (Attachment)
Detached
Cooling Type
None
Exterior Finish
Brick, Vinyl siding
Fireplace Present
Yes
# of Fireplaces
1
Flooring Type
Ceramic, Hardwood, Carpeted
Foundation Type
Concrete
Heating Fuel
Propane
Heating Type
Forced air
Stories Total
1.5
Type
House
Rooms
Room
Level
Dimensions
Notes
Bedroom 3
Second level
3.72 m x 3.9 m
Bedroom 4
Second level
3.54 m x 3.96 m
Foyer
Main level
2.92 m x 1.86 m
Kitchen
Main level
4.27 m x 4.88 m
Dining room
Main level
4.88 m x 3.87 m
Living room
Main level
4.57 m x 4.79 m
Primary Bedroom
Main level
3.35 m x 4.3 m
Bedroom 2
Main level
3.35 m x 3.84 m
Laundry room
Main level
4 m x 2.23 m
Parking Spaces
Name
Spaces
Attached Garage
Garage
Utilities
Type
Description
Cable
Installed
Electricity
Installed
Land
Total Size
291 x 126 FT
Sewer
Septic System
Size of Irregular Land
291 x 126 FT
Terms of Use
Please review and agree to the following terms of use to access the listing content:
REALTOR®, REALTORS®, and the REALTOR® logo are certification marks that are owned by REALTOR® Canada Inc. and licensed exclusively to The Canadian Real Estate Association (CREA). These certification marks identify real estate professionals who are members of CREA and who must abide by CREA's By-Laws, Rules, and the REALTOR® Code. The MLS® trademark and the MLS® logo are owned by CREA and identify the quality of services provided by real estate professionals who are members of CREA;
The information contained on this site is based in whole or in part on information that is provided by members of CREA, who are responsible for its accuracy. CREA reproduces and distributes this information as a service for its members and assumes no responsibility for its accuracy;
This website is operated by a brokerage or salesperson who is a member of CREA;
The listing content on this website is protected by copyright and other laws, and is intended solely for the private, non-commercial use by individuals. Any other reproduction, distribution or use of the content, in whole or in part, is specifically forbidden. The prohibited uses include commercial use, "screen scraping", "database scraping", and any other activity intended to collect, store, reorganize or manipulate data on the pages produced by or displayed on this website.
The information contained on this site is based in whole or in part on information that is provided under copyright by the Toronto Regional Real Estate Board (TRREB) or by members of The Canadian Real Estate Association (CREA), who are responsible for its accuracy. TRREB and CREA reproduce and distribute this information as a service for their members and assume no responsibility for its accuracy. All information displayed is believed to be accurate but is not guaranteed and should be independently verified. No warranties or representations of any kind are made with respect to the accuracy of such information. The information provided herein must only be used by consumers that have a bona fide interest in the purchase, sale, or lease of real estate and may not be used for any commercial purpose or any other purpose.