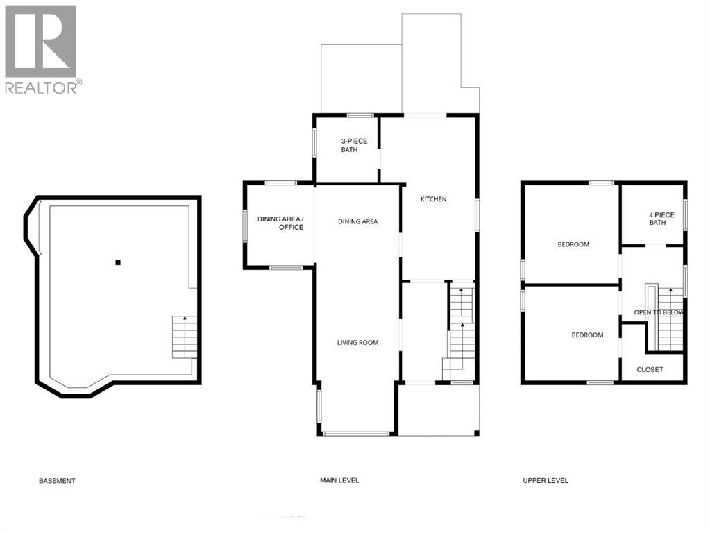
Welcome to this charming 1.5-storey home that’s full of character and move-in ready! Featuring 2 bedrooms and 2 bathrooms, this property offers comfort, practicality, and small-town living at its best. The main bathroom is conveniently located near the back entrance, complete with a shower — perfect for cleaning up after a day in the garden. The spacious kitchen is ideal for cooking and entertaining, flowing easily into the large living and dining area, where beautiful stained glass windows add a touch of timeless charm. Downstairs, you’ll find laundry in the basement, while outside, a detached garage with an automated door and concrete pad provides excellent winter parking. The fenced backyard offers plenty of space, with the option to reconfigure fencing for RV parking. The yard is a gardener’s delight, featuring fruit trees and shrubs — including blackberry, cherry, and raspberry — perfect for anyone who enjoys homegrown goodness. Located in the welcoming community of Sedgewick, this home is within walking distance to Central High Sedgewick Public School and close to everything the town has to offer — shopping, a golf course, a lake campground, and more. Plus, with hospital services just 10 minutes away in Killam, this location truly has it all. (id:47421)
Interested in obtaining the full price history for this property? Contact us!Contact us! Our real estate professionals would be happy to provide a complete listing history with historical sold prices and dates.
Detailed Information
Bedrooms
2
Bathrooms
2
Lot
15.24 x 0 m
Amenities Nearby
Golf Course, Park, Playground, Schools, Shopping
Community Features
Golf Course Development
Features
See remarks
Listing Contract Date
2025-11-07
Municipal ID
0017173030
Ownership Type
Freehold
# of Parking Spaces
4
Plan
3825P
Property Type
Single Family
Structures
Deck
Transaction Type
For sale
Zoning Description
R2
Building
Appliances
Washer, Refrigerator, Stove, Dryer
Basement Development
Unfinished
Basement Type
Partial (Unfinished)
Constructed Date
1917
Construction Material
Wood frame
Construction Style (Attachment)
Detached
Cooling Type
None
Exterior Finish
Vinyl siding, Wood siding
Flooring Type
Carpeted, Laminate, Tile
Foundation Type
See Remarks, Poured Concrete
Heating Type
Forced air
Stories Total
1.5
Total Finished Area
1143.6 sqft
Type
House
Rooms
Room
Level
Dimensions
Notes
Other
Main level
11.67 Ft x 5.42 Ft
Living room/Dining room
Main level
29.25 Ft x 10.00 Ft
Dining room
Main level
7.67 Ft x 9.50 Ft
Kitchen
Main level
19.00 Ft x 8.58 Ft
3pc Bathroom
Main level
Measurements not available
4pc Bathroom
Upper Level
6.17 Ft x 6.00 Ft
Bedroom
Upper Level
10.42 Ft x 10.17 Ft
Bedroom
Upper Level
10.75 Ft x 10.33 Ft
Other
Upper Level
6.00 Ft x 2.67 Ft
Other
Upper Level
3.83 Ft x 2.67 Ft
Parking Spaces
Name
Spaces
Detached Garage
1
Land
Total Size
7055 square feet
Amenities
Golf Course, Park, Playground, Schools, Shopping
Fence Type
Fence
Landscape Features
Fruit trees, Garden Area
Size of Irregular Land
7055.00
Terms of Use
Please review and agree to the following terms of use to access the listing content:
REALTOR®, REALTORS®, and the REALTOR® logo are certification marks that are owned by REALTOR® Canada Inc. and licensed exclusively to The Canadian Real Estate Association (CREA). These certification marks identify real estate professionals who are members of CREA and who must abide by CREA's By-Laws, Rules, and the REALTOR® Code. The MLS® trademark and the MLS® logo are owned by CREA and identify the quality of services provided by real estate professionals who are members of CREA;
The information contained on this site is based in whole or in part on information that is provided by members of CREA, who are responsible for its accuracy. CREA reproduces and distributes this information as a service for its members and assumes no responsibility for its accuracy;
This website is operated by a brokerage or salesperson who is a member of CREA;
The listing content on this website is protected by copyright and other laws, and is intended solely for the private, non-commercial use by individuals. Any other reproduction, distribution or use of the content, in whole or in part, is specifically forbidden. The prohibited uses include commercial use, "screen scraping", "database scraping", and any other activity intended to collect, store, reorganize or manipulate data on the pages produced by or displayed on this website.
The information contained on this site is based in whole or in part on information that is provided under copyright by the Toronto Regional Real Estate Board (TRREB) or by members of The Canadian Real Estate Association (CREA), who are responsible for its accuracy. TRREB and CREA reproduce and distribute this information as a service for their members and assume no responsibility for its accuracy. All information displayed is believed to be accurate but is not guaranteed and should be independently verified. No warranties or representations of any kind are made with respect to the accuracy of such information. The information provided herein must only be used by consumers that have a bona fide interest in the purchase, sale, or lease of real estate and may not be used for any commercial purpose or any other purpose.