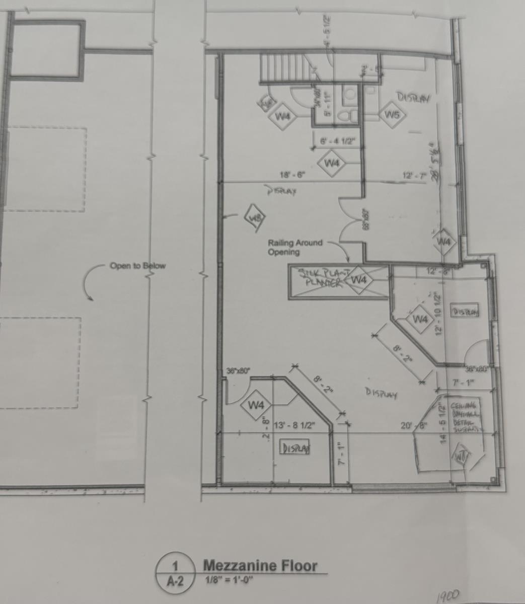
Incredible Business Condo Opportunity in NW Sherwood Park!! Premium Interior Development with rear warehouse bays 22 feet high inside and two large overhead doors (14X16), multiple offices, bullpen area, meeting rooms, reception area, upper mezzanine office area and meeting areas. Currently rented month-to-month by long term tenant. There is complete FLEXIBILITY here for any business ... an EXCELLENT OPPORTUNITY FOR INVESTOR or OWNER / USER. Easily demisable as needed, for maximum business value!! Retail, Office, Professional, Services, Light Industrial, Manufacturing, Services, Trades, Contractors, Consulting....OWN IT, USE IT or LEASE IT OUT - Allow this property to make you money. Prime Location in NW Sherwood Park, close to the Yellowhead and Anthony Henday, high traffic area, lots of parking, easy access to and from anywhere.Other Property Types: Industrial,Office,RetailSubject Space Width: 40Subject Space Depth: 102Largest Overhead Door Height: 16Ownership Interest: PrivateTitle to Land: Fee SimpleRPR Survey Available: NoSeller Rights: NoAppointment Name: Danny TchirAppointment Phone: 780-490-9373Paragon Listing ID: E4446067 (id:47421)
Interested in obtaining the full price history for this property? Contact us!Contact us! Our real estate professionals would be happy to provide a complete listing history with historical sold prices and dates.
Detailed Information
Listing Contract Date
2025-07-04
# of Parking Spaces
20
Property Type
Office
Transaction Type
For sale
Building
Constructed Date
2011
Land
Total Size
0 square feet
Terms of Use
Please review and agree to the following terms of use to access the listing content:
REALTOR®, REALTORS®, and the REALTOR® logo are certification marks that are owned by REALTOR® Canada Inc. and licensed exclusively to The Canadian Real Estate Association (CREA). These certification marks identify real estate professionals who are members of CREA and who must abide by CREA's By-Laws, Rules, and the REALTOR® Code. The MLS® trademark and the MLS® logo are owned by CREA and identify the quality of services provided by real estate professionals who are members of CREA;
The information contained on this site is based in whole or in part on information that is provided by members of CREA, who are responsible for its accuracy. CREA reproduces and distributes this information as a service for its members and assumes no responsibility for its accuracy;
This website is operated by a brokerage or salesperson who is a member of CREA;
The listing content on this website is protected by copyright and other laws, and is intended solely for the private, non-commercial use by individuals. Any other reproduction, distribution or use of the content, in whole or in part, is specifically forbidden. The prohibited uses include commercial use, "screen scraping", "database scraping", and any other activity intended to collect, store, reorganize or manipulate data on the pages produced by or displayed on this website.
The information contained on this site is based in whole or in part on information that is provided under copyright by the Toronto Regional Real Estate Board (TRREB) or by members of The Canadian Real Estate Association (CREA), who are responsible for its accuracy. TRREB and CREA reproduce and distribute this information as a service for their members and assume no responsibility for its accuracy. All information displayed is believed to be accurate but is not guaranteed and should be independently verified. No warranties or representations of any kind are made with respect to the accuracy of such information. The information provided herein must only be used by consumers that have a bona fide interest in the purchase, sale, or lease of real estate and may not be used for any commercial purpose or any other purpose.