Newly built 2025 modular home in Sicamous, BC-minutes from the lake, shops, parks, and year-round recreation. 3 bedrooms or 2 bedrooms plus a den, 2 full bathrooms. Thoughtfully designed for comfortable living with quality upgrades. Open-concept living area is bright and functional, featuring transom windows, faux ceiling beams w/integrated lighting, pot lights, & modern palette. Kitchen stands out w/maple island, extended drawers, pull-out pantry shelving, under-cabinet lighting, & stainless steel appliances. Upgraded fixtures, pendant lighting, & taller upper cabinets. Primary is a quiet retreat w/sliding barn doors, walk-in closet w/upgraded shelving, & private ensuite-double sinks, LED toe-kick lighting, & premium faucets. Two additional rooms-flexibility for guests/home office. Additions include upper laundry cabinets w/counter space, upgraded interior & exterior doors, extended 4’ garage w/side entry & upgraded doors, rear deck for outdoor enjoyment, & central A/C-to be installed. Well-maintained strata community fees of just $75/month. Year-round residence, seasonal home, low-maintenance lifestyle close to nature, this property offers modern living in a fabulous community. Houseboat Capital of Canada, Sicamous sits between Shuswap and Mara Lakes, fantastic boating, kayaking, & fishing. Winter brings world-class snowmobiling-nearby Queest/Owl Head mountains, scenic trails for hiking/cross-country skiing. Perfect blend of outdoor adventure & small-town charm! (id:47421)
Interested in obtaining the full price history for this property? Contact us!Contact us! Our real estate professionals would be happy to provide a complete listing history with historical sold prices and dates.
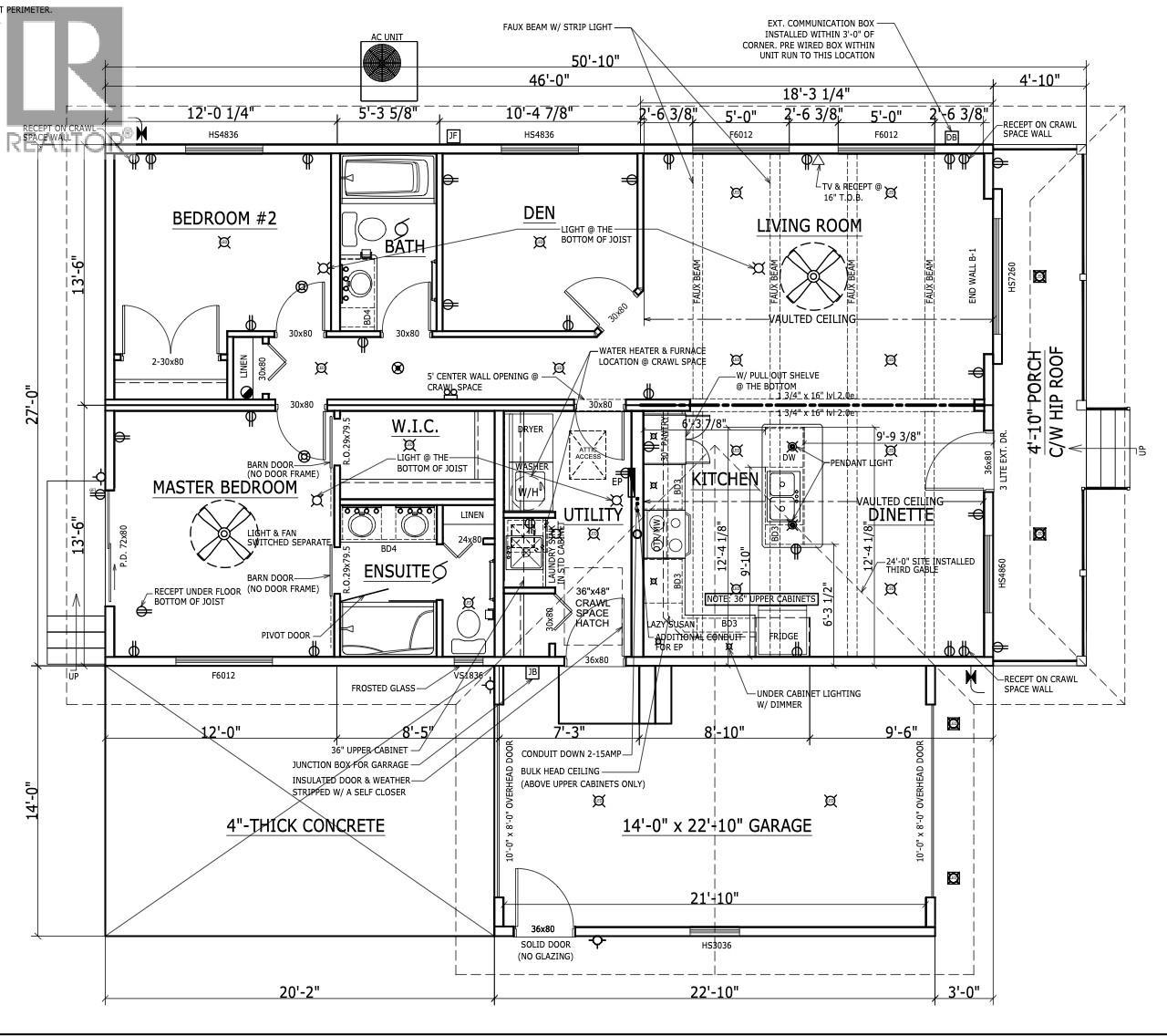
Detailed Information
Bedrooms
2
Bathrooms
2
Lot
51 x 0 ft
Community Features
Pets Allowed, Rentals Allowed
Listing Contract Date
2025-10-10
Maintenance Fee Payment Frequency
Monthly
Maintenance Fee Type
Property Management
Municipal ID
031-575-340
Ownership Type
Strata
# of Parking Spaces
2
Property Type
Single Family
Transaction Type
For sale
Views
Mountain view
Building
Basement Type
Crawl space
Constructed Date
2025
Cooling Type
Central air conditioning, See Remarks
Exterior Finish
Other
Flooring Type
Vinyl
Foundation Type
Block
Heating Fuel
Electric
Heating Type
Forced air
Roof Material
Asphalt shingle
Roof Style
Unknown
Stories Total
1
Type
Manufactured Home
Utility Water
Municipal water
Rooms
Room
Level
Dimensions
Notes
Dining room
Main level
13'8'' x 9'
Other
Main level
4'9'' x 8'2''
Utility room
Main level
13'4'' x 7'2''
Full bathroom
Main level
10'9'' x 5'5''
4pc Ensuite bath
Main level
8'4'' x 8'2''
Kitchen
Main level
13'8'' x 8'9''
Den
Main level
9'9'' x 8'9''
Bedroom
Main level
10'3'' x 11'9''
Primary Bedroom
Main level
13'4'' x 11'7''
Living room
Main level
12'6'' x 18'5''
Parking Spaces
Name
Spaces
Attached Garage
1
Utilities
Type
Description
Electricity
Available
Water
Available
Land
Total Size
0.09 acres
Current Use
Other
Sewer
Municipal sewage system
Size of Irregular Land
0.09
Terms of Use
Please review and agree to the following terms of use to access the listing content:
REALTOR®, REALTORS®, and the REALTOR® logo are certification marks that are owned by REALTOR® Canada Inc. and licensed exclusively to The Canadian Real Estate Association (CREA). These certification marks identify real estate professionals who are members of CREA and who must abide by CREA's By-Laws, Rules, and the REALTOR® Code. The MLS® trademark and the MLS® logo are owned by CREA and identify the quality of services provided by real estate professionals who are members of CREA;
The information contained on this site is based in whole or in part on information that is provided by members of CREA, who are responsible for its accuracy. CREA reproduces and distributes this information as a service for its members and assumes no responsibility for its accuracy;
This website is operated by a brokerage or salesperson who is a member of CREA;
The listing content on this website is protected by copyright and other laws, and is intended solely for the private, non-commercial use by individuals. Any other reproduction, distribution or use of the content, in whole or in part, is specifically forbidden. The prohibited uses include commercial use, "screen scraping", "database scraping", and any other activity intended to collect, store, reorganize or manipulate data on the pages produced by or displayed on this website.
The information contained on this site is based in whole or in part on information that is provided under copyright by the Toronto Regional Real Estate Board (TRREB) or by members of The Canadian Real Estate Association (CREA), who are responsible for its accuracy. TRREB and CREA reproduce and distribute this information as a service for their members and assume no responsibility for its accuracy. All information displayed is believed to be accurate but is not guaranteed and should be independently verified. No warranties or representations of any kind are made with respect to the accuracy of such information. The information provided herein must only be used by consumers that have a bona fide interest in the purchase, sale, or lease of real estate and may not be used for any commercial purpose or any other purpose.