Attention investors and smart owner-occupants. This solid all-brick bungalow is located in a quiet, family-friendly neighbourhood in Simcoe and is currently configured as a duplex-style residence, offering flexible income and living potential. The main floor unit features a bright layout with three bedrooms, kitchen, bathroom, access to the attached garage. The lower-level suite, complete with a separate entrance, includes two bedrooms, a four-piece bathroom, a spacious recreation room, and a dedicated laundry area—ideal for generating rental income or providing extended family accommodations. This property is a registered legal rental with Norfolk County and benefits from separately metered hydro for each level, allowing for independent utility management and simplified cost recovery. Recent updates include the roof, windows, and mechanical systems, enhancing long-term reliability and reducing future capital expenditures. Well-suited for investors seeking a turnkey income property or owner-occupants looking to offset mortgage costs, this versatile home offers strong functionality, durable construction, and excellent income potential in a desirable Simcoe location. (id:47421)
Interested in obtaining the full price history for this property? Contact us!Contact us! Our real estate professionals would be happy to provide a complete listing history with historical sold prices and dates.
Detailed Information
Bedrooms
3+2
Bathrooms
2
Lot
112 x 0 ft
Amenities Nearby
Schools
Features
In-Law Suite
Listing Contract Date
2025-11-08
Location Description
Hwy #3 to Ireland Rd, Turn right onto Victoria St, turn left onto Oakwood Avenue, follow to the corner of Potts Rd and Oakwood Ave.
Ownership Type
Freehold
# of Parking Spaces
3
Property Type
Single Family
Transaction Type
For sale
Zoning Description
R2
Building
Appliances
Dryer, Microwave, Refrigerator, Stove, Water meter, Washer
Architectural Style
Raised bungalow
Basement Development
Finished
Basement Type
Full (Finished)
Constructed Date
1968
Construction Style (Attachment)
Detached
Cooling Type
Central air conditioning
Exterior Finish
Brick, Concrete
Fire Protection
Smoke Detectors
Heating Fuel
Natural gas
Heating Type
Forced air, Hot water radiator heat
Stories Total
1
Type
House
Utility Water
Municipal water
Rooms
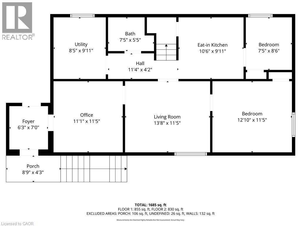
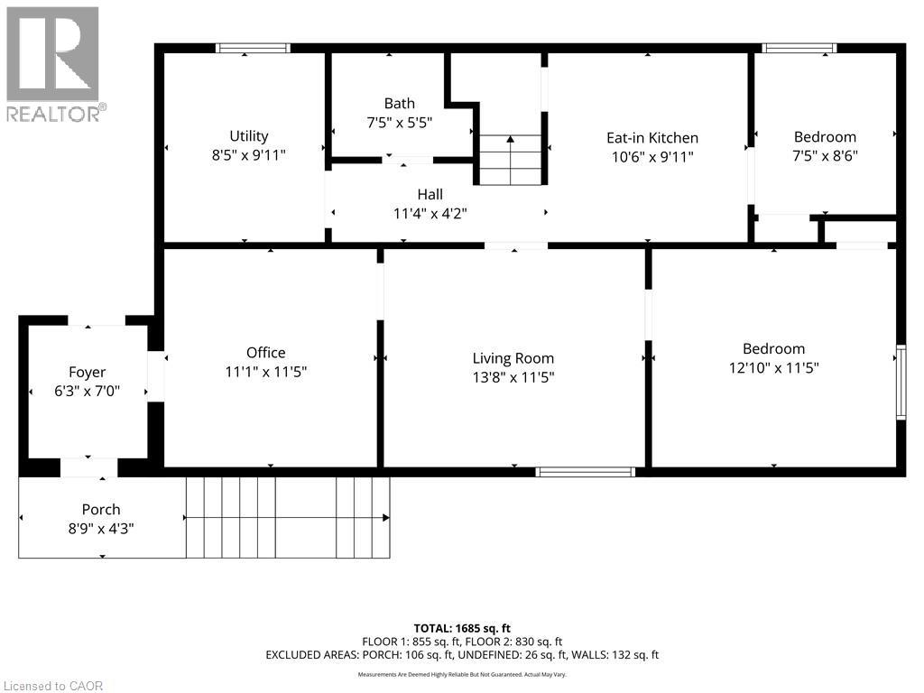
Room
Level
Dimensions
Notes
Porch
Lower level
8'9'' x 4'3''
Utility room
Lower level
8'5'' x 9'11''
4pc Bathroom
Lower level
7'5'' x 5'5''
Eat in kitchen
Lower level
10'6'' x 9'11''
Bedroom
Lower level
7'5'' x 8'6''
Bedroom
Lower level
12'10'' x 11'5''
Living room
Lower level
13'8'' x 11'5''
Office
Lower level
11'1'' x 11'5''
Foyer
Lower level
6'3'' x 7'0''
Porch
Main level
5'6'' x 4'3''
4pc Bathroom
Main level
6'10'' x 7'11''
Primary Bedroom
Main level
11'1'' x 9'11''
Bedroom
Main level
7'5'' x 11'5''
Bedroom
Main level
10'3'' x 7'10''
Foyer
Main level
4'6'' x 11'5''
Living room
Main level
12'9'' x 11'5''
Dinette
Main level
9'6'' x 10'3''
Kitchen
Main level
6'8'' x 9'11''
Parking Spaces
Name
Spaces
Attached Garage
Land
Total Size
under 1/2 acre
Access Type
Road access
Amenities
Schools
Sewer
Municipal sewage system
Terms of Use
Please review and agree to the following terms of use to access the listing content:
REALTOR®, REALTORS®, and the REALTOR® logo are certification marks that are owned by REALTOR® Canada Inc. and licensed exclusively to The Canadian Real Estate Association (CREA). These certification marks identify real estate professionals who are members of CREA and who must abide by CREA's By-Laws, Rules, and the REALTOR® Code. The MLS® trademark and the MLS® logo are owned by CREA and identify the quality of services provided by real estate professionals who are members of CREA;
The information contained on this site is based in whole or in part on information that is provided by members of CREA, who are responsible for its accuracy. CREA reproduces and distributes this information as a service for its members and assumes no responsibility for its accuracy;
This website is operated by a brokerage or salesperson who is a member of CREA;
The listing content on this website is protected by copyright and other laws, and is intended solely for the private, non-commercial use by individuals. Any other reproduction, distribution or use of the content, in whole or in part, is specifically forbidden. The prohibited uses include commercial use, "screen scraping", "database scraping", and any other activity intended to collect, store, reorganize or manipulate data on the pages produced by or displayed on this website.
The information contained on this site is based in whole or in part on information that is provided under copyright by the Toronto Regional Real Estate Board (TRREB) or by members of The Canadian Real Estate Association (CREA), who are responsible for its accuracy. TRREB and CREA reproduce and distribute this information as a service for their members and assume no responsibility for its accuracy. All information displayed is believed to be accurate but is not guaranteed and should be independently verified. No warranties or representations of any kind are made with respect to the accuracy of such information. The information provided herein must only be used by consumers that have a bona fide interest in the purchase, sale, or lease of real estate and may not be used for any commercial purpose or any other purpose.