2672 Mckenzie Road: if there was a place to call heaven on earth, then this is it. Located just a short distance up the hill from the lake and Sorrento. Well Established and wonderfully landscaped 2.88 acre property gives you a fantastic Shuswap Lake view. The uniquely designed 3 Bed / 2 Bath Custom home with double garage was built in 2011 and features exposed post and beam architecture. Modern Kitchen has had recent updates incorporating a large Quartz-topped Island with plenty of seating, new appliances, including gas range & wall oven. With a second Kitchen already in place on the lower level. The owners have done many rough-ins for possible future expansions and have plans in place for an addition of an attached carriage house. A lot of attention to detail has gone into making the yard into a well-cared for and calming place with various venues for enjoying the outdoor space, whether it be playing ping-pong under the pergola, or hosting a poker game at the forest table, or spending a quiet evening around the outdoor fire-pit. Treed areas have trails gently sloping into the forest below the home. Property also features hook up for back up Generator. 2 RV spots. The property has well water with reports available. It is zoned RR4. This is a unique and well cared for property that you won't want to leave once you've seen it. Check out the 3D tour and Video. (id:47421)
Interested in obtaining the full price history for this property? Contact us!Contact us! Our real estate professionals would be happy to provide a complete listing history with historical sold prices and dates.
Detailed Information
Bedrooms
3
Bathrooms
2
Community Features
Rural Setting, Pets Allowed, Rentals Allowed
Features
Private setting, Central island, Balcony
Listing Contract Date
2025-09-25
Municipal ID
012-129-411
Ownership Type
Freehold
# of Parking Spaces
2
Property Type
Single Family
Transaction Type
For sale
Views
Lake view, Mountain view, View (panoramic)
Building
Appliances
Refrigerator, Dishwasher, Dryer, Range - Gas, See remarks, Oven, Hood Fan, Washer, Oven - Built-In
Constructed Date
2011
Construction Style (Attachment)
Detached
Cooling Type
Heat Pump
Fireplace Fuel
Gas
Fireplace Present
Yes
# of Fireplaces
1
Fireplace Type
Unknown
Flooring Type
Carpeted, Hardwood, Linoleum, Tile
Heating Fuel
Electric
Heating Type
Heat Pump, See remarks
Roof Material
Metal
Roof Style
Unknown
Stories Total
2
Type
House
Utility Water
Well
Rooms
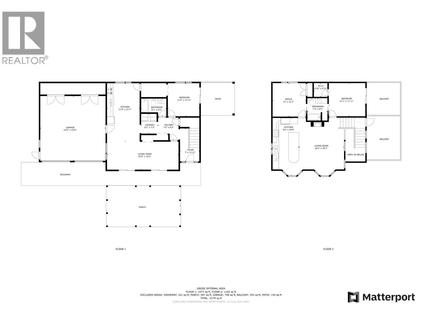
Room
Level
Dimensions
Notes
Other
Lower level
23'5'' x 23'4''
Bedroom
Lower level
11'4'' x 11'11''
Full bathroom
Lower level
9'1'' x 6'5''
Laundry room
Lower level
6'1'' x 7'2''
Kitchen
Lower level
11'9'' x 21'1''
Media
Lower level
25'9'' x 10'2''
Primary Bedroom
Main level
13'1'' x 11'11''
4pc Bathroom
Main level
7'3'' x 8'1''
Other
Main level
4'10'' x 4'11''
Bedroom
Main level
12'0'' x 12'1''
Kitchen
Main level
9'6'' x 20'8''
Living room
Main level
16'2'' x 20'7''
Parking Spaces
Name
Spaces
Attached Garage
2
RV
Land
Total Size
2.88 acres
Acreage
Yes
Fence Type
Other
Landscape Features
Landscaped
Sewer
Septic tank
Size of Irregular Land
2.88
Terms of Use
Please review and agree to the following terms of use to access the listing content:
REALTOR®, REALTORS®, and the REALTOR® logo are certification marks that are owned by REALTOR® Canada Inc. and licensed exclusively to The Canadian Real Estate Association (CREA). These certification marks identify real estate professionals who are members of CREA and who must abide by CREA's By-Laws, Rules, and the REALTOR® Code. The MLS® trademark and the MLS® logo are owned by CREA and identify the quality of services provided by real estate professionals who are members of CREA;
The information contained on this site is based in whole or in part on information that is provided by members of CREA, who are responsible for its accuracy. CREA reproduces and distributes this information as a service for its members and assumes no responsibility for its accuracy;
This website is operated by a brokerage or salesperson who is a member of CREA;
The listing content on this website is protected by copyright and other laws, and is intended solely for the private, non-commercial use by individuals. Any other reproduction, distribution or use of the content, in whole or in part, is specifically forbidden. The prohibited uses include commercial use, "screen scraping", "database scraping", and any other activity intended to collect, store, reorganize or manipulate data on the pages produced by or displayed on this website.
The information contained on this site is based in whole or in part on information that is provided under copyright by the Toronto Regional Real Estate Board (TRREB) or by members of The Canadian Real Estate Association (CREA), who are responsible for its accuracy. TRREB and CREA reproduce and distribute this information as a service for their members and assume no responsibility for its accuracy. All information displayed is believed to be accurate but is not guaranteed and should be independently verified. No warranties or representations of any kind are made with respect to the accuracy of such information. The information provided herein must only be used by consumers that have a bona fide interest in the purchase, sale, or lease of real estate and may not be used for any commercial purpose or any other purpose.