Wowimprovements galore! A brand-new 3-piece bathroom upstairs now makes this a 2 full bath, 1 half bath home. Enjoy the newly updated pantry, new boat launch, and new loft steps and storage in the garagethe list goes on, so come see for yourself! Introducing the transformed Bear Trap Lodge, now an inviting and historic home in South Brookfield. Spanning approximately 3.5 acres, this estate boasts roughly 700 feet of prime lake frontage on Bear Trap Lake, which seamlessly connects to Ponhook Lake, offering picturesque water views and endless recreational opportunities. The property features a spacious main residence with six generously sized bedrooms, perfect for accommodating family and guests. Additional highlights include a 3-year-old two-bay heated garage, ideal for year-round convenience, and a cozy bunkie, providing a charming retreat or extra living space. Various outbuildings are also available, offering flexibility for hobbies, storage, or future projects. With its tranquil setting and versatile amenities, this property is a prime candidate for an AirBnB venture, making it an attractive option for both investors and those seeking a serene getaway. This unique property combines historical charm with modern potential, offering a rare opportunity to enjoy a peaceful lifestyle or capitalize on a lucrative investment. (id:47421)
Interested in obtaining the full price history for this property? Contact us!Contact us! Our real estate professionals would be happy to provide a complete listing history with historical sold prices and dates.
Detailed Information
Bedrooms
6
Bathrooms
3
Amenities Nearby
Park
Community Features
School Bus
Features
Treed
Listing Contract Date
2024-09-06
Location Description
Take Exit for Highway 8, civic 7602. Sign posted.
Municipal ID
70147517
Ownership Type
Freehold
Property Type
Single Family
Structures
Shed
Transaction Type
For sale
Waterfront Type
Waterfront on lake
Building
Appliances
Cooktop - Electric, Oven - Electric, Dishwasher, Dryer, Washer, Freezer, Freezer - Chest, Refrigerator, Hot Tub
Basement Type
Crawl space
Constructed Date
1922
Construction Style (Attachment)
Detached
Cooling Type
Heat Pump
Exterior Finish
Wood shingles
Fireplace Present
Yes
Flooring Type
Hardwood
Foundation Type
Poured Concrete, Stone
# of Half Bathrooms
1
Stories Total
2
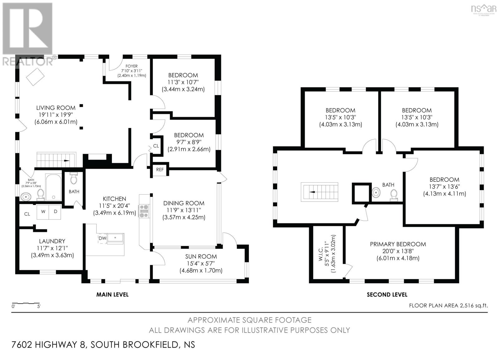
Total Finished Area
2516 sqft
Type
House
Utility Water
Dug Well
Rooms
Room
Level
Dimensions
Notes
Bedroom
Second level
13.5 x 10.3
Bedroom
Second level
13.5 x 10.3
Bedroom
Second level
13.7 x 13.6
Primary Bedroom
Second level
20 x 13.8
Bath (# pieces 1-6)
Second level
4 x 5
Bath (# pieces 1-6)
Main level
7.9 x 5.8
Living room
Main level
19.11 x 19.9
Bedroom
Main level
11.3 x 10.7
Dining room
Main level
11.9 x 13.11
Bedroom
Main level
9.7 x 8.9
Kitchen
Main level
11.5 x 20.4
Laundry room
Main level
11.7 x 12.1
Porch
Main level
15.4 x 15.7
Foyer
Main level
7.10 x 3.11
Parking Spaces
Name
Spaces
Garage
Detached Garage
Heated Garage
Gravel
Land
Total Size
3.48 acres
Acreage
Yes
Amenities
Park
Landscape Features
Landscaped
Sewer
Septic System
Size of Irregular Land
3.48
Terms of Use
Please review and agree to the following terms of use to access the listing content:
REALTOR®, REALTORS®, and the REALTOR® logo are certification marks that are owned by REALTOR® Canada Inc. and licensed exclusively to The Canadian Real Estate Association (CREA). These certification marks identify real estate professionals who are members of CREA and who must abide by CREA's By-Laws, Rules, and the REALTOR® Code. The MLS® trademark and the MLS® logo are owned by CREA and identify the quality of services provided by real estate professionals who are members of CREA;
The information contained on this site is based in whole or in part on information that is provided by members of CREA, who are responsible for its accuracy. CREA reproduces and distributes this information as a service for its members and assumes no responsibility for its accuracy;
This website is operated by a brokerage or salesperson who is a member of CREA;
The listing content on this website is protected by copyright and other laws, and is intended solely for the private, non-commercial use by individuals. Any other reproduction, distribution or use of the content, in whole or in part, is specifically forbidden. The prohibited uses include commercial use, "screen scraping", "database scraping", and any other activity intended to collect, store, reorganize or manipulate data on the pages produced by or displayed on this website.
The information contained on this site is based in whole or in part on information that is provided under copyright by the Toronto Regional Real Estate Board (TRREB) or by members of The Canadian Real Estate Association (CREA), who are responsible for its accuracy. TRREB and CREA reproduce and distribute this information as a service for their members and assume no responsibility for its accuracy. All information displayed is believed to be accurate but is not guaranteed and should be independently verified. No warranties or representations of any kind are made with respect to the accuracy of such information. The information provided herein must only be used by consumers that have a bona fide interest in the purchase, sale, or lease of real estate and may not be used for any commercial purpose or any other purpose.