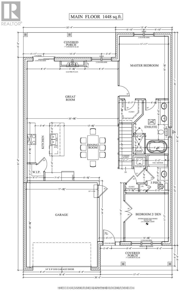
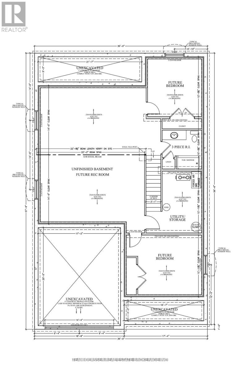
TO Be BUILT This Amazing NEW AQUA Magnus Designed Home is a Bungalow with many possibilities in the Sunny SOL Haven Community - Grand Bend! **Photos of other Magnus Built Bungalow ORCHID, not all included as seen** Choose your lot and be in near New Year 2026!! 45' lot fits this home (or larger lot for a premium backing on farm or field). 1448sq foot one floor home features a beautiful covered front to the entrance. Large Primary bedroom with walk-in closet and ensuite. Open concept kitchen/dining and familyroom with doors to a covered back porch. Magnus builds in all Quality Finishes as their standard, including a 9' basement, great for extra rooms or in-law set up. Lots of possibilities for your new home. A few discounted lots available to build upon (57-59). Enjoy evenings and views from your covered front porch (5'x17') or BBQ in back (6'x22') over-looking outdoor space. Great costal town, come see what Grand Bend has to offer!! Join a wonderful Active community!! Come and see our model at 4 Sullivan St. in Sol Haven Grand Bend! (id:47421)
Share
Listed By
TEAM GLASSER REAL ESTATE Brokerage INC., EXP REALTY
Interested in obtaining the full price history for this property? Contact us!Contact us! Our real estate professionals would be happy to provide a complete listing history with historical sold prices and dates.
Detailed Information
Bedrooms
2
Bathrooms
2
Lot
50 x 98 ft
Equipment
Water Heater, Water Heater - Tankless
Features
Carpet Free
Listing Contract Date
2025-09-24
Location Description
Cross Streets: Highway #21 (BlueWater HWY) and Highway #81 (Main Street) Grand Bend, Ontario. ** Directions: Head to Grand Bend - Turn North on Hwy #21 (Bluewater Hwy) from Highway #81 (Main Street) Grand Bend. Just past Oakwood on the right (east) side of the road (across from the golf course-New Subdivision (no Entry) Flags at road.
Ownership Type
Freehold
# of Parking Spaces
4
Property Type
Single Family
Rental Equipment
Water Heater, Water Heater - Tankless
Transaction Type
For sale
Building
Age
New building
Appliances
Garage door opener remote(s), Water Heater - Tankless, Garage door opener
Architectural Style
Bungalow
Basement Development
Unfinished
Basement Type
N/A (Unfinished)
Construction Style (Attachment)
Detached
Cooling Type
Central air conditioning
Exterior Finish
Stone, Vinyl siding
Fireplace Present
Yes
# of Fireplaces
1
Foundation Type
Concrete, Poured Concrete
Heating Fuel
Electric, Natural gas
Heating Type
Heat Pump, Not known
Stories Total
1
Type
House
Utility Water
Municipal water
Rooms
Room
Level
Dimensions
Notes
Great room
Main level
6.7 m x 5.48 m
Kitchen
Main level
3.35 m x 4.57 m
Dining room
Main level
3.35 m x 4.57 m
Primary Bedroom
Main level
3.35 m x 3.35 m
Bedroom 2
Main level
3.05 m x 3.35 m
Bathroom
Main level
3.35 m x 3.35 m
Bathroom
Main level
2.74 m x 2.74 m
Pantry
Main level
2.74 m x 2.74 m
Parking Spaces
Name
Spaces
Attached Garage
Garage
Land
Total Size
50 x 98 FT
Sewer
Sanitary sewer
Size of Irregular Land
50 x 98 FT
Terms of Use
Please review and agree to the following terms of use to access the listing content:
REALTOR®, REALTORS®, and the REALTOR® logo are certification marks that are owned by REALTOR® Canada Inc. and licensed exclusively to The Canadian Real Estate Association (CREA). These certification marks identify real estate professionals who are members of CREA and who must abide by CREA's By-Laws, Rules, and the REALTOR® Code. The MLS® trademark and the MLS® logo are owned by CREA and identify the quality of services provided by real estate professionals who are members of CREA;
The information contained on this site is based in whole or in part on information that is provided by members of CREA, who are responsible for its accuracy. CREA reproduces and distributes this information as a service for its members and assumes no responsibility for its accuracy;
This website is operated by a brokerage or salesperson who is a member of CREA;
The listing content on this website is protected by copyright and other laws, and is intended solely for the private, non-commercial use by individuals. Any other reproduction, distribution or use of the content, in whole or in part, is specifically forbidden. The prohibited uses include commercial use, "screen scraping", "database scraping", and any other activity intended to collect, store, reorganize or manipulate data on the pages produced by or displayed on this website.
The information contained on this site is based in whole or in part on information that is provided under copyright by the Toronto Regional Real Estate Board (TRREB) or by members of The Canadian Real Estate Association (CREA), who are responsible for its accuracy. TRREB and CREA reproduce and distribute this information as a service for their members and assume no responsibility for its accuracy. All information displayed is believed to be accurate but is not guaranteed and should be independently verified. No warranties or representations of any kind are made with respect to the accuracy of such information. The information provided herein must only be used by consumers that have a bona fide interest in the purchase, sale, or lease of real estate and may not be used for any commercial purpose or any other purpose.