$2,699,900
FOR SALE

Detached Bungalow

Bedrooms: 3+2Bathrooms: 6Lot: 133.83 x 187 ft

1 Morrison Place
Springwater (Snow Valley), ON L9X 2A6

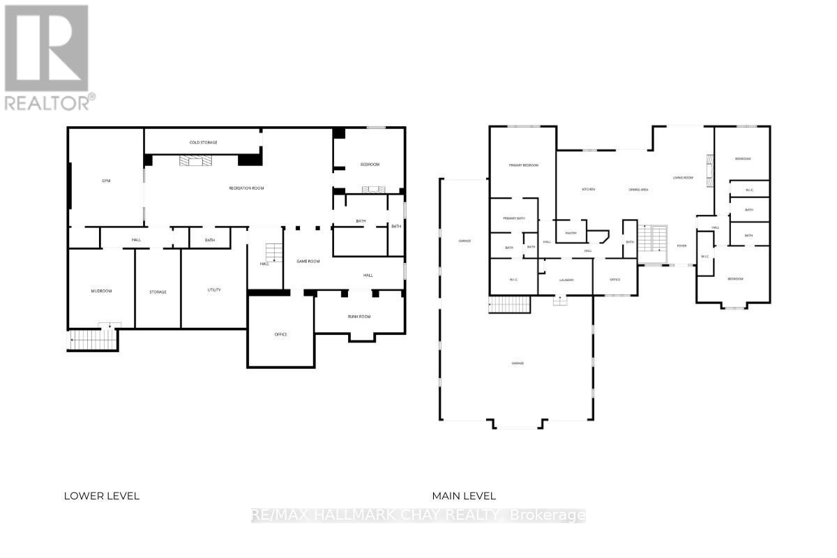
PRESENTING luxury, lifestyle, privacy, and an exquisite location-all embodied in this stunning custom executive residence in Springwater's prestigious, family centric Cameron Estates. Set on a premium half acre corner lot, this exceptional bungalow offers 5,700+ sq.ft. of finished living space and an oversized 133'x187' private backyard framed by mature cedars and one of the community's largest reclaimed greenspaces. With over $550K in recent updates/upgrades, this home delivers an elevated living experience inside & out. The main level showcases a designer Chef's kitchen with expansive prep space, oversized island with integrated beverage centre, premium Jenn Air 6 burner + griddle range, dual ovens, Dacor fridge/freezer, and walk in pantry with prep sink. Great room impresses with a striking 63" floor to ceiling gas fireplace, vaulted ceilings, and wall to wall views of the private rear yard. Additional main floor features include a dedicated home office, guest 2 pc bath, spacious laundry/mudroom, and three generous bedrooms-each with its own ensuite and walk in closet. The full, finished lower level doubles the living space and continues the home's refined neutral palette. Purpose built for relaxation and entertainment, this level features a spa inspired steam room, home gym with heated padded flooring, guest suite, custom four queen designer bunk room, rec room with linear fireplace and built ins, games room, home bar, office, soundproof gaming room, and additional 2 pc bath. Energy efficient water heated flooring runs throughout. Smart home conveniences include whole home audio (14 zones, 7 Sonos amps, 37 speakers), remote electric blinds, 7 camera security system, wall mounted TVs, and Bell Fibre internet. Car enthusiasts will appreciate the oversized 1,600+ sqft heated 5 vehicle garage, complete with epoxy floors, storage, EV ready wiring, built in audio/TV, pressure washer system, direct basement access with mud room, and rear garage door to the backyard. (id:47421)
Share
Listed By RE/MAX HALLMARK CHAY REALTY
Data Provided By Toronto Regional Real Estate Board
MLS® Listing Number S12675724
Last Updated Apr 22, 2026
Property Summary
Property Type Detached

More like this:
Community Snow Valley
Price History

Interested in obtaining the full price history for this property?
Contact us!Contact us! Our real estate professionals would be happy to provide a complete listing history with historical sold prices and dates.

Detailed Information
Bedrooms 3+2
Bathrooms 6
Lot 133.83 x 187 ft
Amenities Nearby Ski area, Park
Community Features School Bus
Equipment None
Features Cul-de-sac, Wooded area, Conservation/green belt, Guest Suite, Sump Pump
Listing Contract Date 2026-01-08
Location Description Cross Streets: Wilson to Seadon. ** Directions: Byers to Glenna to Morrison.
Ownership Type Freehold
# of Parking Spaces 11
Property Type Single Family
Rental Equipment None
Structures Patio(s), Porch
Transaction Type For sale
Building
Age 0 to 5 years
Amenities Fireplace(s)
Appliances Oven - Built-In, Range, Water Heater - Tankless, Water Heater, Water softener, Water Treatment, Water purifier, Dryer, Washer, Window Coverings
Architectural Style Bungalow
Basement Development Finished
Basement Type Full (Finished)
Construction Style (Attachment) Detached
Cooling Type Central air conditioning, Air exchanger
Exterior Finish Brick, Stone
Fire Protection Alarm system, Monitored Alarm, Security system, Smoke Detectors
Fireplace Present Yes
# of Fireplaces 2
Foundation Type Concrete
# of Half Bathrooms 2
Heating Fuel Natural gas
Heating Type Forced air
Stories Total 1
Type House
Utility Water Municipal water
Rooms
Room Level Dimensions Notes
Bedroom 4Lower level3.1 m x 5.3 m
Bedroom 5Lower level3.6 m x 4.1 m
BathroomLower level1.2 m x 2.4 m
BathroomLower level3.7 m x 4.2 m
Recreational, Games roomLower level4.2 m x 7.3 m
Recreational, Games roomLower level2.2 m x 4.2 m
Exercise roomLower level4.6 m x 6 m
OfficeLower level3.6 m x 4.1 m
Games roomLower level3.8 m x 4.4 m
Games roomLower level3.1 m x 3.9 m
OtherLower level2.6 m x 4.8 m
OtherLower level4 m x 4.8 m
Utility roomLower level3.9 m x 4.7 m
Cold roomLower level1.6 m x 6.8 m
Living roomMain level4.2 m x 4.5 m
Bedroom 2Main level3.9 m x 4.1 m
Dining roomMain level5.1 m x 2.5 m
BathroomMain level1.6 m x 3 m
Bedroom 3Main level4.5 m x 5.4 m
BathroomMain level1.6 m x 2.9 m
KitchenMain level4.1 m x 5.1 m
PantryMain level1.5 m x 1.9 m
BathroomMain level0.9 m x 2.6 m
OfficeMain level2.8 m x 3.3 m
Laundry roomMain level2.7 m x 3.9 m
BedroomMain level4.8 m x 6.9 m
BathroomMain level3.5 m x 4.2 m
OtherMain level2.7 m x 3.4 m
Parking Spaces
Name Spaces
Attached Garage
Garage
Land
Total Size 133.9 x 187 FT
Amenities Ski area, Park
Landscape Features Landscaped
Sewer Sanitary sewer
Size of Irregular Land 133.9 x 187 FT
External Links

The information contained on this site is based in whole or in part on information that is provided under copyright by the Toronto Regional Real Estate Board (TRREB) or by members of The Canadian Real Estate Association (CREA), who are responsible for its accuracy. TRREB and CREA reproduce and distribute this information as a service for their members and assume no responsibility for its accuracy. All information displayed is believed to be accurate but is not guaranteed and should be independently verified. No warranties or representations of any kind are made with respect to the accuracy of such information.
The information provided herein must only be used by consumers that have a bona fide interest in the purchase, sale, or lease of real estate and may not be used for any commercial purpose or any other purpose.

FREE ESTIMATES ARE COMING

Reserve Your Spot To Be Notified
or

Coming soon to select cities
in North America

(We'll never share your details)