Exceptional Investment & Multi-Generational Living Opportunity in north end St. Catharines. Welcome to 34 Kenworth Drive, a rare and versatile income property located on a quiet, private, tree-lined street, backing onto a wooded creek and just steps from Lester B. Pearson Park; this property offers a unique blend of privacy, natural surroundings, and everyday convenience. The newly renovated brick bungalow has been thoughtfully reconfigured to include two fully self-contained units, each with its own private entrance, kitchen, laundry, and bathroom. Adding even more value is a brand new, detached Accessory Dwelling Unit (ADU), creating a total of three independent living spaces; ideal for investors, multi-generational families, or owner-occupiers looking to offset their mortgage with rental income. The detached ADU backs directly onto the wooded creek and offers scenic views, making it an attractive rental or private residence for extended family, guests, or downsizing while renting out the main home. With true turn-key condition, this property is ready to generate income from day one. Property Highlights include: Three separate living units with private entrances, two renovated units in the main bungalow, brand new detached ADU (approx. 749 sq. ft., 1 bed + loft, 1 bath) Backs onto a wooded creek with peaceful views, close to schools, shopping, and amenities, strong income potential with three rental streams. Estimated Income Potential: Upper Unit (3 Bed / 1 Bath): ~$2,200/month; Lower Unit (2 Bed / 1 Bath): ~$1,800/month; Detached ADU: ~$2,500/month; Total Potential Gross Income: ~$6,500/month Annualized Income: ~$78,000/year. This is a rare opportunity to secure a high performing investment property or create a flexible multi-generational living setup in one of St. Catharines' most sought-after locations. A truly unique offering to make this Your Niagara Home. (id:47421)
Interested in obtaining the full price history for this property? Contact us!Contact us! Our real estate professionals would be happy to provide a complete listing history with historical sold prices and dates.
Detailed Information
Bedrooms
4+2
Bathrooms
3
Lot
61.5 x 164.58 ft
Amenities Nearby
Park, Public Transit, Schools
Features
Wooded area, Ravine, Guest Suite, In-Law Suite
Listing Contract Date
2026-01-15
Location Description
From Carlton, North on Grantham to Kenworth
Ownership Type
Freehold
# of Parking Spaces
5
Property Type
Single Family
Transaction Type
For sale
Building
Amenities
Separate Heating Controls
Architectural Style
Bungalow
Basement Development
Finished
Basement Type
Full (Finished)
Construction Style (Attachment)
Detached
Cooling Type
Central air conditioning
Exterior Finish
Brick
Foundation Type
Block
Heating Fuel
Natural gas
Heating Type
Forced air
Stories Total
1
Type
House
Utility Water
Municipal water
Rooms
Room
Level
Dimensions
Notes
Recreational, Games room
Basement
8.7 m x 4.07 m
Bedroom
Basement
2.82 m x 4.32 m
Bedroom
Basement
2.82 m x 4.32 m
Kitchen
Basement
2.89 m x 3.27 m
Kitchen
Main level
3.58 m x 3.05 m
Living room
Main level
5.97 m x 4.32 m
Primary Bedroom
Main level
3.32 m x 4.32 m
Bedroom
Main level
3.09 m x 2.91 m
Bedroom
Main level
2.6 m x 2.91 m
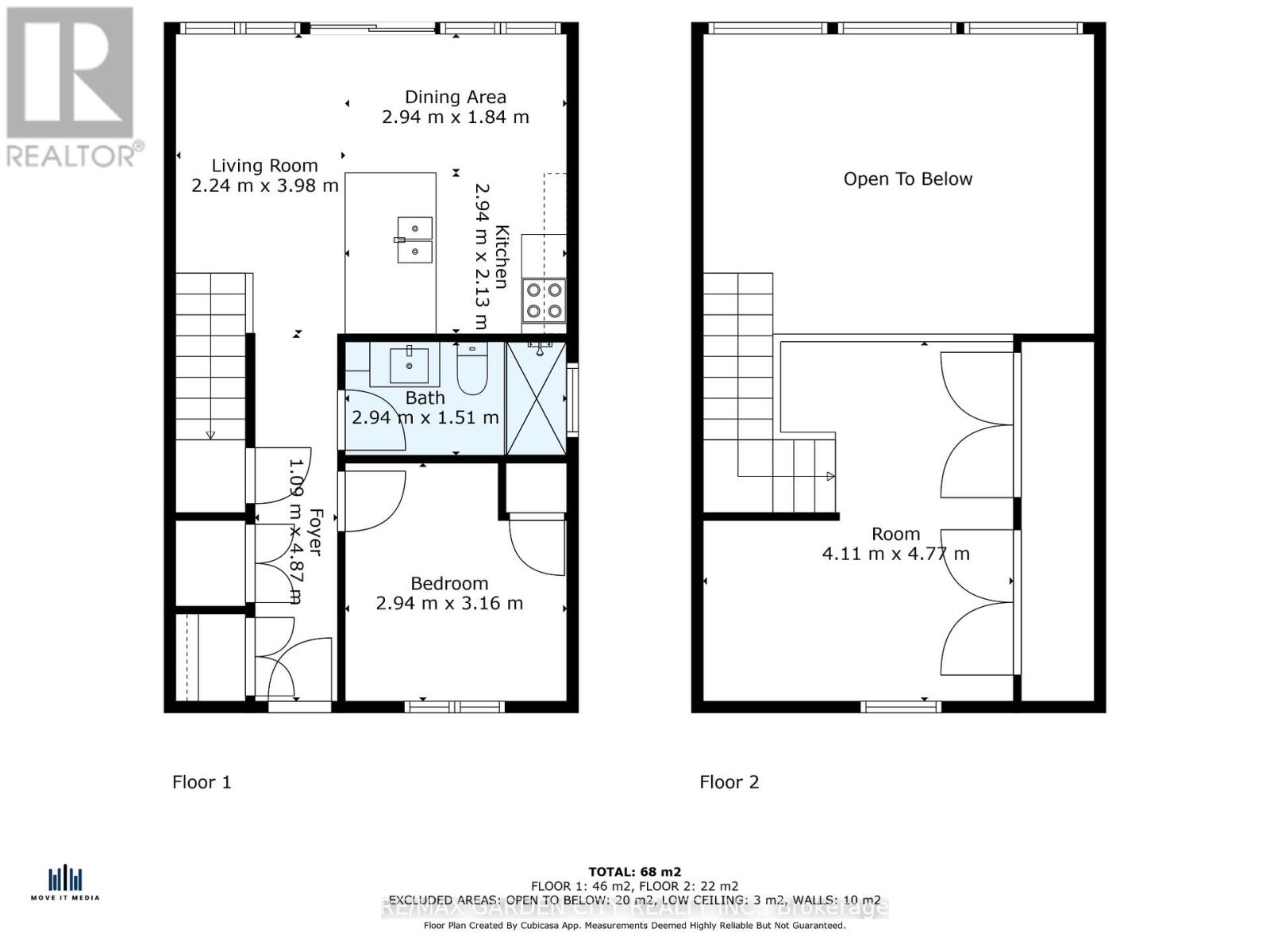
Dining room
In between
2.94 m x 1.84 m
Bedroom
In between
2.94 m x 3.16 m
Other
In between
4.11 m x 4.77 m
Living room
In between
2.24 m x 3.98 m
Parking Spaces
Name
Spaces
Attached Garage
Garage
Land
Total Size
61.5 x 164.6 FT
Amenities
Park, Public Transit, Schools
Sewer
Sanitary sewer
Size of Irregular Land
61.5 x 164.6 FT
Terms of Use
Please review and agree to the following terms of use to access the listing content:
REALTOR®, REALTORS®, and the REALTOR® logo are certification marks that are owned by REALTOR® Canada Inc. and licensed exclusively to The Canadian Real Estate Association (CREA). These certification marks identify real estate professionals who are members of CREA and who must abide by CREA's By-Laws, Rules, and the REALTOR® Code. The MLS® trademark and the MLS® logo are owned by CREA and identify the quality of services provided by real estate professionals who are members of CREA;
The information contained on this site is based in whole or in part on information that is provided by members of CREA, who are responsible for its accuracy. CREA reproduces and distributes this information as a service for its members and assumes no responsibility for its accuracy;
This website is operated by a brokerage or salesperson who is a member of CREA;
The listing content on this website is protected by copyright and other laws, and is intended solely for the private, non-commercial use by individuals. Any other reproduction, distribution or use of the content, in whole or in part, is specifically forbidden. The prohibited uses include commercial use, "screen scraping", "database scraping", and any other activity intended to collect, store, reorganize or manipulate data on the pages produced by or displayed on this website.
The information contained on this site is based in whole or in part on information that is provided under copyright by the Toronto Regional Real Estate Board (TRREB) or by members of The Canadian Real Estate Association (CREA), who are responsible for its accuracy. TRREB and CREA reproduce and distribute this information as a service for their members and assume no responsibility for its accuracy. All information displayed is believed to be accurate but is not guaranteed and should be independently verified. No warranties or representations of any kind are made with respect to the accuracy of such information. The information provided herein must only be used by consumers that have a bona fide interest in the purchase, sale, or lease of real estate and may not be used for any commercial purpose or any other purpose.