Carefree Centennial Tower living awaits at 35 Towering Heights! Perched on the tenth floor, this freshly painted 2 bedroom end unit suite offers a large balcony and the perfect blend of morning sunrises and evening sunsets. With a north-facing view, you'll avoid the harsh midday heat, keeping the unit nice and cool. The updated kitchen includes a large pantry, appliance garage, and a dishwasher. The bright, spacious living and dining areas feature gleaming parquet hardwood floors throughout and has a newer air conditioning unit. The large primary bedroom boasts a walk-in closet and ensuite privilege to a nicely updated bathroom, and the second bedroom is also generously sized. The building offers top-notch amenities: an indoor saltwater pool, sauna, exercise room, party room, sun terrace, BBQ area, and more. Parking is available for $20/month outside and $50/month inside (with a waiting list for assigned spots inside). The maintenance fee covers heat, hydro, water, a storage locker, building maintenance, and insurance. Plus, it's close to public transit, shopping, highway access, and Brock University. Pet friendly & move-in ready building! (id:47421)
Interested in obtaining the full price history for this property? Contact us!Contact us! Our real estate professionals would be happy to provide a complete listing history with historical sold prices and dates.
Detailed Information
Bedrooms
2
Bathrooms
1
Community Features
Pets Allowed With Restrictions
Equipment
None
Features
Balcony, Laundry- Coin operated
Listing Contract Date
2025-12-01
Location Description
Cross Streets: Glen Morris Drive. ** Directions: Glenridge Ave to Glen Morris Dr to Towering Heights Blvd.
Maintenance Fee Payment Frequency
Monthly
Maintenance Fee Type
Insurance, Common Area Maintenance, Heat, Electricity, Water
Management Company
Shabri Properties Ltd.
Ownership Type
Condominium/Strata
Property Type
Single Family
Rental Equipment
None
Transaction Type
For sale
Building
Amenities
Storage - Locker
Appliances
Dishwasher, Stove, Refrigerator
Basement Type
None
Cooling Type
Wall unit
Exterior Finish
Stucco
Heating Fuel
Natural gas
Heating Type
Radiant heat
Type
Apartment
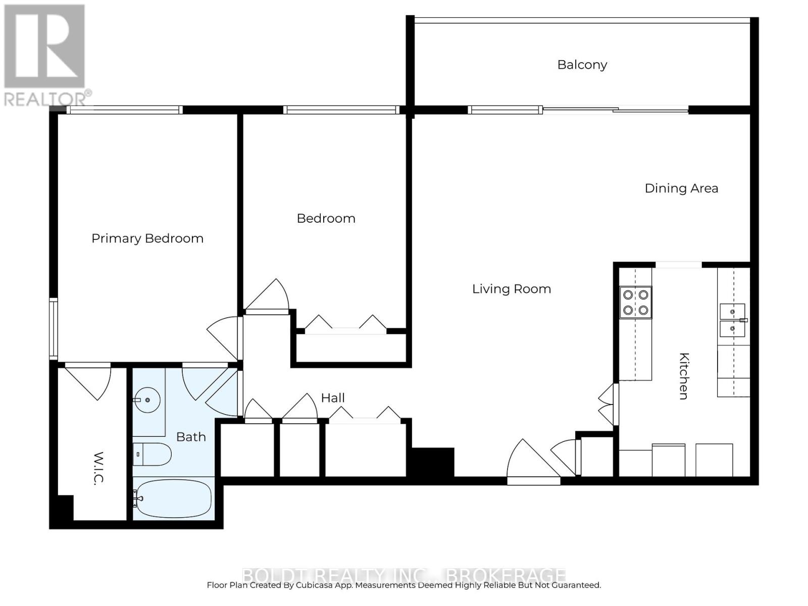
Rooms
Room
Level
Dimensions
Notes
Living room
Main level
6.664 m x 3.647 m
Kitchen
Main level
3.92 m x 2.425 m
Dining room
Main level
2.693 m x 2.481 m
Primary Bedroom
Main level
4.593 m x 3.306 m
Bedroom
Main level
3.614 m x 3.007 m
Bathroom
Main level
Measurements not available
Parking Spaces
Name
Spaces
Underground
Garage
Terms of Use
Please review and agree to the following terms of use to access the listing content:
REALTOR®, REALTORS®, and the REALTOR® logo are certification marks that are owned by REALTOR® Canada Inc. and licensed exclusively to The Canadian Real Estate Association (CREA). These certification marks identify real estate professionals who are members of CREA and who must abide by CREA's By-Laws, Rules, and the REALTOR® Code. The MLS® trademark and the MLS® logo are owned by CREA and identify the quality of services provided by real estate professionals who are members of CREA;
The information contained on this site is based in whole or in part on information that is provided by members of CREA, who are responsible for its accuracy. CREA reproduces and distributes this information as a service for its members and assumes no responsibility for its accuracy;
This website is operated by a brokerage or salesperson who is a member of CREA;
The listing content on this website is protected by copyright and other laws, and is intended solely for the private, non-commercial use by individuals. Any other reproduction, distribution or use of the content, in whole or in part, is specifically forbidden. The prohibited uses include commercial use, "screen scraping", "database scraping", and any other activity intended to collect, store, reorganize or manipulate data on the pages produced by or displayed on this website.
The information contained on this site is based in whole or in part on information that is provided under copyright by the Toronto Regional Real Estate Board (TRREB) or by members of The Canadian Real Estate Association (CREA), who are responsible for its accuracy. TRREB and CREA reproduce and distribute this information as a service for their members and assume no responsibility for its accuracy. All information displayed is believed to be accurate but is not guaranteed and should be independently verified. No warranties or representations of any kind are made with respect to the accuracy of such information. The information provided herein must only be used by consumers that have a bona fide interest in the purchase, sale, or lease of real estate and may not be used for any commercial purpose or any other purpose.