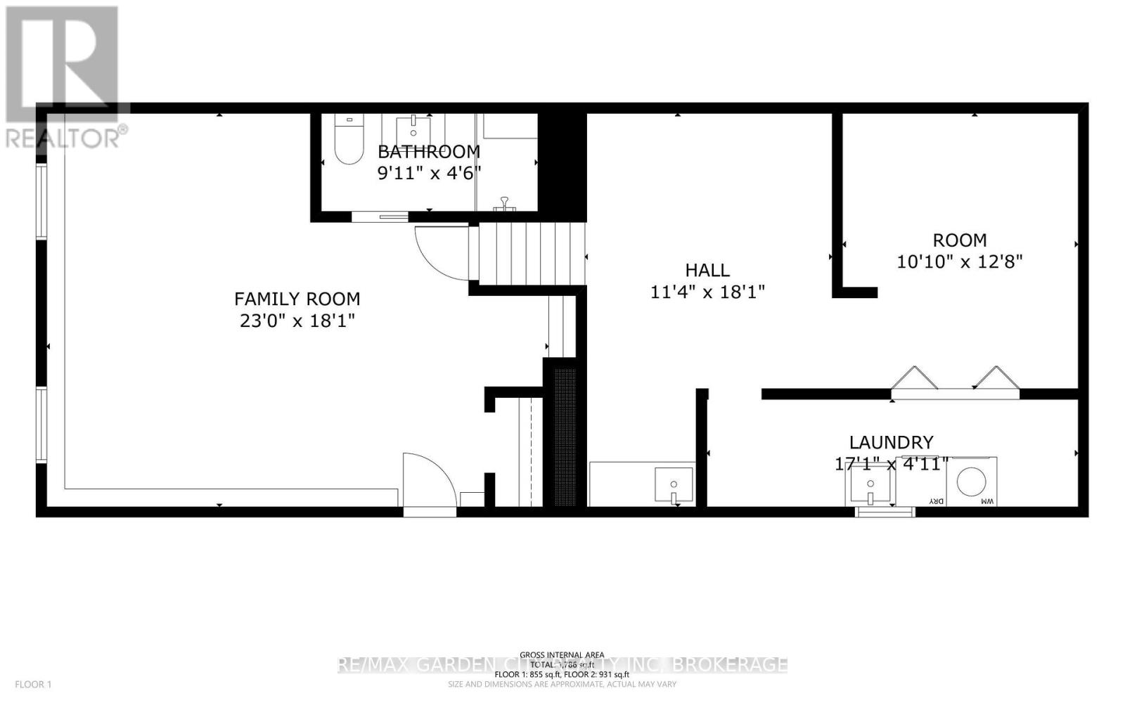
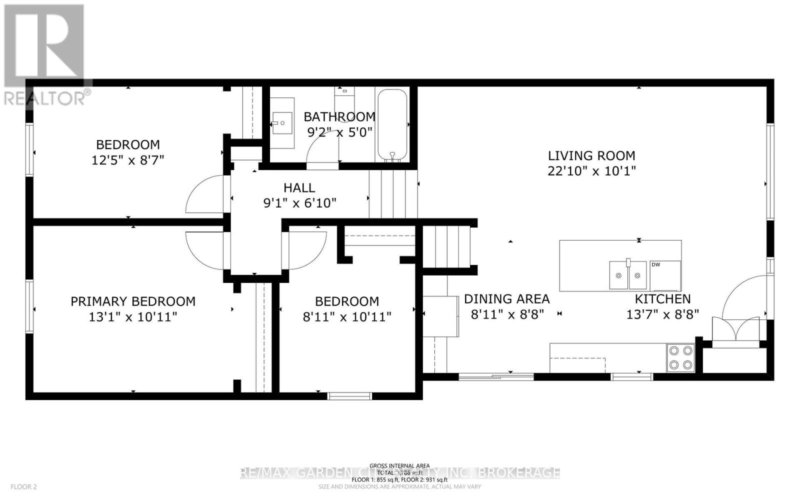
Introducing 49 Autumn Place , a beautifully updated backsplit semi-detached home located in the sought-after Secord Woods neighborhood of St. Catharine's. This functional and well-maintained property offers an open-concept kitchen, dining, and living area ideal for modern living and entertaining, with an open concept kitchen (2017), dining, and living area. The upper level features three generous bedrooms and a full bathroom, complemented by updated flooring throughout (2024) for a fresh, cohesive feel. The lower level provides a large finished recreation room and a newer bathroom (2023), offering excellent flexibility and potential for an in-law suite, guest space, or extended family living. Major updates include a new roof (2022), fenced yard (2022), and air conditioning unit (2023), providing peace of mind for future owners. Centrally located close to the Pen Centre, grocery stores, schools, parks, highway access, and Brock University, this move-in-ready home combines comfort, versatility, and everyday convenience in a vibrant community. (id:47421)
Share
Listed By
RE/MAX GARDEN CITY REALTY INC, Brokerage, RE/MAX REALTY SERVICES INC.
Interested in obtaining the full price history for this property? Contact us!Contact us! Our real estate professionals would be happy to provide a complete listing history with historical sold prices and dates.
Detailed Information
Bedrooms
3
Bathrooms
3
Lot
33.5 x 129 ft
Equipment
Water Heater
Listing Contract Date
2026-01-20
Location Description
Cross Streets: St Augustine Drive And Park Ave. ** Directions: Seymour Ave to Park Ave to Autumn Place.
Ownership Type
Freehold
# of Parking Spaces
2
Property Type
Single Family
Rental Equipment
Water Heater
Transaction Type
For sale
Building
Appliances
Dryer, Stove, Washer, Refrigerator
Basement Development
Partially finished
Basement Type
N/A (Partially finished)
Construction Style (Attachment)
Semi-detached
Construction Style (Split Level)
Backsplit
Cooling Type
Central air conditioning
Exterior Finish
Brick, Vinyl siding
Fireplace Present
Yes
Foundation Type
Poured Concrete
Heating Fuel
Natural gas
Heating Type
Forced air
Type
House
Utility Water
Municipal water
Parking Spaces
Name
Spaces
No Garage
Land
Total Size
33.5 x 129 FT
Sewer
Sanitary sewer
Size of Irregular Land
33.5 x 129 FT
Terms of Use
Please review and agree to the following terms of use to access the listing content:
REALTOR®, REALTORS®, and the REALTOR® logo are certification marks that are owned by REALTOR® Canada Inc. and licensed exclusively to The Canadian Real Estate Association (CREA). These certification marks identify real estate professionals who are members of CREA and who must abide by CREA's By-Laws, Rules, and the REALTOR® Code. The MLS® trademark and the MLS® logo are owned by CREA and identify the quality of services provided by real estate professionals who are members of CREA;
The information contained on this site is based in whole or in part on information that is provided by members of CREA, who are responsible for its accuracy. CREA reproduces and distributes this information as a service for its members and assumes no responsibility for its accuracy;
This website is operated by a brokerage or salesperson who is a member of CREA;
The listing content on this website is protected by copyright and other laws, and is intended solely for the private, non-commercial use by individuals. Any other reproduction, distribution or use of the content, in whole or in part, is specifically forbidden. The prohibited uses include commercial use, "screen scraping", "database scraping", and any other activity intended to collect, store, reorganize or manipulate data on the pages produced by or displayed on this website.
The information contained on this site is based in whole or in part on information that is provided under copyright by the Toronto Regional Real Estate Board (TRREB) or by members of The Canadian Real Estate Association (CREA), who are responsible for its accuracy. TRREB and CREA reproduce and distribute this information as a service for their members and assume no responsibility for its accuracy. All information displayed is believed to be accurate but is not guaranteed and should be independently verified. No warranties or representations of any kind are made with respect to the accuracy of such information. The information provided herein must only be used by consumers that have a bona fide interest in the purchase, sale, or lease of real estate and may not be used for any commercial purpose or any other purpose.