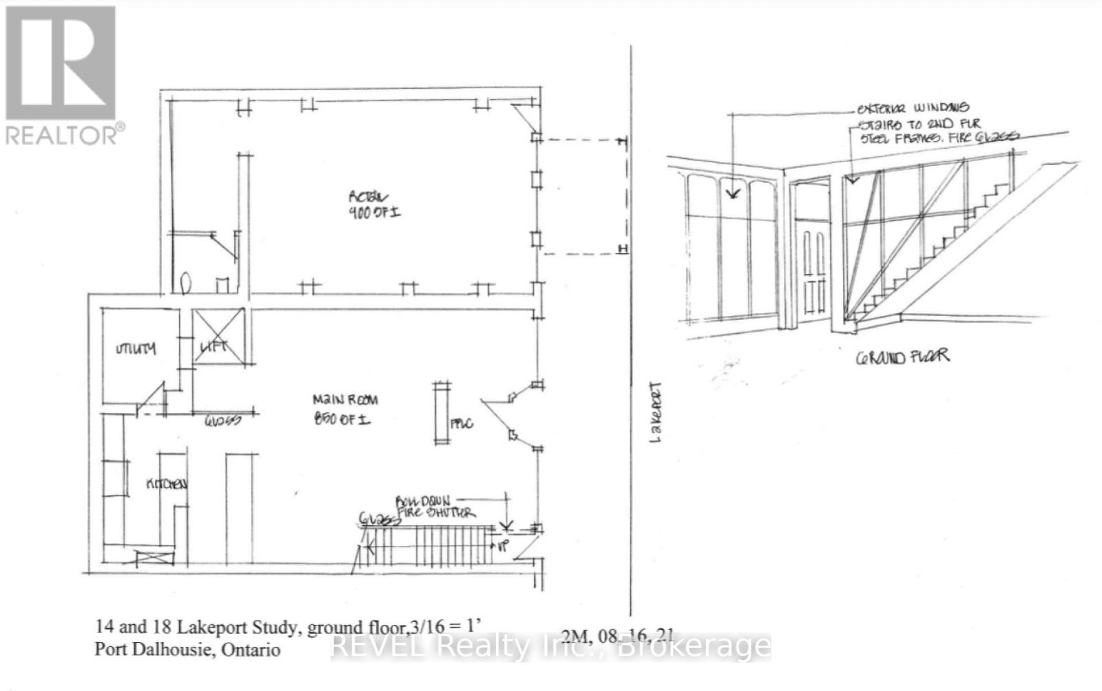
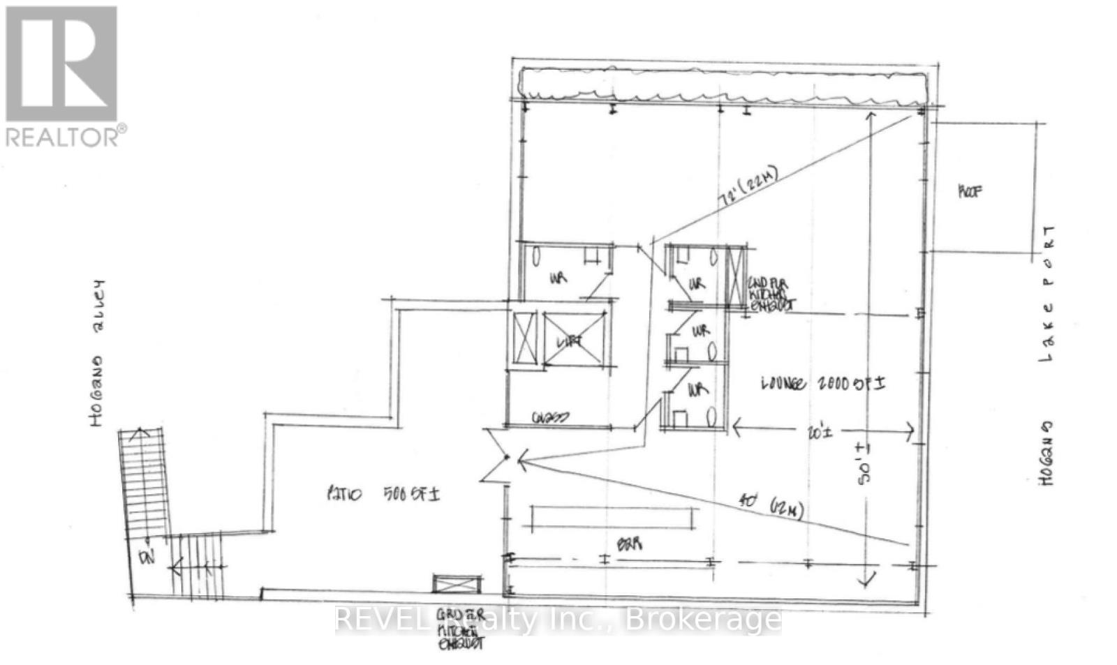
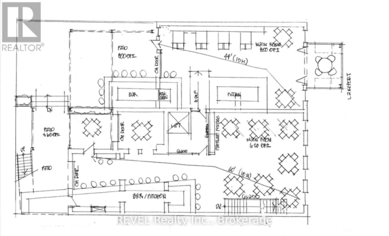
Exceptional investment opportunity in the heart of historic Port Dalhousie. This landmark brick building, said to be one of the oldest storefronts in Ontario, stands prominently on bustling Lakeport Road. With rare street access on all sides and at both levels, offering unmatched exposure and flexibility, plus exceptional water & harbour views. The current 2-storey setup provides the opportunity for potentially 4 or even 5 separate units plus outdoor patios. Perfect for restaurants, retail, boutique shops, or an inspiring mixed-use commercial/residential conversion, the property combines heritage charm with endless potential. Positioned within the city's Port Dalhousie Commercial Core and Harbour Area Secondary Plan, this address sits at the centre of the area's revitalization, surrounded by multi-million-dollar residential and mixed-use developments that are transforming the waterfront into one of Niagara's most vibrant lifestyle destinations. With major private investment, increased density, and improved public realm initiatives already underway, the growth trajectory here is undeniable. Port Dalhousie's walkable waterfront, boutique atmosphere, vibrant active group of engaged residents, and year-round tourism make it a magnet for locals and visitors alike. As residential projects rise nearby, so does demand for quality dining, retail, and live-work spaces, placing this property in the perfect position to capitalize on both steady local traffic and booming seasonal activity. Offering flexibility for future intensification, multi-tenancy, or redevelopment, this character-filled building represents a truly rare chance to own a cornerstone property in one of the region's fastest-evolving commercial corridors. 14 Lakeport Road is more than real estate; it's a front-row investment into the future of Port Dalhousie, and an unmatched opportunity for the savvy investor/entrepreneur with vision to create something profound that is undoubtedly a legacy-defining opportunity. (id:47421)
Interested in obtaining the full price history for this property? Contact us!Contact us! Our real estate professionals would be happy to provide a complete listing history with historical sold prices and dates.
Please review and agree to the following terms of use to access the listing content:
REALTOR®, REALTORS®, and the REALTOR® logo are certification marks that are owned by REALTOR® Canada Inc. and licensed exclusively to The Canadian Real Estate Association (CREA). These certification marks identify real estate professionals who are members of CREA and who must abide by CREA's By-Laws, Rules, and the REALTOR® Code. The MLS® trademark and the MLS® logo are owned by CREA and identify the quality of services provided by real estate professionals who are members of CREA;
The information contained on this site is based in whole or in part on information that is provided by members of CREA, who are responsible for its accuracy. CREA reproduces and distributes this information as a service for its members and assumes no responsibility for its accuracy;
This website is operated by a brokerage or salesperson who is a member of CREA;
The listing content on this website is protected by copyright and other laws, and is intended solely for the private, non-commercial use by individuals. Any other reproduction, distribution or use of the content, in whole or in part, is specifically forbidden. The prohibited uses include commercial use, "screen scraping", "database scraping", and any other activity intended to collect, store, reorganize or manipulate data on the pages produced by or displayed on this website.
The information contained on this site is based in whole or in part on information that is provided under copyright by the Toronto Regional Real Estate Board (TRREB) or by members of The Canadian Real Estate Association (CREA), who are responsible for its accuracy. TRREB and CREA reproduce and distribute this information as a service for their members and assume no responsibility for its accuracy. All information displayed is believed to be accurate but is not guaranteed and should be independently verified. No warranties or representations of any kind are made with respect to the accuracy of such information. The information provided herein must only be used by consumers that have a bona fide interest in the purchase, sale, or lease of real estate and may not be used for any commercial purpose or any other purpose.