Welcome to 15 Veazey Street, St. Stephen! This well kept top and bottom duplex features two spacious two bedroom apartments, each with its own private front and back entrances for added privacy, safety, and storage convenience. Both units offer bright kitchens, full bathrooms, and comfortable living areas designed for easy day to day living. The main level apartment provides one level living and includes its own private deck, a great spot to relax outdoors. The property offers ample parking, energy efficient heat pumps (3), and durable metal roofing and siding for long term peace of mind. Centrally located in the heart of town, this property is within walking distance to all amenities, schools, and downtown conveniences. Whether youre looking to invest or live in one unit while renting the other, 15 Veazey Street is an excellent opportunity in a prime St. Stephen location. Call today! (id:47421)
Interested in obtaining the full price history for this property? Contact us!Contact us! Our real estate professionals would be happy to provide a complete listing history with historical sold prices and dates.
Detailed Information
Bedrooms
4
Bathrooms
2
Features
Balcony/Deck/Patio
Location Description
From King street, take Union then Veazey
Municipal ID
15101686
Ownership Type
Freehold
Property Type
Single Family
Transaction Type
For sale
Building
Cooling Type
Heat Pump
Exterior Finish
Metal
Flooring Type
Laminate
Foundation Type
Stone
Heating Fuel
Electric
Heating Type
Heat Pump
Stories Total
2
Total Finished Area
1880 sqft
Type
House
Utility Water
Municipal water
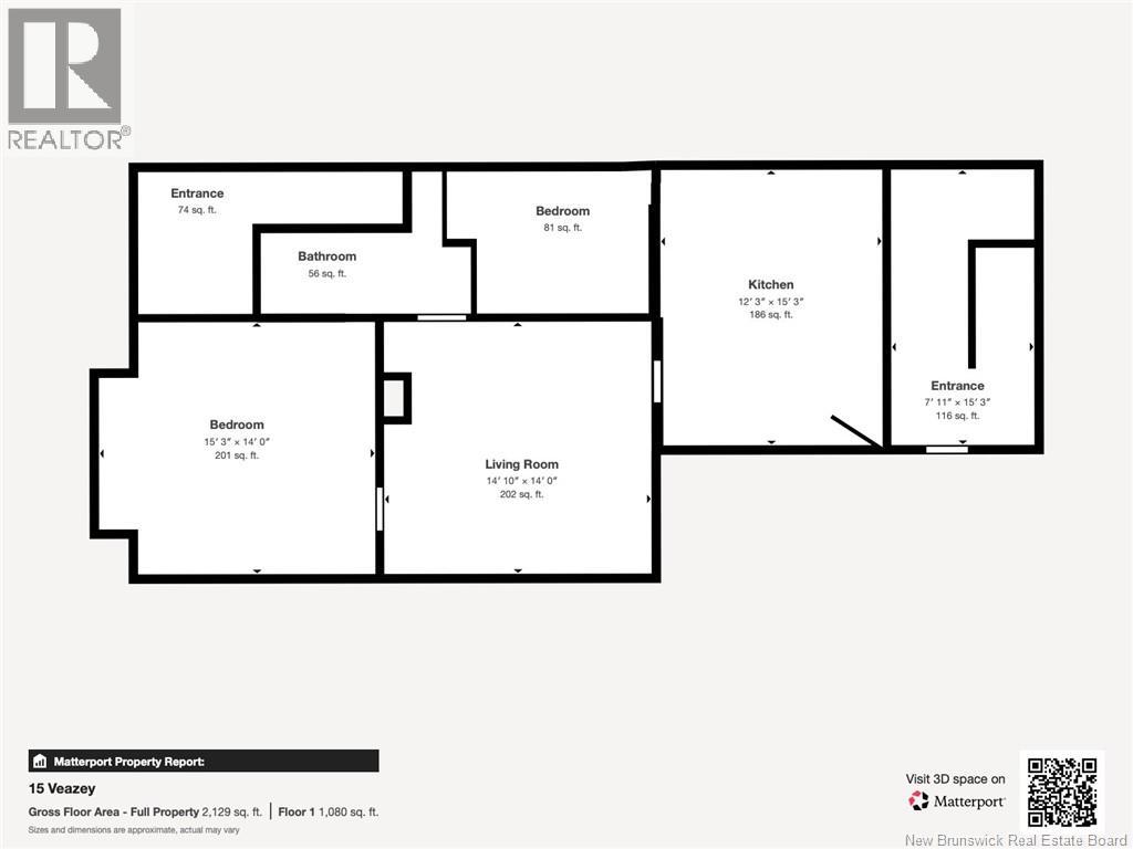
Rooms
Room
Level
Dimensions
Notes
3pc Bathroom
Second level
8'2'' x 8'6''
Kitchen
Second level
13'6'' x 14'9''
Living room
Second level
12'11'' x 12'11''
Bedroom
Second level
12'8'' x 12'8''
Bedroom
Second level
8'6'' x 6'11''
Mud room
Main level
7'9'' x 14'11''
Foyer
Main level
7'6'' x 6'0''
Bedroom
Main level
7'10'' x 9'9''
Bedroom
Main level
14'1'' x 13'5''
3pc Bathroom
Main level
11'8'' x 7'10''
Living room
Main level
14'8'' x 13'11''
Kitchen
Main level
12'1'' x 14'2''
Land
Total Size
0.17 acres
Access Type
Year-round access, Public Road
Landscape Features
Landscaped
Sewer
Municipal sewage system
Size of Irregular Land
0.17
Terms of Use
Please review and agree to the following terms of use to access the listing content:
REALTOR®, REALTORS®, and the REALTOR® logo are certification marks that are owned by REALTOR® Canada Inc. and licensed exclusively to The Canadian Real Estate Association (CREA). These certification marks identify real estate professionals who are members of CREA and who must abide by CREA's By-Laws, Rules, and the REALTOR® Code. The MLS® trademark and the MLS® logo are owned by CREA and identify the quality of services provided by real estate professionals who are members of CREA;
The information contained on this site is based in whole or in part on information that is provided by members of CREA, who are responsible for its accuracy. CREA reproduces and distributes this information as a service for its members and assumes no responsibility for its accuracy;
This website is operated by a brokerage or salesperson who is a member of CREA;
The listing content on this website is protected by copyright and other laws, and is intended solely for the private, non-commercial use by individuals. Any other reproduction, distribution or use of the content, in whole or in part, is specifically forbidden. The prohibited uses include commercial use, "screen scraping", "database scraping", and any other activity intended to collect, store, reorganize or manipulate data on the pages produced by or displayed on this website.
The information contained on this site is based in whole or in part on information that is provided under copyright by the Toronto Regional Real Estate Board (TRREB) or by members of The Canadian Real Estate Association (CREA), who are responsible for its accuracy. TRREB and CREA reproduce and distribute this information as a service for their members and assume no responsibility for its accuracy. All information displayed is believed to be accurate but is not guaranteed and should be independently verified. No warranties or representations of any kind are made with respect to the accuracy of such information. The information provided herein must only be used by consumers that have a bona fide interest in the purchase, sale, or lease of real estate and may not be used for any commercial purpose or any other purpose.