Presenting a rare chance to lease a prime commercial unit located directly across from the upcoming EV Battery Plant, poised to be one of the most significant economic drivers in the region. Situated on Highbury Avenue, one of the busiest and most high-traffic corridors in St. Thomas, this property offers exceptional visibility and maximum exposure to thousands of vehicles daily. With multiple permitted commercial uses, this space is ideal for a wide range of businesses from retail and office to service-based operations. The strategic location ensures steady footfall, easy access, and excellent connectivity to both local and regional traffic. Prime Location: Directly opposite the EV Battery Plant, High Traffic Exposure, Located on busy Highbury Avenue with Multiple Uses offering various business opportunities but not limited to an Animal clinic, Convenience Store, fast food restaurant, Automotive retail store, or Retail food store. Strong Growth Area, Positioned in one of Ontario's fastest-growing economic hubs. Excellent Investment Potential, Benefit from future area development and increased demand. Whether you are an investor seeking long-term value or a business owner ready to capitalize on the area's rapid growth, this property delivers unmatched potential. As per CBC news on August 6th, 2025, EV battery plant Initial production is set to begin in early 2027 and the plant is expected to create 3,000 indirect and some 30,000 spinoff jobs!!!! (id:47421)
Interested in obtaining the full price history for this property? Contact us!Contact us! Our real estate professionals would be happy to provide a complete listing history with historical sold prices and dates.
Detailed Information
Bathrooms
1
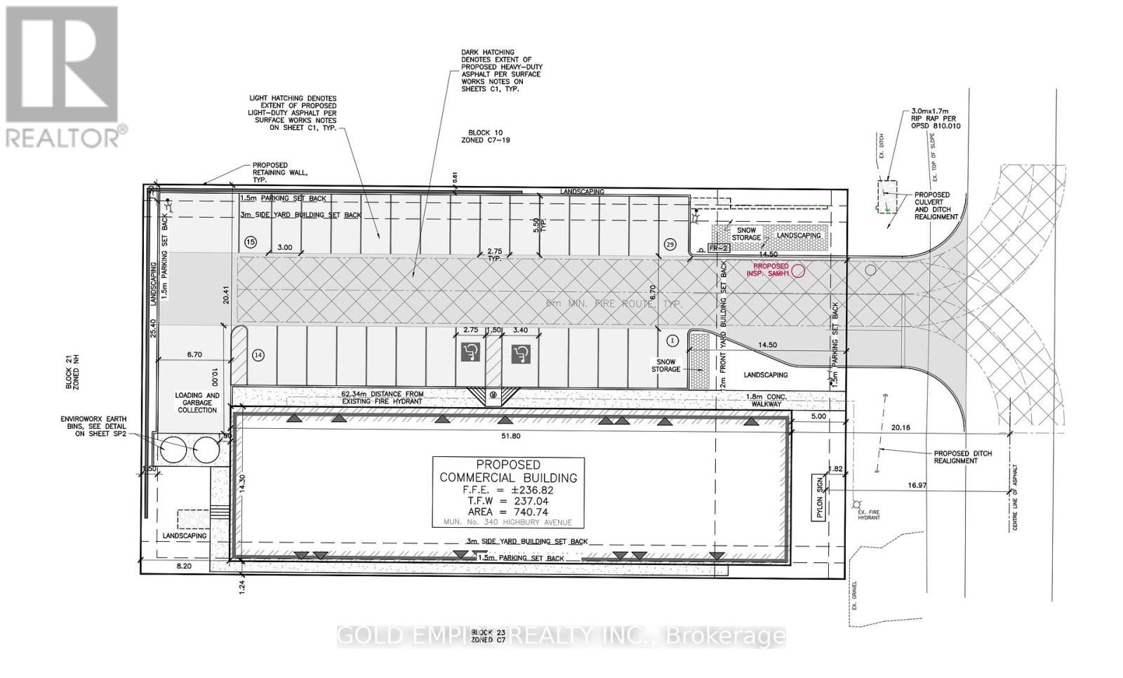
Lot
117.92 x 213.25 ft
Amenities Nearby
Highway
Farm Type
Other
Listing Contract Date
2025-12-08
Location Description
Cross Streets: Hughbury Ave S & Ron Mcneil Line. ** Directions: Right side of the Highbury Ave. S.
# of Parking Spaces
10
Property Type
Retail
Transaction Type
For lease
Zoning Description
C7-31
Building
Age
New building
Cooling Type
Fully air conditioned
Heating Type
Other
Utility Water
Municipal water
Land
Total Size
Unit=117.95 x 213.25 FT
Amenities
Highway
Size of Irregular Land
Unit=117.95 x 213.25 FT
Terms of Use
Please review and agree to the following terms of use to access the listing content:
REALTOR®, REALTORS®, and the REALTOR® logo are certification marks that are owned by REALTOR® Canada Inc. and licensed exclusively to The Canadian Real Estate Association (CREA). These certification marks identify real estate professionals who are members of CREA and who must abide by CREA's By-Laws, Rules, and the REALTOR® Code. The MLS® trademark and the MLS® logo are owned by CREA and identify the quality of services provided by real estate professionals who are members of CREA;
The information contained on this site is based in whole or in part on information that is provided by members of CREA, who are responsible for its accuracy. CREA reproduces and distributes this information as a service for its members and assumes no responsibility for its accuracy;
This website is operated by a brokerage or salesperson who is a member of CREA;
The listing content on this website is protected by copyright and other laws, and is intended solely for the private, non-commercial use by individuals. Any other reproduction, distribution or use of the content, in whole or in part, is specifically forbidden. The prohibited uses include commercial use, "screen scraping", "database scraping", and any other activity intended to collect, store, reorganize or manipulate data on the pages produced by or displayed on this website.
The information contained on this site is based in whole or in part on information that is provided under copyright by the Toronto Regional Real Estate Board (TRREB) or by members of The Canadian Real Estate Association (CREA), who are responsible for its accuracy. TRREB and CREA reproduce and distribute this information as a service for their members and assume no responsibility for its accuracy. All information displayed is believed to be accurate but is not guaranteed and should be independently verified. No warranties or representations of any kind are made with respect to the accuracy of such information. The information provided herein must only be used by consumers that have a bona fide interest in the purchase, sale, or lease of real estate and may not be used for any commercial purpose or any other purpose.