Welcome Home to Lakewood, Strathmore—Your Dream, Your Way!Ready to build your dream home? Kelly Kustom Homes is offering an exciting opportunity in the vibrant Lakewood community! Picture yourself in this beautiful new construction featuring 3 bedrooms, 2.5 bathrooms, and luxurious comforts designed with your lifestyle in mind.Here's the best part—construction hasn't started yet! That means you have a special opportunity to put your personal touch on select finishes and fixtures. Imagine customizing your kitchen design, choosing flooring that speaks to you, and picking lighting that perfectly suits your taste.Inside, you'll find thoughtfully designed spaces where modern elegance meets cozy comfort, ideal for family moments, celebrations with friends, or simply unwinding after a busy day. Natural sunlight will stream through your open-concept home, creating a warm, inviting atmosphere you'll love coming home to.This property also offers the exciting potential to include a garage and possibly even a carriage house, thanks to its convenient laned lot location—perfect for additional space, guest accommodations, or rental opportunities.Lakewood isn't just a community—it's a lifestyle! Enjoy walking trails, charming ponds, lush green spaces, and the convenience of schools, shops, and amenities close by. Plus, exciting future developments like a private swimmable lake, recreational canals, parks, playgrounds, pickleball courts, and so much more are on their way!Don't miss out on being part of one of Strathmore’s most vibrant neighborhoods.Reach out today—your dream home awaits! (id:47421)
Interested in obtaining the full price history for this property? Contact us!Contact us! Our real estate professionals would be happy to provide a complete listing history with historical sold prices and dates.
Detailed Information
Bedrooms
2
Bathrooms
3
Lot
12.8 x 32.1 m
Amenities Nearby
Park, Playground, Schools, Shopping, Water Nearby
Community Features
Lake Privileges
Features
See remarks, Back lane, No Smoking Home, Parking
Listing Contract Date
2025-03-28
Municipal ID
0040182743
Ownership Type
Freehold
# of Parking Spaces
2
Plan
2311718
Property Type
Single Family
Structures
Deck
Transaction Type
For sale
Zoning Description
R1N
Building
Appliances
Refrigerator, Dishwasher, Range, Microwave, See remarks, Washer & Dryer
Basement Development
Unfinished
Basement Type
Full (Unfinished)
Constructed Date
2026
Construction Material
Poured concrete
Construction Style (Attachment)
Detached
Cooling Type
None
Exterior Finish
Concrete, Vinyl siding
Fireplace Present
Yes
# of Fireplaces
1
Flooring Type
Carpeted, Hardwood, Tile, Wood, Vinyl Plank
Foundation Type
Poured Concrete
Heating Fuel
Natural gas
Heating Type
Forced air
Stories Total
2
Total Finished Area
1754 sqft
Type
House
Rooms
Room
Level
Dimensions
Notes
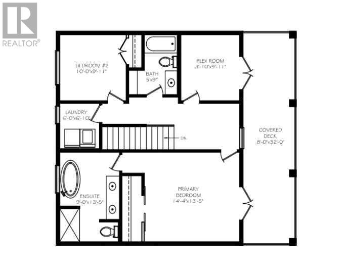
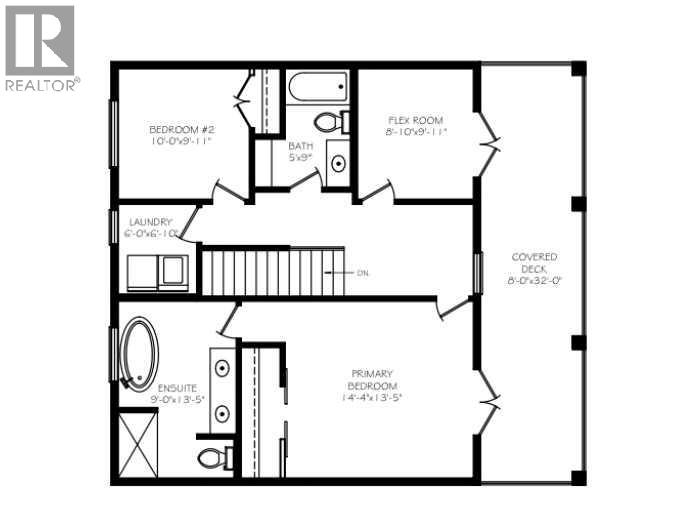
Primary Bedroom
Second level
14.33 Ft x 13.42 Ft
4pc Bathroom
Second level
9.00 Ft x 13.42 Ft
Laundry room
Second level
6.00 Ft x 6.83 Ft
Bedroom
Second level
10.00 Ft x 9.92 Ft
4pc Bathroom
Second level
5.00 Ft x 9.00 Ft
Other
Second level
8.83 Ft x 9.92 Ft
Other
Second level
8.00 Ft x 32.00 Ft
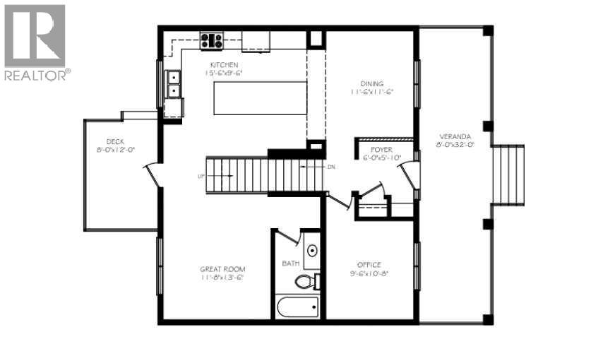
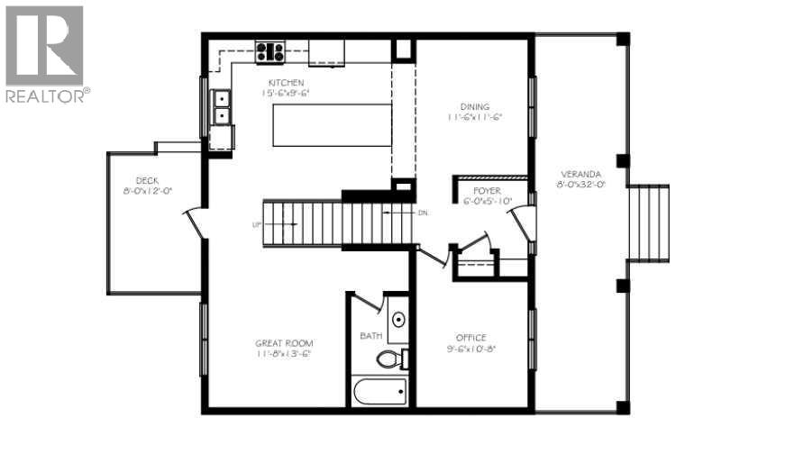
Kitchen
Main level
15.50 Ft x 9.50 Ft
Great room
Main level
11.67 Ft x 13.50 Ft
Dining room
Main level
11.50 Ft x 11.50 Ft
Foyer
Main level
6.00 Ft x 5.83 Ft
Office
Main level
9.50 Ft x 10.67 Ft
Other
Main level
8.00 Ft x 32.00 Ft
3pc Bathroom
Main level
5.00 Ft x 9.42 Ft
Parking Spaces
Name
Spaces
Other
Land
Total Size
4422.67 square feet
Amenities
Park, Playground, Schools, Shopping, Water Nearby
Fence Type
Not fenced
Size of Irregular Land
4422.67
Terms of Use
Please review and agree to the following terms of use to access the listing content:
REALTOR®, REALTORS®, and the REALTOR® logo are certification marks that are owned by REALTOR® Canada Inc. and licensed exclusively to The Canadian Real Estate Association (CREA). These certification marks identify real estate professionals who are members of CREA and who must abide by CREA's By-Laws, Rules, and the REALTOR® Code. The MLS® trademark and the MLS® logo are owned by CREA and identify the quality of services provided by real estate professionals who are members of CREA;
The information contained on this site is based in whole or in part on information that is provided by members of CREA, who are responsible for its accuracy. CREA reproduces and distributes this information as a service for its members and assumes no responsibility for its accuracy;
This website is operated by a brokerage or salesperson who is a member of CREA;
The listing content on this website is protected by copyright and other laws, and is intended solely for the private, non-commercial use by individuals. Any other reproduction, distribution or use of the content, in whole or in part, is specifically forbidden. The prohibited uses include commercial use, "screen scraping", "database scraping", and any other activity intended to collect, store, reorganize or manipulate data on the pages produced by or displayed on this website.
The information contained on this site is based in whole or in part on information that is provided under copyright by the Toronto Regional Real Estate Board (TRREB) or by members of The Canadian Real Estate Association (CREA), who are responsible for its accuracy. TRREB and CREA reproduce and distribute this information as a service for their members and assume no responsibility for its accuracy. All information displayed is believed to be accurate but is not guaranteed and should be independently verified. No warranties or representations of any kind are made with respect to the accuracy of such information. The information provided herein must only be used by consumers that have a bona fide interest in the purchase, sale, or lease of real estate and may not be used for any commercial purpose or any other purpose.