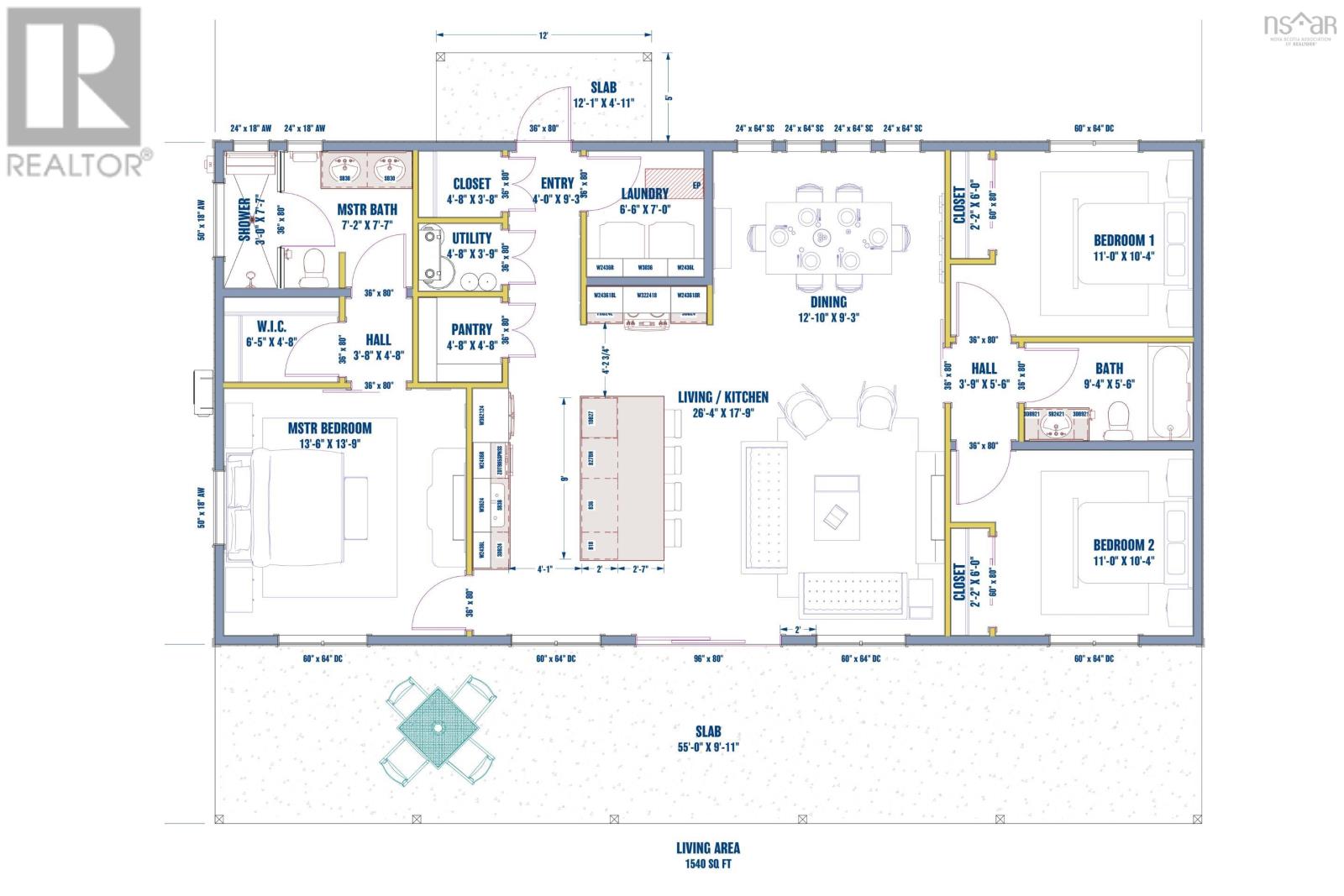
Lot 36, Sweetland Estates Turn-Key Lakeside Living 1,540 Sq. Ft. Home Included Experience effortless lakeside living with Lot 36 in Sweetland Estatesa fully turn-key package that includes both the lot and a beautifully finished 1,540 sq. ft. home, already in place and ready for immediate occupancy. Perfectly suited for buyers seeking comfort, quality, and convenience, this move-in-ready property features thoughtful design, modern finishes, and a peaceful, nature-filled setting. Enjoy all the benefits of this established lakeside communityincluding exclusive access to Old Sweetland Beach on Big Mushamush Lakeideal for swimming, boating, and relaxing by the water. Whether you're looking for a full-time residence or a ready-to-enjoy retreat, Lot 36 offers a rare opportunity to skip the build and start living the lakeside lifestyle right away. Just a short drive from Bridgewater and South Shore amenities, this is a seamless blend of rural charm and modern ease. (id:47421)
Interested in obtaining the full price history for this property? Contact us!Contact us! Our real estate professionals would be happy to provide a complete listing history with historical sold prices and dates.
Detailed Information
Bedrooms
3
Bathrooms
2
Listing Contract Date
2025-06-19
Location Description
NORTHFIELD ROAD TO SWEETLAND ROAD OR EXIT 11 OF HIGHWAY 103 TO CORNWALL ROAD TO SWEETLAND ROAD.
Maintenance Fee Payment Frequency
Monthly
Management Company
Condo Corp # 45
Municipal ID
60737202
Ownership Type
Condominium/Strata
Property Type
Single Family
Transaction Type
For sale
Views
Lake view
Building
Appliances
Range - Electric, Dishwasher, Dryer - Electric, Washer, Refrigerator
Architectural Style
Bungalow
Basement Type
None
Construction Style (Attachment)
Detached
Cooling Type
Central air conditioning, Heat Pump
Exterior Finish
Vinyl
Flooring Type
Laminate
Foundation Type
Concrete Slab
Stories Total
1
Total Finished Area
1540 sqft
Utility Water
Drilled Well
Rooms
Room
Level
Dimensions
Notes
Primary Bedroom
Main level
13.6x13.9
Ensuite (# pieces 2-6)
Main level
7.2x7.7
Eat in kitchen
Main level
26.4x17.9
Dining room
Main level
12.10x9.3
Bedroom
Main level
11x10.4
Bedroom
Main level
11x10.4
Bath (# pieces 1-6)
Main level
9.4x5.6
Laundry room
Main level
6.6x7
Parking Spaces
Name
Spaces
Gravel
Land
Total Size
1.09 acres
Acreage
Yes
Sewer
Septic System
Size of Irregular Land
1.09
Terms of Use
Please review and agree to the following terms of use to access the listing content:
REALTOR®, REALTORS®, and the REALTOR® logo are certification marks that are owned by REALTOR® Canada Inc. and licensed exclusively to The Canadian Real Estate Association (CREA). These certification marks identify real estate professionals who are members of CREA and who must abide by CREA's By-Laws, Rules, and the REALTOR® Code. The MLS® trademark and the MLS® logo are owned by CREA and identify the quality of services provided by real estate professionals who are members of CREA;
The information contained on this site is based in whole or in part on information that is provided by members of CREA, who are responsible for its accuracy. CREA reproduces and distributes this information as a service for its members and assumes no responsibility for its accuracy;
This website is operated by a brokerage or salesperson who is a member of CREA;
The listing content on this website is protected by copyright and other laws, and is intended solely for the private, non-commercial use by individuals. Any other reproduction, distribution or use of the content, in whole or in part, is specifically forbidden. The prohibited uses include commercial use, "screen scraping", "database scraping", and any other activity intended to collect, store, reorganize or manipulate data on the pages produced by or displayed on this website.
The information contained on this site is based in whole or in part on information that is provided under copyright by the Toronto Regional Real Estate Board (TRREB) or by members of The Canadian Real Estate Association (CREA), who are responsible for its accuracy. TRREB and CREA reproduce and distribute this information as a service for their members and assume no responsibility for its accuracy. All information displayed is believed to be accurate but is not guaranteed and should be independently verified. No warranties or representations of any kind are made with respect to the accuracy of such information. The information provided herein must only be used by consumers that have a bona fide interest in the purchase, sale, or lease of real estate and may not be used for any commercial purpose or any other purpose.