In the heart of Gillies Bay! This custom-built 2014 ocean view home offers 7 bedrooms and sits on a generous 0.84 acre lot, ideal for a large or multi-generational family, or simply for those who enjoy extra space. The lower level was designed with flexibility in mind, featuring extra roughed-in kitchen and bath, as well as a walkout entrance perfect for a future suite. Relax on the spacious sundeck and take in the beautiful Gillies Bay views, with peace of mind from a backup generator, water filtration system, and solid modern construction. A workshop with lane access at the bottom of the property is just receiving its finishing touches. Truly appreciated by the owners, this is simply more home than needed now that the kids are grown. (id:47421)
Interested in obtaining the full price history for this property? Contact us!Contact us! Our real estate professionals would be happy to provide a complete listing history with historical sold prices and dates.
Detailed Information
Bedrooms
7
Bathrooms
3
Features
Central location
Municipal ID
028-188-390
Ownership Type
Freehold
Property Type
Single Family
Transaction Type
For sale
Building
Construction Style (Attachment)
Detached
Fireplace Fuel
Propane
Fireplace Present
Yes
Fireplace Type
Conventional
Heating Fuel
Electric, Propane
Type
House
Rooms
Room
Level
Dimensions
Notes
Living room
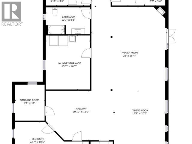
Basement
23 ft x 24 ft 4 in
Dining room
Basement
15 ft 9 in x 20 ft 6 in
Primary Bedroom
Basement
16 ft 4 in x 14 ft 3 in
4pc Bathroom
Basement
Measurements not available
Bedroom
Basement
13 ft 7 in x 14 ft 3 in
Bedroom
Basement
22 ft 7 in x 10 ft 6 in
Laundry room
Basement
13 ft 7 in x 16 ft 7 in
Workshop
Basement
9 ft 1 in x 11 ft
Workshop
Basement
6 ft 10 in x 4 ft 6 in
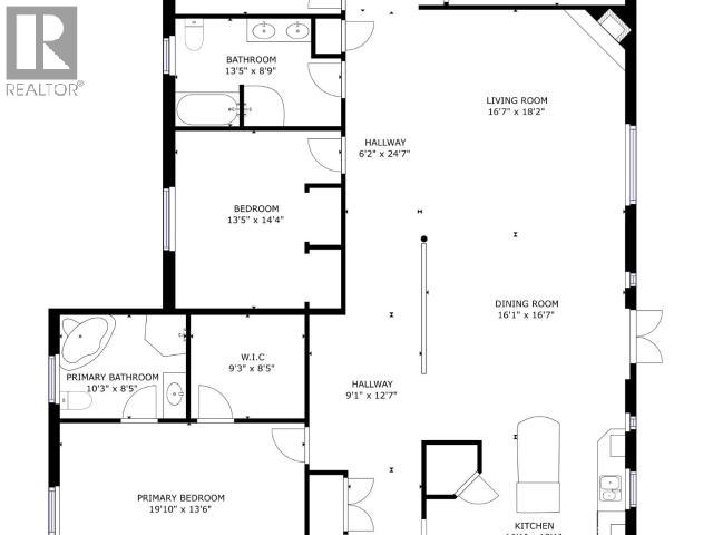
Foyer
Main level
6 ft x 9 ft 11 in
Living room
Main level
16 ft 7 in x 18 ft 2 in
Dining room
Main level
16 ft 1 in x 16 ft 7 in
Kitchen
Main level
16 ft 1 in x 12 ft 1 in
Primary Bedroom
Main level
19 ft 10 in x 13 ft 6 in
4pc Bathroom
Main level
Measurements not available
Bedroom
Main level
13 ft 5 in x 14 ft 4 in
Bedroom
Main level
14 ft 4 in x 13 ft 5 in
Bedroom
Main level
13 ft 5 in x 14 ft 2 in
Land
Total Size
0.84 acres
Size of Irregular Land
0.84
Terms of Use
Please review and agree to the following terms of use to access the listing content:
REALTOR®, REALTORS®, and the REALTOR® logo are certification marks that are owned by REALTOR® Canada Inc. and licensed exclusively to The Canadian Real Estate Association (CREA). These certification marks identify real estate professionals who are members of CREA and who must abide by CREA's By-Laws, Rules, and the REALTOR® Code. The MLS® trademark and the MLS® logo are owned by CREA and identify the quality of services provided by real estate professionals who are members of CREA;
The information contained on this site is based in whole or in part on information that is provided by members of CREA, who are responsible for its accuracy. CREA reproduces and distributes this information as a service for its members and assumes no responsibility for its accuracy;
This website is operated by a brokerage or salesperson who is a member of CREA;
The listing content on this website is protected by copyright and other laws, and is intended solely for the private, non-commercial use by individuals. Any other reproduction, distribution or use of the content, in whole or in part, is specifically forbidden. The prohibited uses include commercial use, "screen scraping", "database scraping", and any other activity intended to collect, store, reorganize or manipulate data on the pages produced by or displayed on this website.
The information contained on this site is based in whole or in part on information that is provided under copyright by the Toronto Regional Real Estate Board (TRREB) or by members of The Canadian Real Estate Association (CREA), who are responsible for its accuracy. TRREB and CREA reproduce and distribute this information as a service for their members and assume no responsibility for its accuracy. All information displayed is believed to be accurate but is not guaranteed and should be independently verified. No warranties or representations of any kind are made with respect to the accuracy of such information. The information provided herein must only be used by consumers that have a bona fide interest in the purchase, sale, or lease of real estate and may not be used for any commercial purpose or any other purpose.