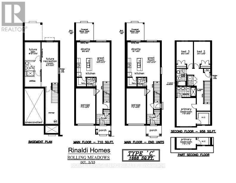
Listing Price includes Government enhanced HST Rebate. Spacious 1668 sq ft new two-storey interior unit freehold townhome. Now under construction in the Rolling Meadows masterplanned community. Features 9 foot main floor ceiling height, 3 bedrooms, 2.5 bath and 2 nd floor laundry with Samsung frontloading white washer & dryer. Kitchen features 37 tall upper cabinets, soft close cabinet doors & drawers, crown moulding,valence trim, island, walk-in pantry, stainless steel chimney hood, ceramic tile backsplash, Samsung stainless steel fridge, stove,dishwasher and 4 pot lights. Smooth drywalled ceiling throughout, 12x24 tile flooring, 6 wide plan engineered hardwoodflooring in the main floor hall/kitchen/great room. Spacious primary bedroom with large walk-in closet and ensuite with doublesinks and 5 acrylic shower. Unfinished basement with plenty of room for future rec-room, den. Includes 3pce rough-in forfuture basement bathroom, one 47x36 egress basement window. Central air, tankless water heater, Eco-bee programmablethermostat, automatic garage door opener, 10x10 pressure treated wood rear covered rear deck and interlocking brickdriveway. Only a short drive from all amenities including copious restaurants, shopping, Niagara on the Lake & one of the 7wonders of the world Niagara Falls. Easy access to the QEW. Listing price is based on the builders discounted pricing. Buyers agree to accept all builder selected interior & exterior finishes. Built by national award winning builder Rinaldi Homes. (id:47421)
Interested in obtaining the full price history for this property? Contact us!Contact us! Our real estate professionals would be happy to provide a complete listing history with historical sold prices and dates.
Detailed Information
Bedrooms
3
Bathrooms
3
Lot
19.83 x 92.67 ft
Amenities Nearby
Golf Nearby
Equipment
Water Heater
Listing Contract Date
2025-10-14
Location Description
Highway 20 to Barker Parkway to Harmony Way. Enter Barker Parkway from roundabout.
Ownership Type
Freehold
# of Parking Spaces
2
Property Type
Single Family
Rental Equipment
Water Heater
Structures
Deck
Transaction Type
For sale
Zoning Description
R
Building
Age
New building
Appliances
Water Heater - Tankless
Basement Development
Unfinished
Basement Type
Full (Unfinished)
Construction Style (Attachment)
Attached
Cooling Type
Central air conditioning
Exterior Finish
Vinyl siding, Brick
Foundation Type
Poured Concrete
# of Half Bathrooms
1
Heating Fuel
Natural gas
Heating Type
Forced air
Stories Total
2
Type
Row / Townhouse
Utility Water
Municipal water
Rooms
Room
Level
Dimensions
Notes
Primary Bedroom
Second level
3.35 m x 4.88 m
Bedroom
Second level
2.84 m x 3.81 m
Bedroom
Second level
2.87 m x 3.81 m
Bathroom
Second level
1 m x 1 m
Bathroom
Second level
1 m x 1 m
Great room
Main level
3.05 m x 6.71 m
Dining room
Main level
2.59 m x 2.74 m
Bathroom
Main level
1 m x 1 m
Parking Spaces
Name
Spaces
Attached Garage
Garage
Utilities
Type
Description
Cable
Available
Electricity
Installed
Sewer
Installed
Land
Total Size
19.9 x 92.7 FT | under 1/2 acre
Amenities
Golf Nearby
Sewer
Sanitary sewer
Size of Irregular Land
19.9 x 92.7 FT
Open Houses
Date & Time
Comments
24/05/2026 11:00 AM - 4:00 PM
25/05/2026 11:00 AM - 4:00 PM
Terms of Use
Please review and agree to the following terms of use to access the listing content:
REALTOR®, REALTORS®, and the REALTOR® logo are certification marks that are owned by REALTOR® Canada Inc. and licensed exclusively to The Canadian Real Estate Association (CREA). These certification marks identify real estate professionals who are members of CREA and who must abide by CREA's By-Laws, Rules, and the REALTOR® Code. The MLS® trademark and the MLS® logo are owned by CREA and identify the quality of services provided by real estate professionals who are members of CREA;
The information contained on this site is based in whole or in part on information that is provided by members of CREA, who are responsible for its accuracy. CREA reproduces and distributes this information as a service for its members and assumes no responsibility for its accuracy;
This website is operated by a brokerage or salesperson who is a member of CREA;
The listing content on this website is protected by copyright and other laws, and is intended solely for the private, non-commercial use by individuals. Any other reproduction, distribution or use of the content, in whole or in part, is specifically forbidden. The prohibited uses include commercial use, "screen scraping", "database scraping", and any other activity intended to collect, store, reorganize or manipulate data on the pages produced by or displayed on this website.
The information contained on this site is based in whole or in part on information that is provided under copyright by the Toronto Regional Real Estate Board (TRREB) or by members of The Canadian Real Estate Association (CREA), who are responsible for its accuracy. TRREB and CREA reproduce and distribute this information as a service for their members and assume no responsibility for its accuracy. All information displayed is believed to be accurate but is not guaranteed and should be independently verified. No warranties or representations of any kind are made with respect to the accuracy of such information. The information provided herein must only be used by consumers that have a bona fide interest in the purchase, sale, or lease of real estate and may not be used for any commercial purpose or any other purpose.