Welcome to 806 Gladstone Avenue - a fully renovated legal duplex offering exceptional income potential and long-term value. Completely transformed in 2025, this semi-detached home has been thoughtfully redesigned with modern finishes and functionality, making it an ideal opportunity for investors, end-users seeking rental income, or multi-generational families. The property is legally configured as two self-contained units, providing flexibility to live in one unit while renting the other, or to generate dual rental income. The main and upper levels feature a brand-new kitchen with quartz countertops, stainless steel appliances, and custom cabinetry, along with three spacious, light-filled bedrooms and ample storage. The finished lower unit includes its own kitchen, full bathroom, and a separate walk-up entrance, making it perfectly suited for a rental suite, in-law accommodation, or additional income stream. Extensively upgraded from top to bottom, the home boasts a new roof, stucco exterior, modern canopy, and a brand-new hot water tank. All major systems-including heating, air conditioning, plumbing, and electrical-have been fully updated, offering peace of mind and low maintenance for years to come. With approximately 2,700 sq. ft. of finished living space, this rare laneway garage home stands out in one of Toronto's most desirable neighborhoods. Steps to parks, schools, transit, and local amenities, 806 Gladstone Avenue is a turnkey legal duplex that delivers versatility, rental income potential, and strong long-term upside. (id:47421)
Interested in obtaining the full price history for this property? Contact us!Contact us! Our real estate professionals would be happy to provide a complete listing history with historical sold prices and dates.
Detailed Information
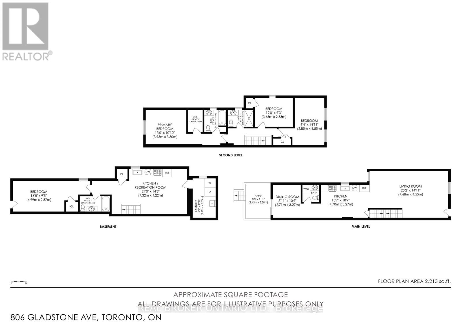
Bedrooms
3+2
Bathrooms
4
Lot
18 x 131 ft
Amenities Nearby
Park, Schools
Listing Contract Date
2026-01-07
Location Description
Dufferin St/Dupont St
Ownership Type
Freehold
# of Parking Spaces
2
Property Type
Single Family
Transaction Type
For sale
Building
Appliances
Dishwasher, Dryer, Water Heater, Stove, Washer, Refrigerator
Basement Development
Finished
Basement Features
Apartment in basement, Walk out
Basement Type
N/A, N/A (Finished)
Construction Style (Attachment)
Semi-detached
Cooling Type
Central air conditioning
Exterior Finish
Stucco
Flooring Type
Hardwood, Ceramic
Foundation Type
Concrete
# of Half Bathrooms
2
Heating Fuel
Natural gas
Heating Type
Forced air
Stories Total
2
Type
House
Utility Water
Municipal water
Rooms
Room
Level
Dimensions
Notes
Bedroom
Second level
2.14 m x 2.19 m
Bathroom
Second level
2.53 m x 1.65 m
Bedroom
Second level
3.95 m x 3.3 m
Bedroom 2
Second level
3.65 m x 2.83 m
Bedroom 3
Second level
2.85 m x 4.55 m
Bathroom
Basement
Measurements not available
Kitchen
Basement
7.32 m x 4.22 m
Recreational, Games room
Basement
4.99 m x 2.87 m
Laundry room
Basement
2.19 m x 3.85 m
Living room
Main level
7.68 m x 4.55 m
Bathroom
Main level
1.85 m x 2 m
Dining room
Main level
7.68 m x 4.55 m
Kitchen
Main level
4.7 m x 3.27 m
Family room
Main level
2.71 m x 3.27 m
Parking Spaces
Name
Spaces
Detached Garage
Garage
Land
Total Size
18 x 131 FT
Amenities
Park, Schools
Sewer
Sanitary sewer
Size of Irregular Land
18 x 131 FT
Terms of Use
Please review and agree to the following terms of use to access the listing content:
REALTOR®, REALTORS®, and the REALTOR® logo are certification marks that are owned by REALTOR® Canada Inc. and licensed exclusively to The Canadian Real Estate Association (CREA). These certification marks identify real estate professionals who are members of CREA and who must abide by CREA's By-Laws, Rules, and the REALTOR® Code. The MLS® trademark and the MLS® logo are owned by CREA and identify the quality of services provided by real estate professionals who are members of CREA;
The information contained on this site is based in whole or in part on information that is provided by members of CREA, who are responsible for its accuracy. CREA reproduces and distributes this information as a service for its members and assumes no responsibility for its accuracy;
This website is operated by a brokerage or salesperson who is a member of CREA;
The listing content on this website is protected by copyright and other laws, and is intended solely for the private, non-commercial use by individuals. Any other reproduction, distribution or use of the content, in whole or in part, is specifically forbidden. The prohibited uses include commercial use, "screen scraping", "database scraping", and any other activity intended to collect, store, reorganize or manipulate data on the pages produced by or displayed on this website.
The information contained on this site is based in whole or in part on information that is provided under copyright by the Toronto Regional Real Estate Board (TRREB) or by members of The Canadian Real Estate Association (CREA), who are responsible for its accuracy. TRREB and CREA reproduce and distribute this information as a service for their members and assume no responsibility for its accuracy. All information displayed is believed to be accurate but is not guaranteed and should be independently verified. No warranties or representations of any kind are made with respect to the accuracy of such information. The information provided herein must only be used by consumers that have a bona fide interest in the purchase, sale, or lease of real estate and may not be used for any commercial purpose or any other purpose.