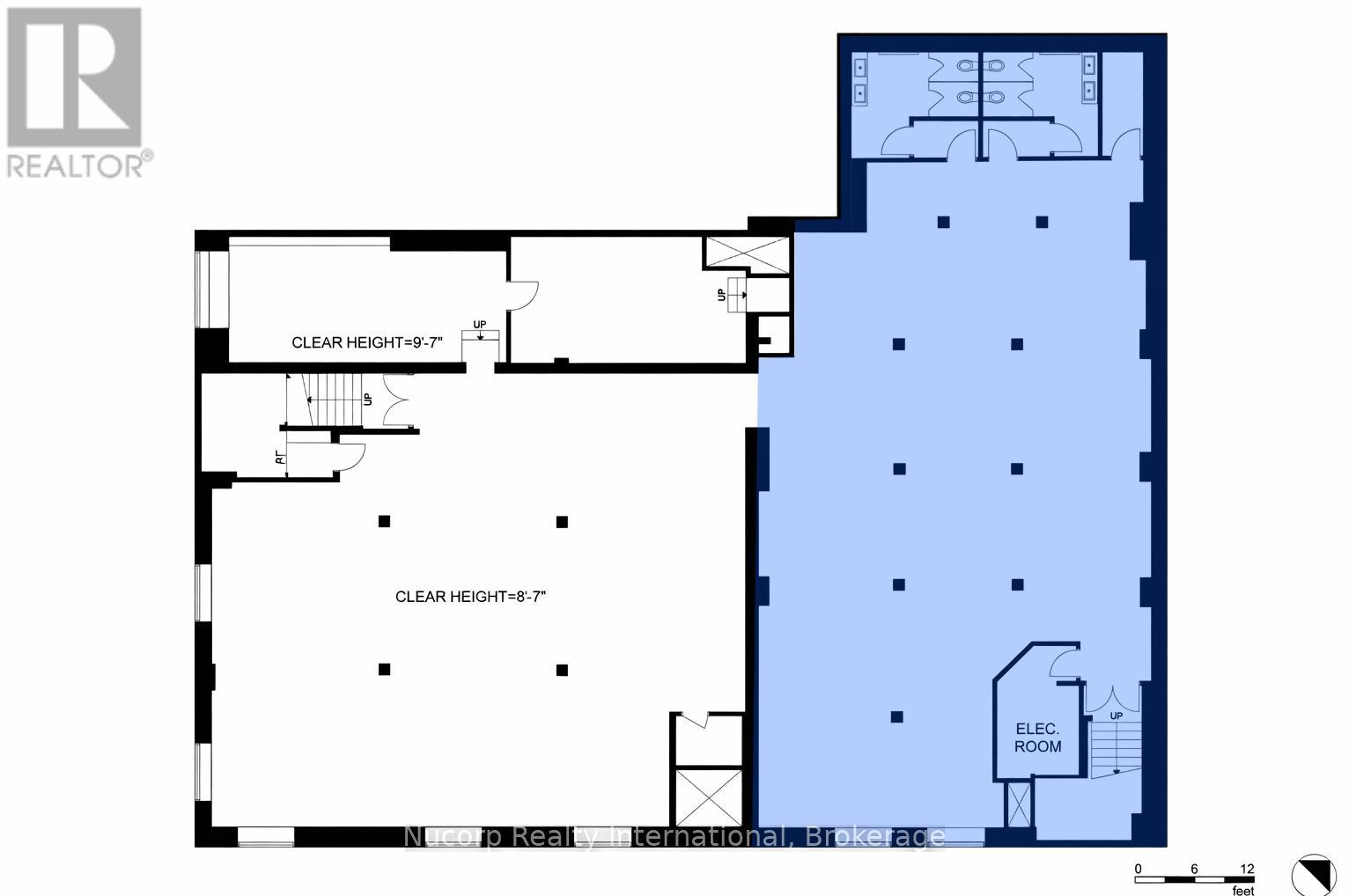
Unique opportunity to lease a freestanding corner building with 3,215 SF of commercial space on the bright basement level in Corktown. Recently renovated with large windows providing ample natural light. Well designed open concept layout. Excellent signage potential. Rare convenient downtown parking included. Prime location with easy access to the DVP and Gardiner Expressway. CR SS2 Zoning Permits MANY USES including but not limited to Medical, Veterinary Clinic, Retail, Wellness Centre, Educational Use. (id:47421)
Interested in obtaining the full price history for this property? Contact us!Contact us! Our real estate professionals would be happy to provide a complete listing history with historical sold prices and dates.
Detailed Information
Lot
98.25 x 82.5 ft
Amenities Nearby
Highway, Public Transit
Lease Type
Net
Listing Contract Date
2026-01-13
Location Description
Cross Streets: Eastern Ave & Trinity St. ** Directions: Property on North/East side of Eastern Ave & Trinity St.
Property Type
Retail
Transaction Type
For lease
Zoning Description
CR SS2
Building
Cooling Type
Fully air conditioned
Heating Fuel
Natural gas
Heating Type
Forced air
Utility Water
Municipal water
Land
Total Size
98.32 x 82.54 FT
Amenities
Highway, Public Transit
Size of Irregular Land
98.32 x 82.54 FT
Terms of Use
Please review and agree to the following terms of use to access the listing content:
REALTOR®, REALTORS®, and the REALTOR® logo are certification marks that are owned by REALTOR® Canada Inc. and licensed exclusively to The Canadian Real Estate Association (CREA). These certification marks identify real estate professionals who are members of CREA and who must abide by CREA's By-Laws, Rules, and the REALTOR® Code. The MLS® trademark and the MLS® logo are owned by CREA and identify the quality of services provided by real estate professionals who are members of CREA;
The information contained on this site is based in whole or in part on information that is provided by members of CREA, who are responsible for its accuracy. CREA reproduces and distributes this information as a service for its members and assumes no responsibility for its accuracy;
This website is operated by a brokerage or salesperson who is a member of CREA;
The listing content on this website is protected by copyright and other laws, and is intended solely for the private, non-commercial use by individuals. Any other reproduction, distribution or use of the content, in whole or in part, is specifically forbidden. The prohibited uses include commercial use, "screen scraping", "database scraping", and any other activity intended to collect, store, reorganize or manipulate data on the pages produced by or displayed on this website.
The information contained on this site is based in whole or in part on information that is provided under copyright by the Toronto Regional Real Estate Board (TRREB) or by members of The Canadian Real Estate Association (CREA), who are responsible for its accuracy. TRREB and CREA reproduce and distribute this information as a service for their members and assume no responsibility for its accuracy. All information displayed is believed to be accurate but is not guaranteed and should be independently verified. No warranties or representations of any kind are made with respect to the accuracy of such information. The information provided herein must only be used by consumers that have a bona fide interest in the purchase, sale, or lease of real estate and may not be used for any commercial purpose or any other purpose.