OCEANFRONT IN TRINITY!!! A rare opportunity to own one of the most desirable locations on Newfoundland's Bonavista Peninsula! Nestled on the ocean's edge in the picturesque, historic town of Trinity, this new construction, traditional salt box awaits. With generous allowances, you will have creative input to make this oceanfront oasis the home of your dreams. With 3 bedrooms and 2.5 bathrooms, spacious kitchen, living area and front deck, this home offers all of the modern amenities wrapped in the traditional architecture of the mid-1800s. This beautiful property will make the perfect vacation get-away, Airbnb, or year round retreat! Watch whales and eagles from the comfort of your home or stroll through the town and enjoy live music, theatre, shops, and culinary delights! Local breweries, coastal hiking, food and music festivals, all just minutes away from this exquisite piece of paradise! (id:47421)
Interested in obtaining the full price history for this property? Contact us!Contact us! Our real estate professionals would be happy to provide a complete listing history with historical sold prices and dates.
Detailed Information
Bedrooms
3
Bathrooms
3
Amenities Nearby
Recreation, Shopping
Listing Contract Date
2025-10-02
Ownership Type
Freehold
Property Type
Single Family
Transaction Type
For sale
Views
Ocean view
Zoning Description
res
Building
Architectural Style
2 Level
Constructed Date
2025
Construction Style (Attachment)
Detached
Cooling Type
Air exchanger
Exterior Finish
Other
Flooring Type
Mixed Flooring
Foundation Type
Concrete
# of Half Bathrooms
1
Heating Fuel
Electric
Heating Type
Baseboard heaters
Stories Total
2
Type
House
Utility Water
Municipal water
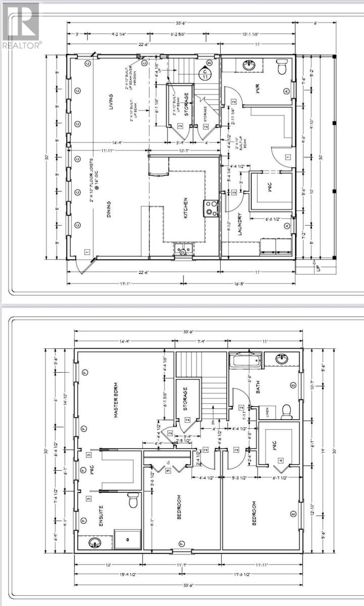
Rooms
Room
Level
Dimensions
Notes
Bedroom
Second level
11'7 X 12'10
Bedroom
Second level
12'10 X 11'11
Bath (# pieces 1-6)
Second level
11 X 10'7
Ensuite
Second level
9'1 X 10
Primary Bedroom
Second level
14'10 X 14'9
Bath (# pieces 1-6)
Main level
7'6 X 11
Laundry room
Main level
9'10 X 11
Living room
Main level
14'9 X 14
Dining room
Main level
11'11 X 15
Kitchen
Main level
10'7 X 15
Land
Total Size
.64 acre | 21,780 - 32,669 sqft (1/2 - 3/4 ac)
Access Type
Water access
Amenities
Recreation, Shopping
Landscape Features
Partially landscaped
Sewer
Septic tank
Size of Irregular Land
.64 acre
Terms of Use
Please review and agree to the following terms of use to access the listing content:
REALTOR®, REALTORS®, and the REALTOR® logo are certification marks that are owned by REALTOR® Canada Inc. and licensed exclusively to The Canadian Real Estate Association (CREA). These certification marks identify real estate professionals who are members of CREA and who must abide by CREA's By-Laws, Rules, and the REALTOR® Code. The MLS® trademark and the MLS® logo are owned by CREA and identify the quality of services provided by real estate professionals who are members of CREA;
The information contained on this site is based in whole or in part on information that is provided by members of CREA, who are responsible for its accuracy. CREA reproduces and distributes this information as a service for its members and assumes no responsibility for its accuracy;
This website is operated by a brokerage or salesperson who is a member of CREA;
The listing content on this website is protected by copyright and other laws, and is intended solely for the private, non-commercial use by individuals. Any other reproduction, distribution or use of the content, in whole or in part, is specifically forbidden. The prohibited uses include commercial use, "screen scraping", "database scraping", and any other activity intended to collect, store, reorganize or manipulate data on the pages produced by or displayed on this website.
The information contained on this site is based in whole or in part on information that is provided under copyright by the Toronto Regional Real Estate Board (TRREB) or by members of The Canadian Real Estate Association (CREA), who are responsible for its accuracy. TRREB and CREA reproduce and distribute this information as a service for their members and assume no responsibility for its accuracy. All information displayed is believed to be accurate but is not guaranteed and should be independently verified. No warranties or representations of any kind are made with respect to the accuracy of such information. The information provided herein must only be used by consumers that have a bona fide interest in the purchase, sale, or lease of real estate and may not be used for any commercial purpose or any other purpose.