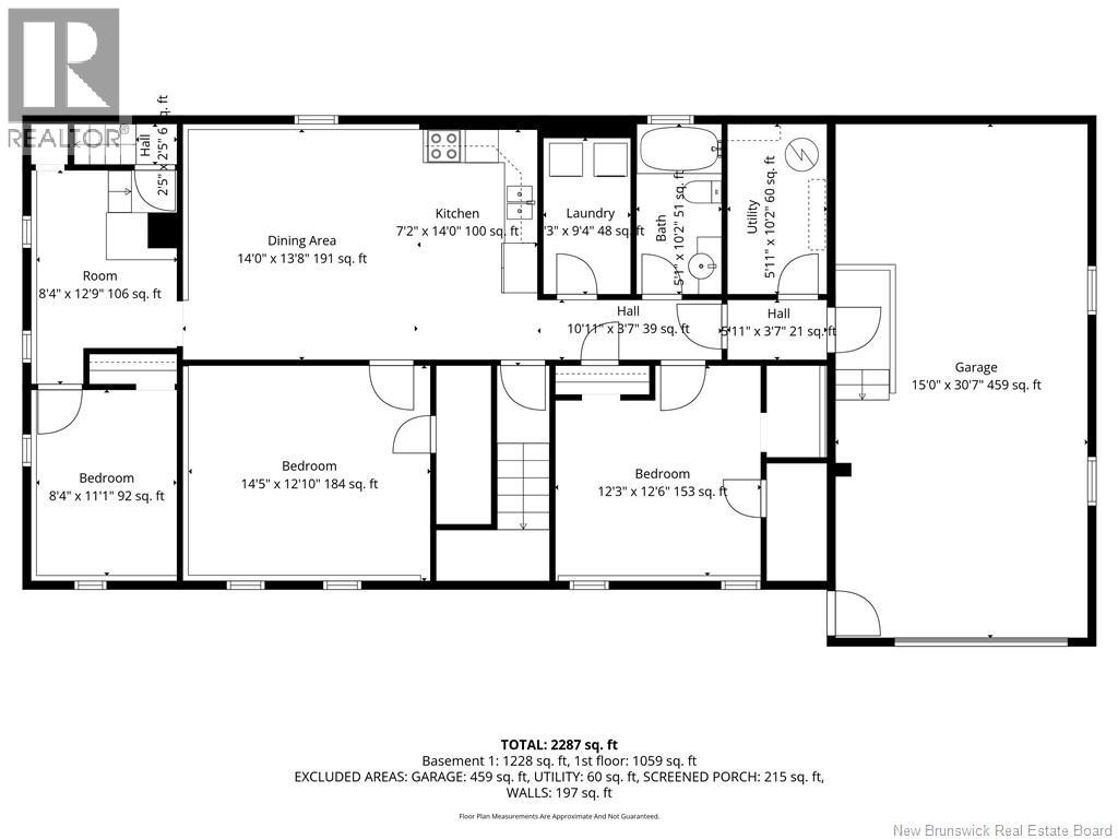
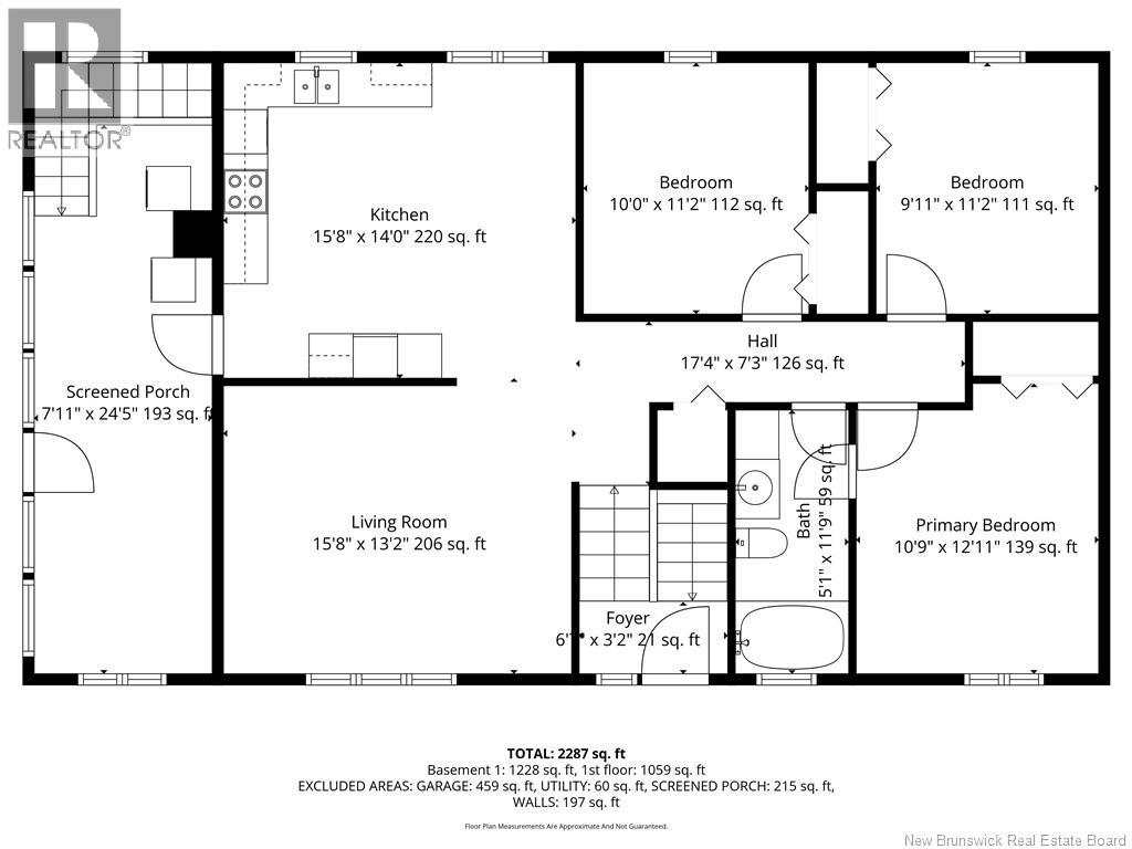
Welcome to 12 Bellerive in Trois Ruisseaux. This home with a basement apartment is sure to be in high demand! The main floor features 3 spacious bedrooms, a large kitchen and living room, a 3-piece bath, and an attached garage. The lower level offers 2 additional bedrooms, a huge kitchen and dining area, plus a generously sized living room. Sitting on a large lot, this property also boasts a nice workshop on the left-hand side. Enjoy beach access just minutes down the road. (id:47421)
Interested in obtaining the full price history for this property? Contact us!Contact us! Our real estate professionals would be happy to provide a complete listing history with historical sold prices and dates.
Detailed Information
Bedrooms
3+2
Bathrooms
2
Equipment
None
Features
Other, Balcony/Deck/Patio
Location Description
In cap-Pele pass the school drive a few km on Acadie and turn onto Trois Ruisseaux Rd, (rte 950) drive 3 km approximately and turn onto Bellerive road that will ber on your left hand side. Turn onto Bellerive and you will see 12 Bellerive on your left hand side.
Municipal ID
01088251
Ownership Type
Freehold
Property Type
Single Family
Rental Equipment
None
Transaction Type
For sale
Building
Architectural Style
Split entry bungalow, 2 Level
Cooling Type
Heat Pump
Exterior Finish
Vinyl
Flooring Type
Ceramic, Laminate
Foundation Type
Concrete
Heating Fuel
Electric
Heating Type
Baseboard heaters, Heat Pump
Stories Total
1
Total Finished Area
2287 sqft
Type
House
Utility Water
Drilled Well
Rooms
Room
Level
Dimensions
Notes
Other
Basement
8'4'' x 12'9''
Utility room
Basement
5'11'' x 10'2''
3pc Bathroom
Basement
5'1'' x 10'2''
Laundry room
Basement
X
Living room
Basement
14'5'' x 12'10''
Bedroom
Basement
12'3'' x 12'6''
Kitchen
Basement
7'2'' x 14'
Dining room
Basement
14' x 13'8''
Other
Main level
7'11'' x 24'5''
3pc Bathroom
Main level
5'1'' x 11'9''
Bedroom
Main level
10' x 11'2''
Bedroom
Main level
9'11'' x 11'2''
Primary Bedroom
Main level
10'9'' x 12'11''
Living room
Main level
15'8'' x 13'2''
Kitchen
Main level
15'8'' x 14'
Parking Spaces
Name
Spaces
Attached Garage
Land
Total Size
3892 square meters
Sewer
Septic System
Size of Irregular Land
3892
Terms of Use
Please review and agree to the following terms of use to access the listing content:
REALTOR®, REALTORS®, and the REALTOR® logo are certification marks that are owned by REALTOR® Canada Inc. and licensed exclusively to The Canadian Real Estate Association (CREA). These certification marks identify real estate professionals who are members of CREA and who must abide by CREA's By-Laws, Rules, and the REALTOR® Code. The MLS® trademark and the MLS® logo are owned by CREA and identify the quality of services provided by real estate professionals who are members of CREA;
The information contained on this site is based in whole or in part on information that is provided by members of CREA, who are responsible for its accuracy. CREA reproduces and distributes this information as a service for its members and assumes no responsibility for its accuracy;
This website is operated by a brokerage or salesperson who is a member of CREA;
The listing content on this website is protected by copyright and other laws, and is intended solely for the private, non-commercial use by individuals. Any other reproduction, distribution or use of the content, in whole or in part, is specifically forbidden. The prohibited uses include commercial use, "screen scraping", "database scraping", and any other activity intended to collect, store, reorganize or manipulate data on the pages produced by or displayed on this website.
The information contained on this site is based in whole or in part on information that is provided under copyright by the Toronto Regional Real Estate Board (TRREB) or by members of The Canadian Real Estate Association (CREA), who are responsible for its accuracy. TRREB and CREA reproduce and distribute this information as a service for their members and assume no responsibility for its accuracy. All information displayed is believed to be accurate but is not guaranteed and should be independently verified. No warranties or representations of any kind are made with respect to the accuracy of such information. The information provided herein must only be used by consumers that have a bona fide interest in the purchase, sale, or lease of real estate and may not be used for any commercial purpose or any other purpose.