Welcome to Meadow Ridge Estates modern bungalow living at its finest!Just 20 minutes from downtown Halifax and 15 minutes from the airport, this thoughtfully designed home offers both convenience and comfort close to all essential amenities. Step inside to find a bright, openconcept main living area with vaulted ceilings and a spacious kitchen featuring abundant cabinetry. Theprimary suite includes a generous walk-through closet leading to a private ensuite with a 5 foot shower.A second full bathroom, guest bedroom, main floor laundry, and a large entryway add to the homespracticality. Enjoy outdoor living with a stamped concrete front porch and rear deck, perfect forrelaxing or entertaining. Additional highlights include a single-car garage and an energy-efficientductless heat pump. This home comes complete with HST included in the price and peace of mind provided byan 8-Year LUX Home Warranty. (id:47421)
Interested in obtaining the full price history for this property? Contact us!Contact us! Our real estate professionals would be happy to provide a complete listing history with historical sold prices and dates.
Detailed Information
Bedrooms
2
Bathrooms
2
Amenities Nearby
Park, Shopping
Community Features
School Bus
Features
Level
Listing Contract Date
2025-08-20
Location Description
Sackville Drive to Buttercup Grove to Wineberry Way, right onto Shadebush Walk
Maintenance Fee Payment Frequency
Monthly
Management Company
Condo Corp # 415
Municipal ID
41528589
Ownership Type
Condominium/Strata
Property Type
Single Family
Transaction Type
For sale
Building
Architectural Style
Bungalow
Basement Type
None
Construction Style (Attachment)
Semi-detached
Cooling Type
Heat Pump
Exterior Finish
Stone, Vinyl
Flooring Type
Ceramic Tile, Laminate
Foundation Type
Concrete Slab
Stories Total
1
Total Finished Area
1118 sqft
Type
House
Utility Water
Community Water System, Dug Well, Shared Well
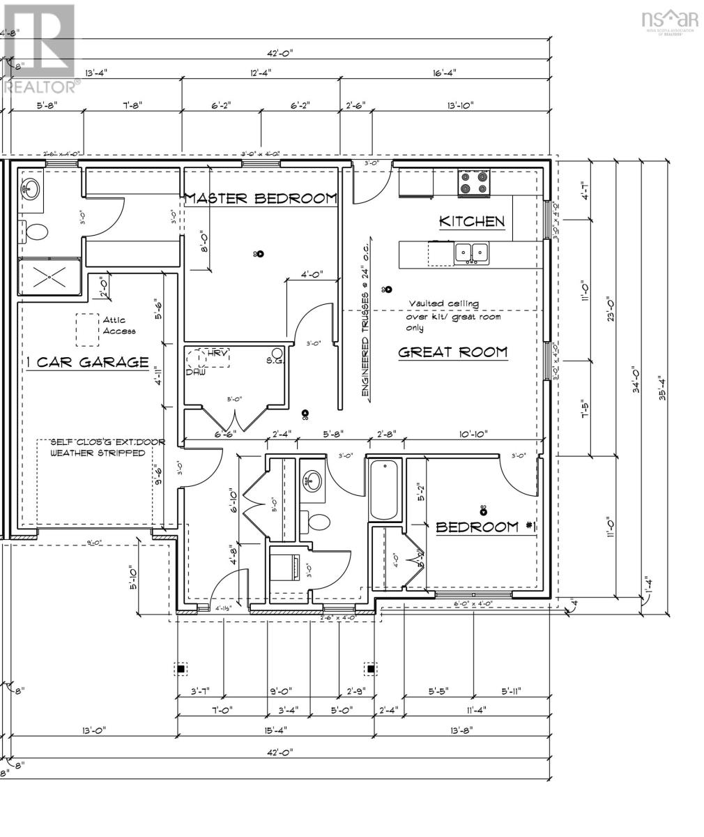
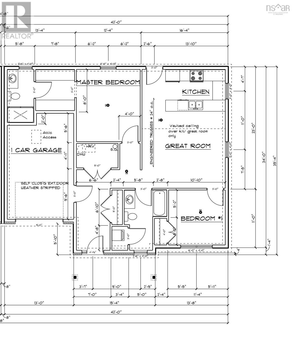
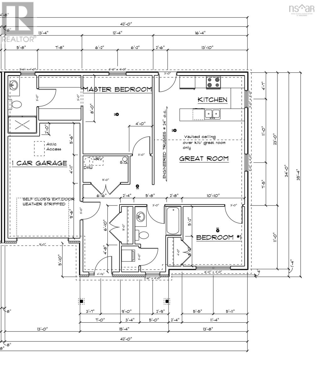
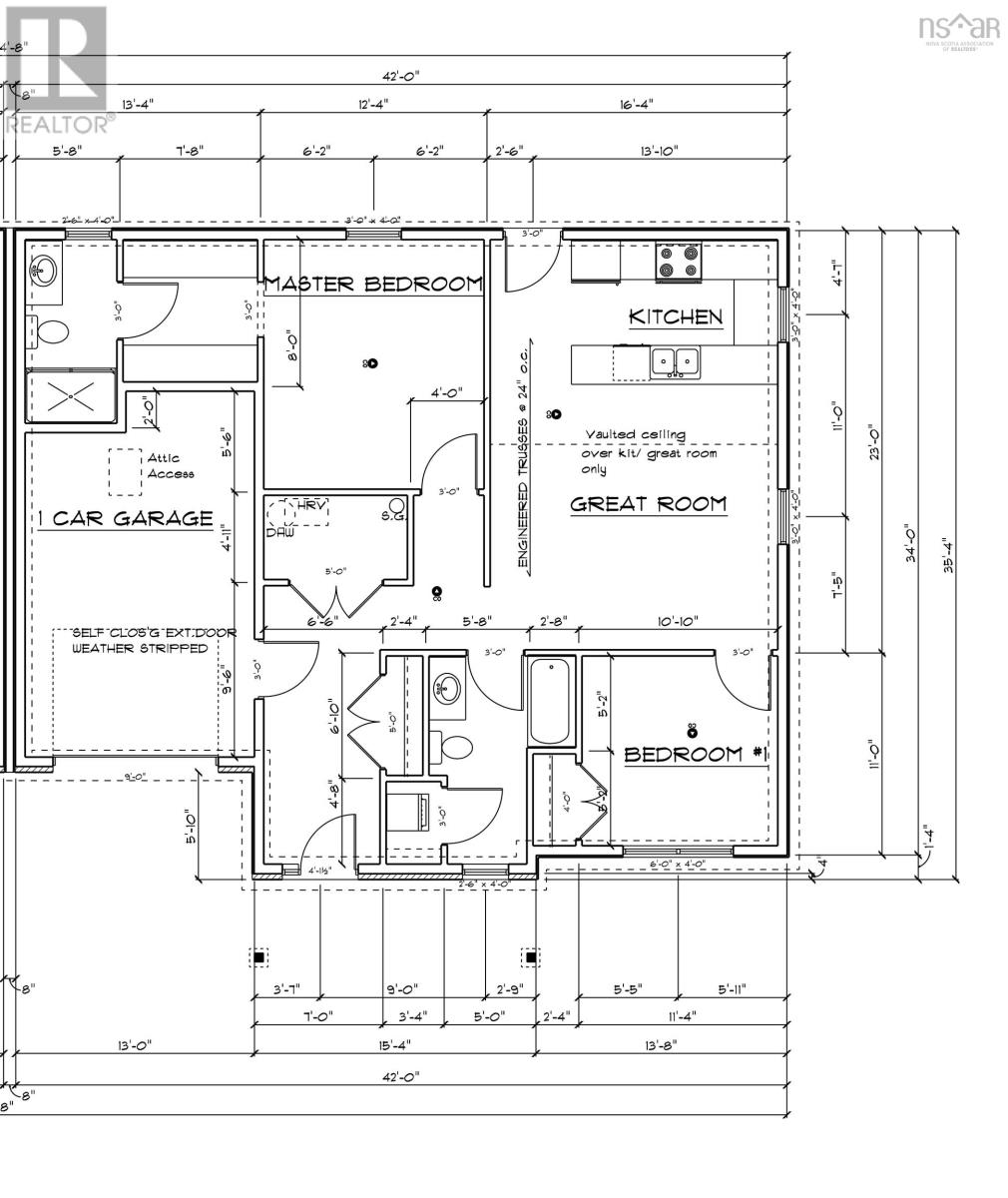
Rooms
Room
Level
Dimensions
Notes
Kitchen
Main level
15.5x8
Great room
Main level
15.5x15
Primary Bedroom
Main level
12.4x13.2
Bedroom
Main level
10.10x11
Laundry room
Main level
4x3.4
Utility room
Main level
4.11x7
Foyer
Main level
6.6x10.9
Other
Main level
garage 13x20-jog
Parking Spaces
Name
Spaces
Garage
Attached Garage
Heated Garage
Paved Yard
Land
Total Size
0.3573 acres
Amenities
Park, Shopping
Landscape Features
Landscaped
Sewer
Unknown
Size of Irregular Land
0.3573
Terms of Use
Please review and agree to the following terms of use to access the listing content:
REALTOR®, REALTORS®, and the REALTOR® logo are certification marks that are owned by REALTOR® Canada Inc. and licensed exclusively to The Canadian Real Estate Association (CREA). These certification marks identify real estate professionals who are members of CREA and who must abide by CREA's By-Laws, Rules, and the REALTOR® Code. The MLS® trademark and the MLS® logo are owned by CREA and identify the quality of services provided by real estate professionals who are members of CREA;
The information contained on this site is based in whole or in part on information that is provided by members of CREA, who are responsible for its accuracy. CREA reproduces and distributes this information as a service for its members and assumes no responsibility for its accuracy;
This website is operated by a brokerage or salesperson who is a member of CREA;
The listing content on this website is protected by copyright and other laws, and is intended solely for the private, non-commercial use by individuals. Any other reproduction, distribution or use of the content, in whole or in part, is specifically forbidden. The prohibited uses include commercial use, "screen scraping", "database scraping", and any other activity intended to collect, store, reorganize or manipulate data on the pages produced by or displayed on this website.
The information contained on this site is based in whole or in part on information that is provided under copyright by the Toronto Regional Real Estate Board (TRREB) or by members of The Canadian Real Estate Association (CREA), who are responsible for its accuracy. TRREB and CREA reproduce and distribute this information as a service for their members and assume no responsibility for its accuracy. All information displayed is believed to be accurate but is not guaranteed and should be independently verified. No warranties or representations of any kind are made with respect to the accuracy of such information. The information provided herein must only be used by consumers that have a bona fide interest in the purchase, sale, or lease of real estate and may not be used for any commercial purpose or any other purpose.