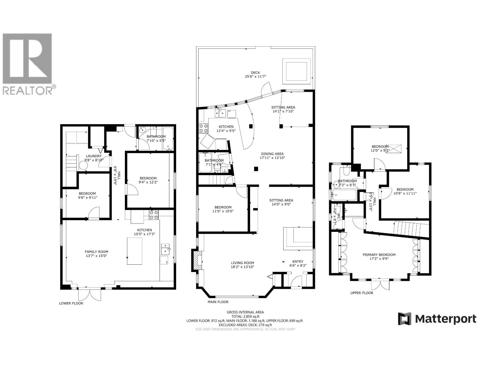
Beautiful home sits in 33X130 lot in prestigious Dunbar! Right across from park, tennis court & Dunbar community center. Main & upstairs renovated over past years and Bsmt renovated in 2007, raised headroom & equipped with a 2 bedroom suite. Well maintained house with open plan, hardwood floor, maple cabinets, fireplace, big window in living/dining room overlooking onto a lovely park, bright & airy kitchen/den/family room. 3 bedrooms up include a well appointed master ensuite. Basement has two bedrooms and open kitchen. $7000/month rental income. Double garage. Steps to St Georges private school. Close to UBC, Lord Byng Sec, Lord Kitchener, Crofton House school. Walking distance to Dunbar Community Center, tennis court, library, shopping & restaurants along Dunbar St. Hold or renovate it! (id:47421)
Interested in obtaining the full price history for this property? Contact us!Contact us! Our real estate professionals would be happy to provide a complete listing history with historical sold prices and dates.
Detailed Information
Bedrooms
6
Bathrooms
4
Lot
33 x 0 ft
Amenities Nearby
Golf Course, Recreation
Features
Treed
Municipal ID
013-502-310
Ownership Type
Freehold
# of Parking Spaces
2
Property Type
Single Family
Transaction Type
For sale
Building
Amenities
Laundry - In Suite
Appliances
All
Architectural Style
2 Level
Basement Development
Finished
Basement Features
Unknown
Basement Type
Unknown (Finished)
Constructed Date
1936
Construction Style (Attachment)
Detached
Fire Protection
Security system
Fireplace Present
Yes
# of Fireplaces
1
Heating Fuel
Natural gas
Heating Type
Hot Water, Radiant heat
Type
House
Parking Spaces
Name
Spaces
Garage
2
Land
Total Size
4294.29 square feet
Amenities
Golf Course, Recreation
Size of Irregular Land
4294.29
Terms of Use
Please review and agree to the following terms of use to access the listing content:
REALTOR®, REALTORS®, and the REALTOR® logo are certification marks that are owned by REALTOR® Canada Inc. and licensed exclusively to The Canadian Real Estate Association (CREA). These certification marks identify real estate professionals who are members of CREA and who must abide by CREA's By-Laws, Rules, and the REALTOR® Code. The MLS® trademark and the MLS® logo are owned by CREA and identify the quality of services provided by real estate professionals who are members of CREA;
The information contained on this site is based in whole or in part on information that is provided by members of CREA, who are responsible for its accuracy. CREA reproduces and distributes this information as a service for its members and assumes no responsibility for its accuracy;
This website is operated by a brokerage or salesperson who is a member of CREA;
The listing content on this website is protected by copyright and other laws, and is intended solely for the private, non-commercial use by individuals. Any other reproduction, distribution or use of the content, in whole or in part, is specifically forbidden. The prohibited uses include commercial use, "screen scraping", "database scraping", and any other activity intended to collect, store, reorganize or manipulate data on the pages produced by or displayed on this website.
The information contained on this site is based in whole or in part on information that is provided under copyright by the Toronto Regional Real Estate Board (TRREB) or by members of The Canadian Real Estate Association (CREA), who are responsible for its accuracy. TRREB and CREA reproduce and distribute this information as a service for their members and assume no responsibility for its accuracy. All information displayed is believed to be accurate but is not guaranteed and should be independently verified. No warranties or representations of any kind are made with respect to the accuracy of such information. The information provided herein must only be used by consumers that have a bona fide interest in the purchase, sale, or lease of real estate and may not be used for any commercial purpose or any other purpose.