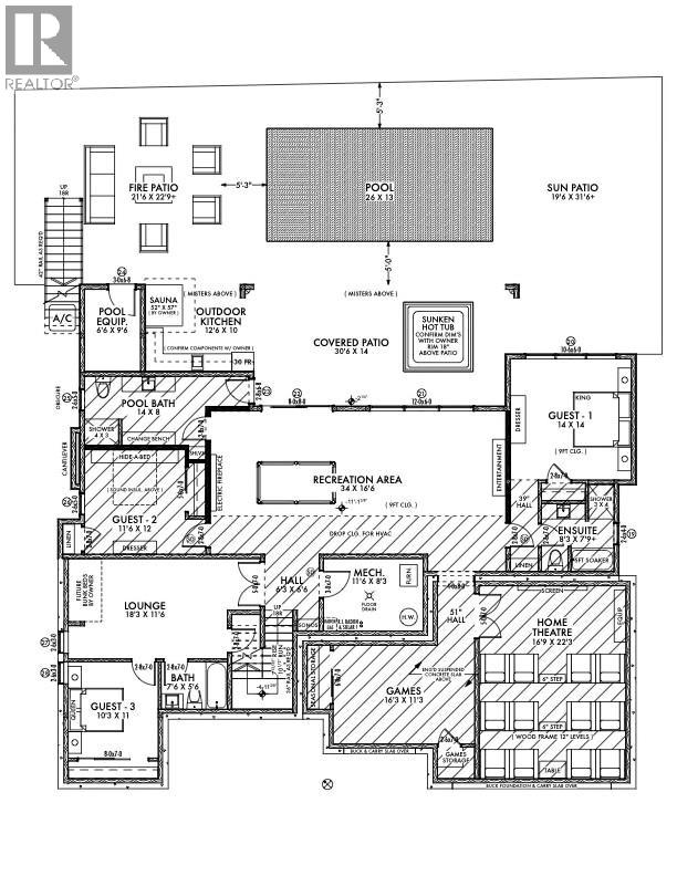
Welcome to 261 Ashcroft Court, an exceptional lot offering a fantastic opportunity to build your dream home. This .24-acre lot represents one of the last walkout option available, making it a rare find in Predator Ridge. The walkout layout is the ideal choice, providing you with endless possibilities to design your home to perfection, or purchase the existing drawings and start building! With ample space, you have the freedom to bring your vision to life and create a residence that suits your lifestyle. Enjoy the luxury of stunning views that are hard to come by. Are you a golfer? Ask your agent about the Predator Ridge golf membership that comes at a great price so you can enjoy more of the game you love! The best part of this memebership? It can even be assigned, unlike others which have to stay with the lot. Live your best life being steps from the picturesque Predator Ridge golf course and a short drive to Sparkling Hill resort. Don't miss out on this exceptional opportunity – act now to secure this remarkable piece of land! (id:47421)
Interested in obtaining the full price history for this property? Contact us!Contact us! Our real estate professionals would be happy to provide a complete listing history with historical sold prices and dates.
Detailed Information
Lot
79 x 0 ft
Amenities Nearby
Golf Nearby
Features
Irregular lot size
Listing Contract Date
2026-01-06
Municipal ID
030-315-662
Ownership Type
Freehold
Property Type
Vacant Land
Road
Paved road
Transaction Type
For sale
Views
Mountain view, Valley view, View (panoramic)
Building
Type
Other
Utility Water
Municipal water
Utilities
Type
Description
Cable
At Lot Line
Electricity
Available
Natural Gas
At Lot Line
Telephone
At Lot Line
Water
At Lot Line
Land
Total Size
0.24 acres
Amenities
Golf Nearby
Sewer
Municipal sewage system
Size of Irregular Land
0.24
Terms of Use
Please review and agree to the following terms of use to access the listing content:
REALTOR®, REALTORS®, and the REALTOR® logo are certification marks that are owned by REALTOR® Canada Inc. and licensed exclusively to The Canadian Real Estate Association (CREA). These certification marks identify real estate professionals who are members of CREA and who must abide by CREA's By-Laws, Rules, and the REALTOR® Code. The MLS® trademark and the MLS® logo are owned by CREA and identify the quality of services provided by real estate professionals who are members of CREA;
The information contained on this site is based in whole or in part on information that is provided by members of CREA, who are responsible for its accuracy. CREA reproduces and distributes this information as a service for its members and assumes no responsibility for its accuracy;
This website is operated by a brokerage or salesperson who is a member of CREA;
The listing content on this website is protected by copyright and other laws, and is intended solely for the private, non-commercial use by individuals. Any other reproduction, distribution or use of the content, in whole or in part, is specifically forbidden. The prohibited uses include commercial use, "screen scraping", "database scraping", and any other activity intended to collect, store, reorganize or manipulate data on the pages produced by or displayed on this website.
The information contained on this site is based in whole or in part on information that is provided under copyright by the Toronto Regional Real Estate Board (TRREB) or by members of The Canadian Real Estate Association (CREA), who are responsible for its accuracy. TRREB and CREA reproduce and distribute this information as a service for their members and assume no responsibility for its accuracy. All information displayed is believed to be accurate but is not guaranteed and should be independently verified. No warranties or representations of any kind are made with respect to the accuracy of such information. The information provided herein must only be used by consumers that have a bona fide interest in the purchase, sale, or lease of real estate and may not be used for any commercial purpose or any other purpose.