Step into a welcoming lifestyle with this sought after and spacious ground floor apartment in Vernon, where comfort meets community. Offering 2 bedrooms and 2 full bathrooms, this home boasts a fantastic layout, ideal for hosting guests or simply enjoying personal space. The updated kitchen is a standout feature, with soft-close cabinetry and new flooring that adds a fresh touch. A cozy gas fireplace anchors the bright, open living room, where natural light pours through oversized windows. The primary suite includes a full ensuite, custom walk in closet, and you’ll appreciate the full size washer and dryer for added ease. Just off the living room, your patio offers a peaceful outdoor retreat to enjoy your morning coffee. But it’s more than just a beautiful space, it’s a lifestyle. The building features a full kitchen, equipped activity room, fitness center, billiards, piano, and frequent social events that make it easy to connect with neighbours. Strata fees include secure, gated underground parking, water, and gas. Plus, pets are welcome (two cats, two small dogs, or a mix, dogs under 14 inches tall). A secure, spacious storage locker is also included. Whether you’re downsizing, relocating, or just looking for that perfect mix of privacy and community, this 55+ home delivers. Easy to view and available now. (id:47421)
Interested in obtaining the full price history for this property? Contact us!Contact us! Our real estate professionals would be happy to provide a complete listing history with historical sold prices and dates.
Detailed Information
Bedrooms
2
Bathrooms
2
Community Features
Pets Allowed, Pet Restrictions, Pets Allowed With Restrictions, Seniors Oriented
Listing Contract Date
2025-11-26
Maintenance Fee Payment Frequency
Monthly
Municipal ID
018-724-591
Ownership Type
Strata
# of Parking Spaces
1
Property Type
Single Family
Storage
Storage, Locker
Structures
Clubhouse
Transaction Type
For sale
Views
City view, Mountain view
Building
Amenities
Clubhouse
Appliances
Refrigerator, Dishwasher, Range - Electric, Microwave, Washer & Dryer
Architectural Style
Other
Constructed Date
1994
Cooling Type
Wall unit
Exterior Finish
Stucco
Fire Protection
Sprinkler System-Fire, Security system, Smoke Detector Only
Fireplace Fuel
Gas
Fireplace Present
Yes
# of Fireplaces
1
Fireplace Type
Unknown
Flooring Type
Ceramic Tile, Laminate, Linoleum, Wood, Tile
Heating Fuel
Electric
Heating Type
Baseboard heaters, See remarks
Roof Material
Metal,Other
Roof Style
Unknown,Unknown
Stories Total
1
Type
Apartment
Utility Water
Municipal water
Rooms
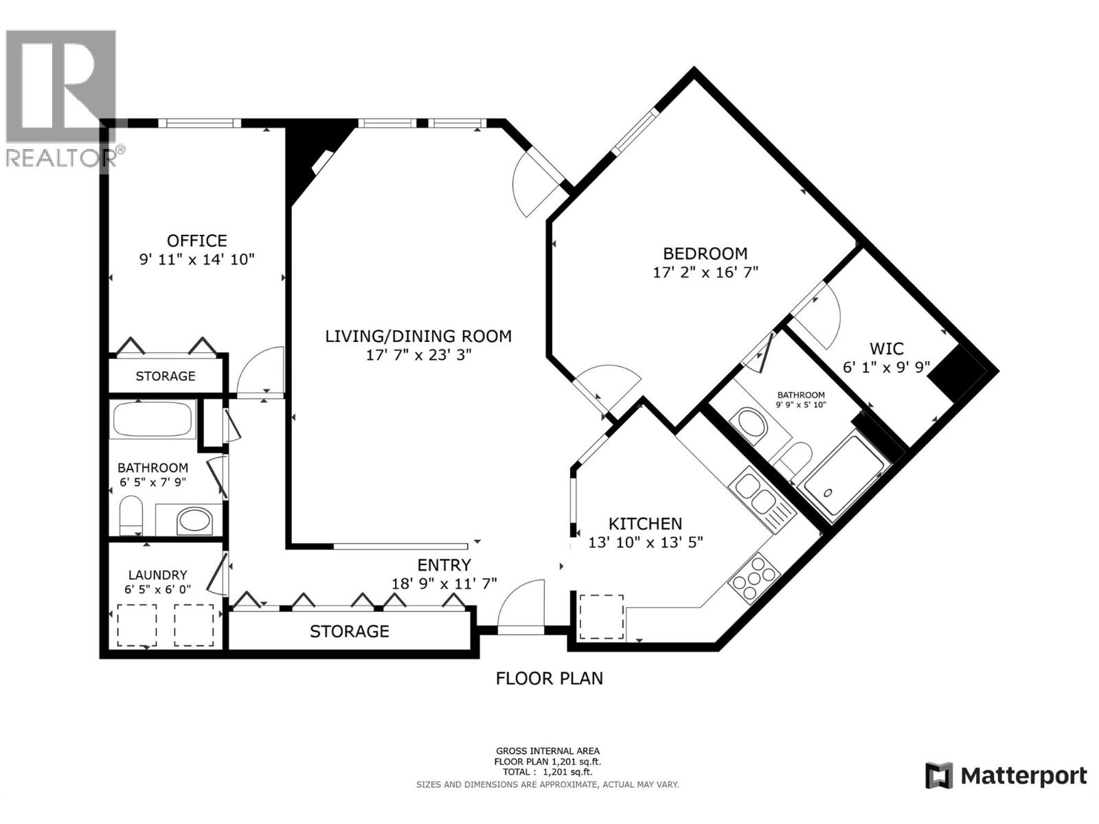
Room
Level
Dimensions
Notes
Other
Main level
9'9'' x 6'1''
Laundry room
Main level
6'5'' x 6'0''
Full bathroom
Main level
7'9'' x 6'5''
3pc Ensuite bath
Main level
9'9'' x 5'10''
Bedroom
Main level
14'10'' x 9'11''
Primary Bedroom
Main level
17'2'' x 16'7''
Kitchen
Main level
13'10'' x 13'5''
Dining room
Main level
10'2'' x 10'0''
Living room
Main level
23'3'' x 17'7''
Parking Spaces
Name
Spaces
Underground
Land
Total Size
under 1 acre
Sewer
Municipal sewage system
Terms of Use
Please review and agree to the following terms of use to access the listing content:
REALTOR®, REALTORS®, and the REALTOR® logo are certification marks that are owned by REALTOR® Canada Inc. and licensed exclusively to The Canadian Real Estate Association (CREA). These certification marks identify real estate professionals who are members of CREA and who must abide by CREA's By-Laws, Rules, and the REALTOR® Code. The MLS® trademark and the MLS® logo are owned by CREA and identify the quality of services provided by real estate professionals who are members of CREA;
The information contained on this site is based in whole or in part on information that is provided by members of CREA, who are responsible for its accuracy. CREA reproduces and distributes this information as a service for its members and assumes no responsibility for its accuracy;
This website is operated by a brokerage or salesperson who is a member of CREA;
The listing content on this website is protected by copyright and other laws, and is intended solely for the private, non-commercial use by individuals. Any other reproduction, distribution or use of the content, in whole or in part, is specifically forbidden. The prohibited uses include commercial use, "screen scraping", "database scraping", and any other activity intended to collect, store, reorganize or manipulate data on the pages produced by or displayed on this website.
The information contained on this site is based in whole or in part on information that is provided under copyright by the Toronto Regional Real Estate Board (TRREB) or by members of The Canadian Real Estate Association (CREA), who are responsible for its accuracy. TRREB and CREA reproduce and distribute this information as a service for their members and assume no responsibility for its accuracy. All information displayed is believed to be accurate but is not guaranteed and should be independently verified. No warranties or representations of any kind are made with respect to the accuracy of such information. The information provided herein must only be used by consumers that have a bona fide interest in the purchase, sale, or lease of real estate and may not be used for any commercial purpose or any other purpose.