Welcome to Unit #102 at Imperial Ridge. With a fresh coat of paint, recently updated flooring, and a lovely kitchen, this 2-bedroom, 2-bathroom condo is truly move-in ready. The home is located in a well-maintained, all-ages building that has undergone extensive upgrades since 2022, including parkade improvements, building envelope work (windows, decks, stucco), a new elevator, and refreshed hallways with modern carpeting, lighting, and paint. Ideally located just steps from downtown Vernon’s shops, cafes, medical offices, and services, this quiet, south-facing home is filled with natural light and enjoys beautiful city views, with glimpses of Okanagan Lake. The spacious layout offers a modern kitchen with plenty of storage, opening into the dining area and comfortable living room. Enjoy the cozy gas fireplace on cooler days (natural gas included in the strata fee), and in summer relax on your private deck or stay cool with the newer wall-mounted A/C unit. The primary bedroom features a walk-in closet and full ensuite, while the second bedroom and full main bathroom provide flexibility for guests, a home office, or family. In-suite laundry with newer washer and dryer adds everyday convenience. Additional features include one secure underground parking stall, a storage locker, bike storage, and a common room. Strata fees include hot water, water, sewer, garbage, natural gas. Book your showing today! (id:47421)
Interested in obtaining the full price history for this property? Contact us!Contact us! Our real estate professionals would be happy to provide a complete listing history with historical sold prices and dates.
Detailed Information
Bedrooms
2
Bathrooms
2
Community Features
Rentals Allowed
Features
Balcony
Listing Contract Date
2026-01-13
Maintenance Fee Payment Frequency
Monthly
Maintenance Fee Type
Heat, Insurance, Ground Maintenance, Property Management, Sewer, Waste Removal, Water
Municipal ID
023-114-266
Ownership Type
Strata
# of Parking Spaces
1
Property Type
Single Family
Storage
Storage, Locker
Structures
Clubhouse
Transaction Type
For sale
Views
City view, Lake view, Mountain view, Valley view, View (panoramic)
Building
Amenities
Clubhouse, Storage - Locker
Constructed Date
1994
Cooling Type
Wall unit
Exterior Finish
Stucco
Fireplace Fuel
Gas
Fireplace Present
Yes
# of Fireplaces
1
Fireplace Type
Unknown
Flooring Type
Ceramic Tile
Heating Fuel
Electric
Heating Type
See remarks
Stories Total
1
Type
Apartment
Utility Water
Municipal water
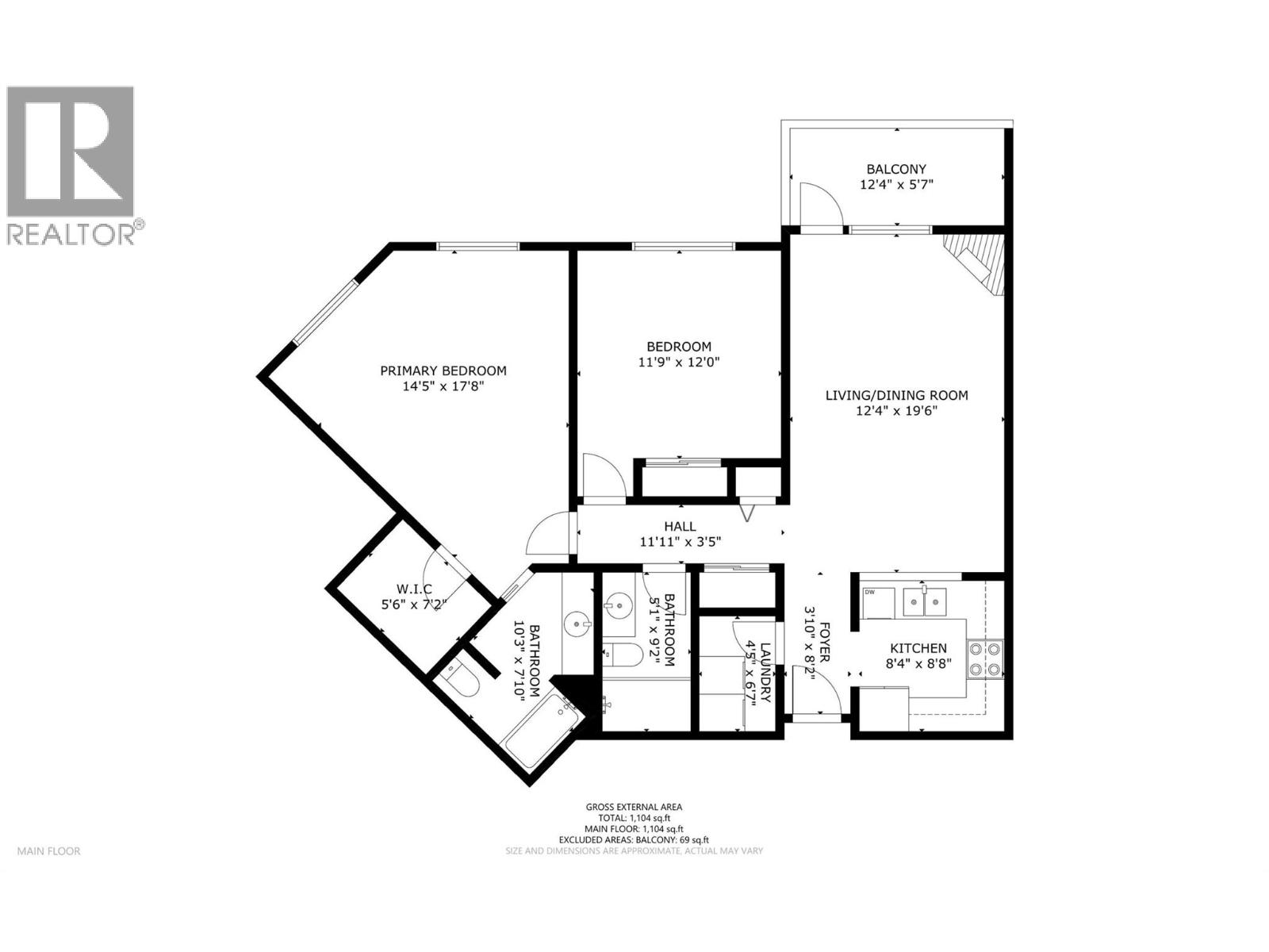
Rooms
Room
Level
Dimensions
Notes
Other
Main level
12'4'' x 5'7''
Foyer
Main level
8'2'' x 3'10''
Laundry room
Main level
4'5'' x 6'7''
4pc Ensuite bath
Main level
10'3'' x 7'10''
4pc Bathroom
Main level
5'1'' x 9'2''
Other
Main level
5'6'' x 7'2''
Bedroom
Main level
11'9'' x 12'
Primary Bedroom
Main level
14'5'' x 17'8''
Living room
Main level
19'6'' x 12'4''
Kitchen
Main level
8'4'' x 8'8''
Parking Spaces
Name
Spaces
Underground
Land
Total Size
under 1 acre
Sewer
Municipal sewage system
Terms of Use
Please review and agree to the following terms of use to access the listing content:
REALTOR®, REALTORS®, and the REALTOR® logo are certification marks that are owned by REALTOR® Canada Inc. and licensed exclusively to The Canadian Real Estate Association (CREA). These certification marks identify real estate professionals who are members of CREA and who must abide by CREA's By-Laws, Rules, and the REALTOR® Code. The MLS® trademark and the MLS® logo are owned by CREA and identify the quality of services provided by real estate professionals who are members of CREA;
The information contained on this site is based in whole or in part on information that is provided by members of CREA, who are responsible for its accuracy. CREA reproduces and distributes this information as a service for its members and assumes no responsibility for its accuracy;
This website is operated by a brokerage or salesperson who is a member of CREA;
The listing content on this website is protected by copyright and other laws, and is intended solely for the private, non-commercial use by individuals. Any other reproduction, distribution or use of the content, in whole or in part, is specifically forbidden. The prohibited uses include commercial use, "screen scraping", "database scraping", and any other activity intended to collect, store, reorganize or manipulate data on the pages produced by or displayed on this website.
The information contained on this site is based in whole or in part on information that is provided under copyright by the Toronto Regional Real Estate Board (TRREB) or by members of The Canadian Real Estate Association (CREA), who are responsible for its accuracy. TRREB and CREA reproduce and distribute this information as a service for their members and assume no responsibility for its accuracy. All information displayed is believed to be accurate but is not guaranteed and should be independently verified. No warranties or representations of any kind are made with respect to the accuracy of such information. The information provided herein must only be used by consumers that have a bona fide interest in the purchase, sale, or lease of real estate and may not be used for any commercial purpose or any other purpose.