$629,000
FOR SALE

Duplex

Bedrooms: 3Bathrooms: 3
Maintenance Fees: $250

5705 Heritage Drive #16
Vernon, BC V1H 1B1 | Bella Vista

Next Phase starting soon. Approximately 4 months till completion! Discover an exclusive collection of 28 luxury half-duplex townhomes, privately nestled on a tranquil cul-de-sac. Each thoughtfully designed residence combines sophisticated style with everyday convenience, featuring spacious bedrooms, a five-piece primary ensuite, and an open-concept living area that seamlessly extends to large decks or patios. Every home showcases premium finishes, including veined quartz countertops in both the kitchen and bathrooms, durable fibre-cement exterior siding, and sleek stainless steel kitchen appliances. Enjoy the comfort of freestanding soaker tubs, the ambiance of wall-mounted electric fireplaces, and the practicality of a spacious double garage. For added convenience, each home is roughed-in for a residential elevator. (id:47421)
Share
Listed By Coldwell Banker Executives Realty
Data Provided By Association of Interior REALTORS®
MLS® Listing Number 10359073
Last Updated Apr 27, 2026
Property Summary
Property Type Duplex

More like this:
Maintenance Fees $250
Neighbourhood Bella Vista
Community The Crest
Price History

Interested in obtaining the full price history for this property?
Contact us!Contact us! Our real estate professionals would be happy to provide a complete listing history with historical sold prices and dates.

Detailed Information
Bedrooms 3
Bathrooms 3
Amenities Nearby Public Transit, Park, Recreation, Schools, Shopping
Community Features Family Oriented, Pets Allowed
Features Central island
Listing Contract Date 2025-12-01
Maintenance Fee Payment Frequency Monthly
Maintenance Fee Type Reserve Fund Contributions, Insurance, Other, See Remarks
Municipal ID 011-379-464
Ownership Type Strata
# of Parking Spaces 2
Property Type Single Family
Transaction Type For sale
Building
Appliances Range, Refrigerator, Dishwasher, Dryer, Microwave, Washer
Basement Type Partial
Constructed Date 2026
Construction Style (Attachment) Semi-detached
Cooling Type Central air conditioning
Exterior Finish Other
Fireplace Fuel Electric
Fireplace Present Yes
# of Fireplaces 1
Fireplace Type Unknown
Flooring Type Vinyl
# of Half Bathrooms 1
Heating Type Forced air, See remarks
Roof Material Other
Roof Style Unknown
Stories Total 3
Type Duplex
Utility Water Municipal water
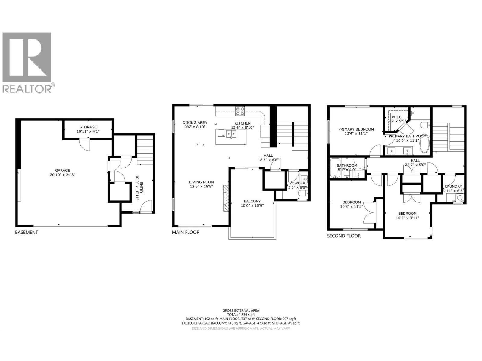
Rooms
Room Level Dimensions Notes
Partial bathroomSecond levelMeasurements not available
Living roomSecond level12'6'' x 12'10''
KitchenSecond level12'6'' x 9'
Full bathroomThird levelMeasurements not available
BedroomThird level10'2'' x 9'11''
BedroomThird level10'3'' x 10'10''
Full ensuite bathroomThird levelMeasurements not available
Primary BedroomThird level12' x 11'
Parking Spaces
Name Spaces
Attached Garage2
Land
Total Size under 1 acre
Access Type Easy access
Amenities Public Transit, Park, Recreation, Schools, Shopping
Sewer Municipal sewage system

The information contained on this site is based in whole or in part on information that is provided under copyright by the Toronto Regional Real Estate Board (TRREB) or by members of The Canadian Real Estate Association (CREA), who are responsible for its accuracy. TRREB and CREA reproduce and distribute this information as a service for their members and assume no responsibility for its accuracy. All information displayed is believed to be accurate but is not guaranteed and should be independently verified. No warranties or representations of any kind are made with respect to the accuracy of such information.
The information provided herein must only be used by consumers that have a bona fide interest in the purchase, sale, or lease of real estate and may not be used for any commercial purpose or any other purpose.

FREE ESTIMATES ARE COMING

Reserve Your Spot To Be Notified
or

Coming soon to select cities
in North America

(We'll never share your details)