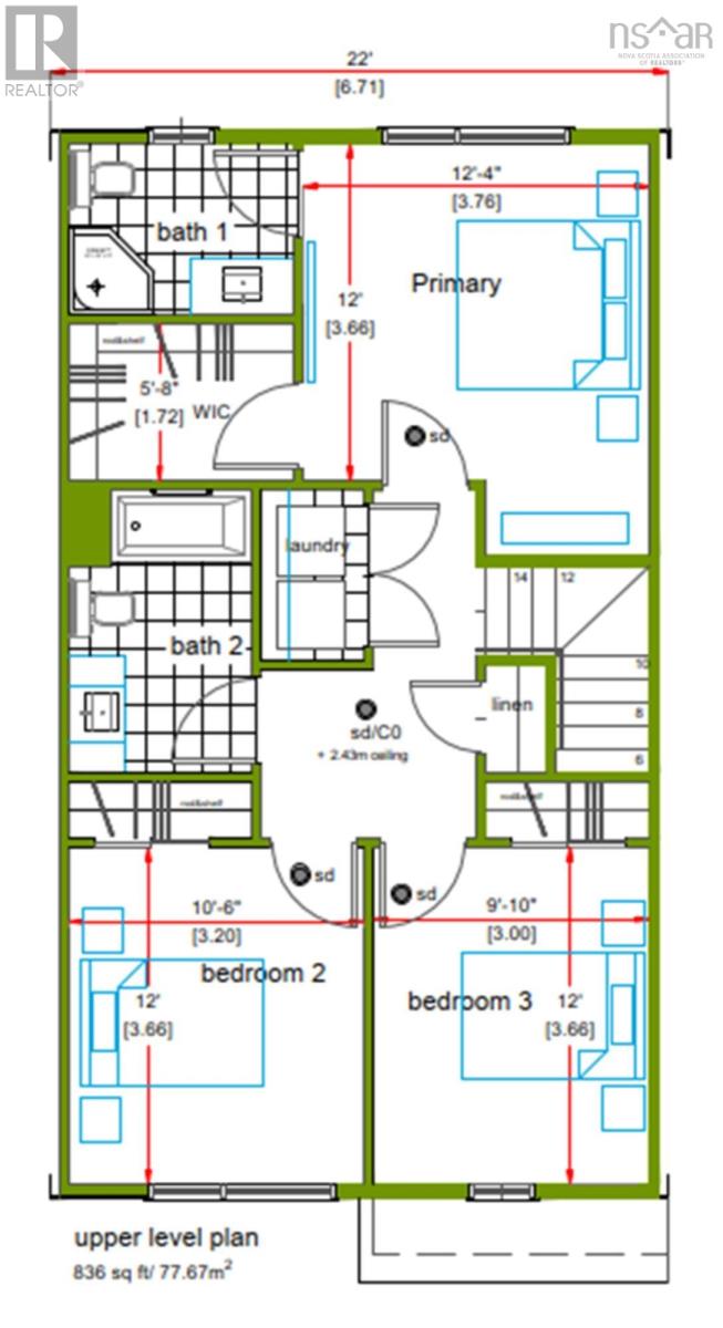
Discover The Bellhaven, a 3-bed, 3.5-bath corner unit townhome by Shaughnessy Homes in the desirable Belle Rose Park in West Bedford. Spanning 2,243 sq. ft. across three finished levels, this home blends modern comfort with stylish design. The main floor features a home office, a sleek kitchen with premium finishes, and an open-concept living and dining area perfect for entertaining. Upstairs, three spacious bedrooms include a luxurious primary suite. Engineered hardwood graces the main and second levels, while the walk-out basement offers a wet bar, and a bright bonus space for guests or recreation. Stay comfortable with ducted heating/cooling with a natural gas backup, plus rough-ins for a gas range, dryer, BBQ, water heater, and a 50 AMP EV charger. Nestled off Larry Uteck Blvd, Belle Rose Park offers easy access to schools, shops, and parks in a quiet, master-planned community. Built with Shaughnessy Homes signature quality, The Bellhaven is a rare opportunity to own in one of Halifaxs most sought-after neighborhoods. (id:47421)
Interested in obtaining the full price history for this property? Contact us!Contact us! Our real estate professionals would be happy to provide a complete listing history with historical sold prices and dates.
Detailed Information
Bedrooms
3
Bathrooms
4
Listing Contract Date
2025-08-07
Location Description
Larry Uteck Blvd to Stephs St
Municipal ID
41547597
Ownership Type
Freehold
Property Type
Single Family
Transaction Type
For sale
Building
Appliances
None
Architectural Style
3 Level
Cooling Type
Heat Pump
Exterior Finish
Vinyl, Other
Flooring Type
Laminate, Tile
Foundation Type
Poured Concrete
# of Half Bathrooms
1
Stories Total
3
Total Finished Area
2243 sqft
Type
Row / Townhouse
Utility Water
Municipal water
Rooms
Room
Level
Dimensions
Notes
Living room
Second level
20.8 x 14.6
Kitchen
Second level
11.4 x 10.4
Dining room
Second level
10.4 x 11
Bath (# pieces 1-6)
Second level
2 Piece
Den
Second level
7.8 x 9.4
Primary Bedroom
Third level
12.4 x 12
Ensuite (# pieces 2-6)
Third level
3 Piece
Bedroom
Third level
9.1 x 12
Bedroom
Third level
10.6 x 12
Bath (# pieces 1-6)
Third level
4 Piece
Laundry room
Third level
2
Recreational, Games room
Lower level
14.6 x 10.6
Bath (# pieces 1-6)
Lower level
4 Piece
Parking Spaces
Name
Spaces
Garage
Paved Yard
Land
Total Size
0.5497 acres
Landscape Features
Landscaped
Sewer
Municipal sewage system
Size of Irregular Land
0.5497
Terms of Use
Please review and agree to the following terms of use to access the listing content:
REALTOR®, REALTORS®, and the REALTOR® logo are certification marks that are owned by REALTOR® Canada Inc. and licensed exclusively to The Canadian Real Estate Association (CREA). These certification marks identify real estate professionals who are members of CREA and who must abide by CREA's By-Laws, Rules, and the REALTOR® Code. The MLS® trademark and the MLS® logo are owned by CREA and identify the quality of services provided by real estate professionals who are members of CREA;
The information contained on this site is based in whole or in part on information that is provided by members of CREA, who are responsible for its accuracy. CREA reproduces and distributes this information as a service for its members and assumes no responsibility for its accuracy;
This website is operated by a brokerage or salesperson who is a member of CREA;
The listing content on this website is protected by copyright and other laws, and is intended solely for the private, non-commercial use by individuals. Any other reproduction, distribution or use of the content, in whole or in part, is specifically forbidden. The prohibited uses include commercial use, "screen scraping", "database scraping", and any other activity intended to collect, store, reorganize or manipulate data on the pages produced by or displayed on this website.
The information contained on this site is based in whole or in part on information that is provided under copyright by the Toronto Regional Real Estate Board (TRREB) or by members of The Canadian Real Estate Association (CREA), who are responsible for its accuracy. TRREB and CREA reproduce and distribute this information as a service for their members and assume no responsibility for its accuracy. All information displayed is believed to be accurate but is not guaranteed and should be independently verified. No warranties or representations of any kind are made with respect to the accuracy of such information. The information provided herein must only be used by consumers that have a bona fide interest in the purchase, sale, or lease of real estate and may not be used for any commercial purpose or any other purpose.