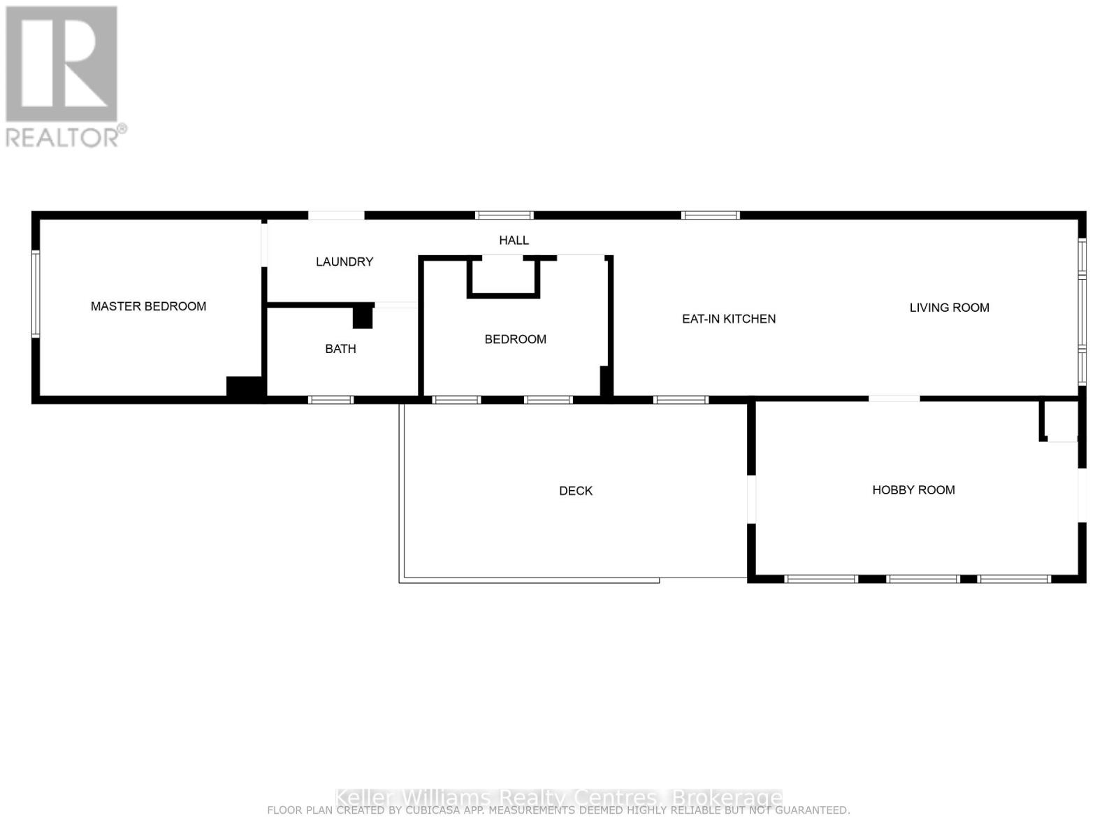
Enjoy peace of mind for years to come with a BRAND NEW ROOF done in September 2025. Affordable retirement living in an excellent park at the edge of town! Welcome to Durham Mobile Home Park, a well run community for empty nesters, with spacious lots overlooking the countryside. This home offers 1091 sq ft of living space, with 2 bedrooms, 1 bathroom, laundry, an open concept kitchen/living area, and a large mud/hobby room that walks out to a spacious partially covered back deck. Home is heated with a natural gas furnace (2014) and also has central air conditioning (2021). The back yard offers mature trees & a great sized shed for your belongings. The town of Durham is only a 3 minute drive down the road for all your amenities (groceries, gas, hospital, medical clinic, etc). Park fees are $690/month and include the land lease, water, septic, taxes, communal garbage bin, and bi-weekly recycling pick up. Enjoy simple living in the countryside, with a great community surrounding you. Come take a tour! (id:47421)
Interested in obtaining the full price history for this property? Contact us!Contact us! Our real estate professionals would be happy to provide a complete listing history with historical sold prices and dates.
Cross Streets: Grey Road 4. ** Directions: From Grey Road 4, head south onto concession rd 2 WRG, then east onto Douglas Street. Right onto Haven Ave to Trailer # 55.
Ownership Type
Leasehold/Leased Land
# of Parking Spaces
2
Property Type
Single Family
Structures
Shed
Transaction Type
For sale
Zoning Description
mh-97
Building
Age
51 to 99 years
Appliances
Water Heater, Dishwasher, Dryer, Gas stove(s), Washer, Window Coverings, Refrigerator
Architectural Style
Bungalow
Basement Type
Crawl space
Cooling Type
Central air conditioning
Exterior Finish
Vinyl siding
Fire Protection
Smoke Detectors
Foundation Type
Wood/Piers
Heating Fuel
Natural gas
Heating Type
Forced air
Stories Total
1
Type
Mobile Home
Utility Water
Drilled Well, Shared Well
Rooms
Room
Level
Dimensions
Notes
Mud room
Ground level
3.383 m x 6.392 m
Kitchen
Ground level
9.32 m x 3.446 m
Bedroom
Ground level
3.434 m x 3.566 m
Bedroom 2
Ground level
2.615 m x 3.422 m
Parking Spaces
Name
Spaces
No Garage
Utilities
Type
Description
Cable
Available
Electricity
Installed
Wireless
Available
Natural Gas Available
Available
Land
Total Size
50 x 200 FT | under 1/2 acre
Amenities
Hospital
Sewer
Septic System
Size of Irregular Land
50 x 200 FT
Terms of Use
Please review and agree to the following terms of use to access the listing content:
REALTOR®, REALTORS®, and the REALTOR® logo are certification marks that are owned by REALTOR® Canada Inc. and licensed exclusively to The Canadian Real Estate Association (CREA). These certification marks identify real estate professionals who are members of CREA and who must abide by CREA's By-Laws, Rules, and the REALTOR® Code. The MLS® trademark and the MLS® logo are owned by CREA and identify the quality of services provided by real estate professionals who are members of CREA;
The information contained on this site is based in whole or in part on information that is provided by members of CREA, who are responsible for its accuracy. CREA reproduces and distributes this information as a service for its members and assumes no responsibility for its accuracy;
This website is operated by a brokerage or salesperson who is a member of CREA;
The listing content on this website is protected by copyright and other laws, and is intended solely for the private, non-commercial use by individuals. Any other reproduction, distribution or use of the content, in whole or in part, is specifically forbidden. The prohibited uses include commercial use, "screen scraping", "database scraping", and any other activity intended to collect, store, reorganize or manipulate data on the pages produced by or displayed on this website.
The information contained on this site is based in whole or in part on information that is provided under copyright by the Toronto Regional Real Estate Board (TRREB) or by members of The Canadian Real Estate Association (CREA), who are responsible for its accuracy. TRREB and CREA reproduce and distribute this information as a service for their members and assume no responsibility for its accuracy. All information displayed is believed to be accurate but is not guaranteed and should be independently verified. No warranties or representations of any kind are made with respect to the accuracy of such information. The information provided herein must only be used by consumers that have a bona fide interest in the purchase, sale, or lease of real estate and may not be used for any commercial purpose or any other purpose.