Built by award-winning Palermo Homes, this brand-new custom residence sits proudly on a spacious corner lot, offering over 4,400 sq. ft. With 5 bedrooms (4 bedrooms on upper level) and 6 bathrooms, a fully independent legal suite, and a 3 car garage, this home is tailored for today’s modern family. A warm entryway opens to a versatile layout featuring flex spaces ideal for an office, den, formal dining, or secondary living. At the heart of the home, the great room impresses with expansive open-concept living, a striking tiled fireplace, and seamless flow to the pool-sized backyard. The chef’s kitchen with abundant cabinetry, a walk-in pantry, waterfall quartz island, and premium gourmet appliances, while a stylish powder room and mudroom with built-in cabinetry complete the main level. Upstairs, a family/games room with its own patio and fireplace awaits. The primary suite is a private retreat with spa-inspired ensuite and walk-in closet, joined by three additional bedrooms—each with its own bathroom—plus a functional laundry room. The lower level features a 1-bedroom legal suite. Additional features: heated ensuite floors, designer lighting, EV-charger rough-in, and exterior architectural lighting. An oversized triple garage, generous driveway parking, and exceptional curb appeal further enhance this property. Live steps from world-class wine at Mission Hill, adventure at Mt. Boucherie Park, and quick access to Okanagan Lake. (id:47421)
Interested in obtaining the full price history for this property? Contact us!Contact us! Our real estate professionals would be happy to provide a complete listing history with historical sold prices and dates.
Detailed Information
Bedrooms
5
Bathrooms
6
Features
Central island
Listing Contract Date
2025-09-30
Municipal ID
031-272-649
Ownership Type
Freehold
# of Parking Spaces
7
Property Type
Single Family
Transaction Type
For sale
Views
Lake view, Mountain view
Building
Architectural Style
Contemporary
Constructed Date
2024
Construction Style (Attachment)
Detached
Cooling Type
Central air conditioning
Exterior Finish
Metal, Stone, Stucco
Fire Protection
Security system
Fireplace Fuel
Gas
Fireplace Present
Yes
# of Fireplaces
2
Fireplace Type
Unknown
Flooring Type
Wood, Tile
# of Half Bathrooms
1
Heating Type
Forced air, See remarks
Roof Material
Asphalt shingle
Roof Style
Unknown
Stories Total
2
Type
House
Utility Water
Municipal water
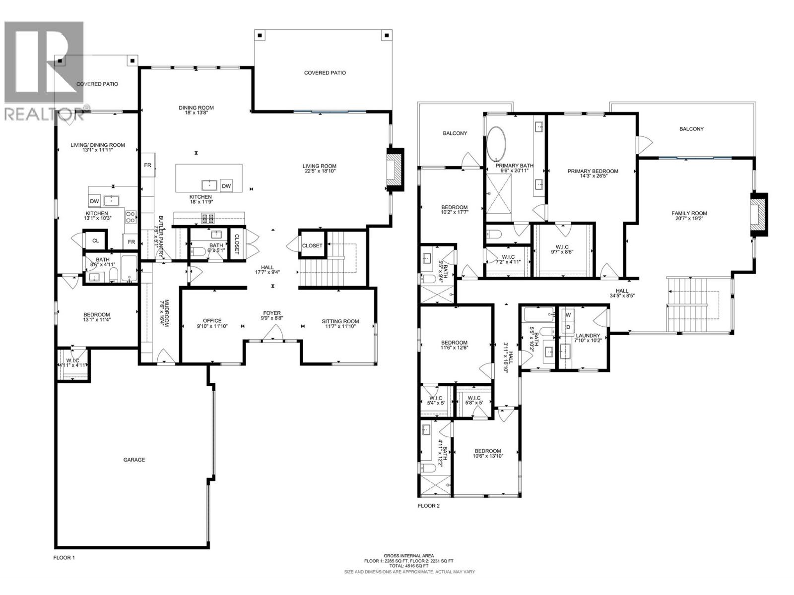
Rooms
Room
Level
Dimensions
Notes
Family room
Second level
19'4'' x 18'3''
Full bathroom
Second level
10'0'' x 5'6''
Full ensuite bathroom
Second level
12'0'' x 5'0''
Bedroom
Second level
12'0'' x 10'6''
Bedroom
Second level
12'0'' x 11'6''
Full ensuite bathroom
Second level
9'4'' x 5'6''
Bedroom
Second level
12'0'' x 10'0''
Laundry room
Second level
10'0'' x 8'0''
Other
Second level
9'7'' x 8'4''
Full ensuite bathroom
Second level
17'3'' x 9'6''
Primary Bedroom
Second level
17'3'' x 14'0''
Other
Main level
23'0'' x 34'0''
Mud room
Main level
16'0'' x 6'0''
Partial bathroom
Main level
6'0'' x 5'0''
Den
Main level
11'7'' x 10'0''
Living room
Main level
12'2'' x 11'10''
Pantry
Main level
7'7'' x 5'0''
Dining room
Main level
17'9'' x 11'0''
Great room
Main level
22'10'' x 18'0''
Kitchen
Main level
17'9'' x 14'0''
Bedroom
Additional Accommodation
13'0'' x 9'6''
Full bathroom
Additional Accommodation
8'6'' x 5'0''
Living room
Additional Accommodation
13'0'' x 13'0''
Kitchen
Additional Accommodation
9'4'' x 8'6''
Parking Spaces
Name
Spaces
Attached Garage
3
Land
Total Size
0.21 acres
Sewer
Municipal sewage system
Size of Irregular Land
0.21
Terms of Use
Please review and agree to the following terms of use to access the listing content:
REALTOR®, REALTORS®, and the REALTOR® logo are certification marks that are owned by REALTOR® Canada Inc. and licensed exclusively to The Canadian Real Estate Association (CREA). These certification marks identify real estate professionals who are members of CREA and who must abide by CREA's By-Laws, Rules, and the REALTOR® Code. The MLS® trademark and the MLS® logo are owned by CREA and identify the quality of services provided by real estate professionals who are members of CREA;
The information contained on this site is based in whole or in part on information that is provided by members of CREA, who are responsible for its accuracy. CREA reproduces and distributes this information as a service for its members and assumes no responsibility for its accuracy;
This website is operated by a brokerage or salesperson who is a member of CREA;
The listing content on this website is protected by copyright and other laws, and is intended solely for the private, non-commercial use by individuals. Any other reproduction, distribution or use of the content, in whole or in part, is specifically forbidden. The prohibited uses include commercial use, "screen scraping", "database scraping", and any other activity intended to collect, store, reorganize or manipulate data on the pages produced by or displayed on this website.
The information contained on this site is based in whole or in part on information that is provided under copyright by the Toronto Regional Real Estate Board (TRREB) or by members of The Canadian Real Estate Association (CREA), who are responsible for its accuracy. TRREB and CREA reproduce and distribute this information as a service for their members and assume no responsibility for its accuracy. All information displayed is believed to be accurate but is not guaranteed and should be independently verified. No warranties or representations of any kind are made with respect to the accuracy of such information. The information provided herein must only be used by consumers that have a bona fide interest in the purchase, sale, or lease of real estate and may not be used for any commercial purpose or any other purpose.