Your deram likeside home! We are breaking ground in just a few weeks, this stunning new construction offers 1,600 square feet of thoughtfully designed living space in a classic bungalow style. Perfectly positioned on a beautiful lake and less than 1 km from the ocean, this home combines the best of lakeside serenity with seaside charmall just 30 minutes from downtown Halifax. Every detail of this 3-bedroom, 3.5-bath home has been carefully crafted to maximize comfort, style, and breathtaking views from the wall of windows at the back which lead out to your sun drenched patio!. Imagine waking up each morning to sparkling lake vistas from your bedroom, enjoying soaring vaulted ceilings, a spacious kitchen with a large island, and a luxurious primary suite featuring a walk-in closet and spa-like ensuite. Each bedroom has its own private bath, ensuring convenience and privacy for family and guests alike. Located in an exclusive subdivision of only 22 lots, Miners Ridge is protected by restrictive covenants, youll enjoy lasting peace, privacy, and timeless beauty. The welcoming community of West Petpeswick / Musquodobiot offers everything you needpublic wharf and beach, a sailing club, schools, shops, restaurants, and nearby hospitalwhile maintaining a quiet, coastal lifestyle. Floorplans are available, and now is the perfect time to make this home uniquely yours with custom upgrades, colours, and finishes. Dont miss this rare opportunity to create your dream home by the waterready for you to move in by Spring 2026! (id:47421)
Interested in obtaining the full price history for this property? Contact us!Contact us! Our real estate professionals would be happy to provide a complete listing history with historical sold prices and dates.
Detailed Information
Bedrooms
3
Bathrooms
4
Amenities Nearby
Park, Shopping, Place of Worship, Beach
Community Features
Recreational Facilities, School Bus
Features
Treed, Wheelchair access
Listing Contract Date
2025-10-03
Location Description
107 to Musquodoboit village to the west Petpeswick rd to Mines rd to Miners ridge!
Municipal ID
41543091
Ownership Type
Freehold
Property Type
Single Family
Transaction Type
For sale
Waterfront Type
Waterfront on lake
Building
Appliances
Water softener, Central Vacuum - Roughed In
Architectural Style
Bungalow
Basement Type
None
Construction Style (Attachment)
Detached
Cooling Type
Heat Pump
Exterior Finish
Vinyl
Flooring Type
Laminate, Tile, Vinyl
Foundation Type
Concrete Slab
# of Half Bathrooms
1
Stories Total
1
Total Finished Area
1600 sqft
Type
House
Utility Water
Drilled Well
Rooms
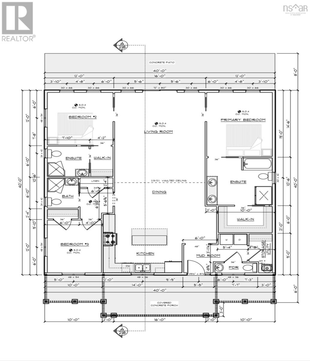
Room
Level
Dimensions
Notes
Kitchen
Main level
14 x 15
Dining room
Main level
16 x 15
Living room
Main level
16 x 20
Primary Bedroom
Main level
12 x 19
Ensuite (# pieces 2-6)
Main level
12 x 10.6
Bedroom
Main level
12 x 12
Bath (# pieces 1-6)
Main level
7 x 12
Bedroom
Main level
10 x 12
Bath (# pieces 1-6)
Main level
7 x 10
Mud room
Main level
5.5 x 7
Bath (# pieces 1-6)
Main level
8 x 4
Laundry / Bath
Main level
6 x 4
Parking Spaces
Name
Spaces
Gravel
Land
Total Size
2.0202 acres
Acreage
Yes
Amenities
Park, Shopping, Place of Worship, Beach
Sewer
Septic System
Size of Irregular Land
2.0202
Terms of Use
Please review and agree to the following terms of use to access the listing content:
REALTOR®, REALTORS®, and the REALTOR® logo are certification marks that are owned by REALTOR® Canada Inc. and licensed exclusively to The Canadian Real Estate Association (CREA). These certification marks identify real estate professionals who are members of CREA and who must abide by CREA's By-Laws, Rules, and the REALTOR® Code. The MLS® trademark and the MLS® logo are owned by CREA and identify the quality of services provided by real estate professionals who are members of CREA;
The information contained on this site is based in whole or in part on information that is provided by members of CREA, who are responsible for its accuracy. CREA reproduces and distributes this information as a service for its members and assumes no responsibility for its accuracy;
This website is operated by a brokerage or salesperson who is a member of CREA;
The listing content on this website is protected by copyright and other laws, and is intended solely for the private, non-commercial use by individuals. Any other reproduction, distribution or use of the content, in whole or in part, is specifically forbidden. The prohibited uses include commercial use, "screen scraping", "database scraping", and any other activity intended to collect, store, reorganize or manipulate data on the pages produced by or displayed on this website.
The information contained on this site is based in whole or in part on information that is provided under copyright by the Toronto Regional Real Estate Board (TRREB) or by members of The Canadian Real Estate Association (CREA), who are responsible for its accuracy. TRREB and CREA reproduce and distribute this information as a service for their members and assume no responsibility for its accuracy. All information displayed is believed to be accurate but is not guaranteed and should be independently verified. No warranties or representations of any kind are made with respect to the accuracy of such information. The information provided herein must only be used by consumers that have a bona fide interest in the purchase, sale, or lease of real estate and may not be used for any commercial purpose or any other purpose.