Currently under construction, 32 Aidan Street a sleek, modern semi-detached nestled in the sought after Windsor Park neighborhood. Offering 1,254 square feet of thoughtfully designed living space, this home is ideal for both homeowners and savvy investors. With three generous bedrooms, two full bathrooms, and a private courtyard perfect for relaxing or entertaining, comfort and convenience come together seamlessly. Step inside to a bright, open-concept floor plan featuring luxury vinyl flooring throughout the main areas as well as luxury vinyl tile in the bathrooms, providing long-lasting durability and effortless upkeep. The kitchen is a standout, combining style and function with quartz countertops and custom-built cabinetry boasting a modern flair. Best of all, all kitchen appliances are included. The large primary bedroom offers a spacious custom walk-in closet, and a private ensuite complete with a stylish shower and quartz-topped vanity. Finished with modern exterior styling and premium siding accents, this home delivers impressive curb appeal and protective covenants are in place to ensure long-lasting value. Perfectly positioned just minutes from UPEI, shopping, dining, coffeeshops, the Charlottetown Airport, and other amenities, you will enjoy a peaceful yet connected lifestyle. The property includes an 8-Year Lux Home Warranty. Please note: Tax and Assessment values are to be determined, HST included in price, rebate to be assigned to the Vendor. Listing agent is owner of property. (id:47421)
Interested in obtaining the full price history for this property? Contact us!Contact us! Our real estate professionals would be happy to provide a complete listing history with historical sold prices and dates.
Detailed Information
Bedrooms
3
Bathrooms
2
Amenities Nearby
Park, Playground, Public Transit, Shopping
Community Features
Recreational Facilities, School Bus
Features
Paved driveway
Listing Contract Date
2026-01-27
Location Description
Refrigerator, Stove, Dishwasher, OTR Microwave
Municipal ID
1187673
Ownership Type
Freehold
Property Type
Single Family
Transaction Type
For sale
Building
Appliances
Stove, Dishwasher, Microwave Range Hood Combo, Refrigerator
Basement Type
None
Construction Style (Attachment)
Semi-detached
Cooling Type
Air exchanger
Exterior Finish
Vinyl, Wood siding
Flooring Type
Vinyl
Foundation Type
Concrete Slab
Heating Fuel
Electric
Heating Type
Wall Mounted Heat Pump, Radiant heat
Total Finished Area
1254 sqft
Type
House
Utility Water
Municipal water
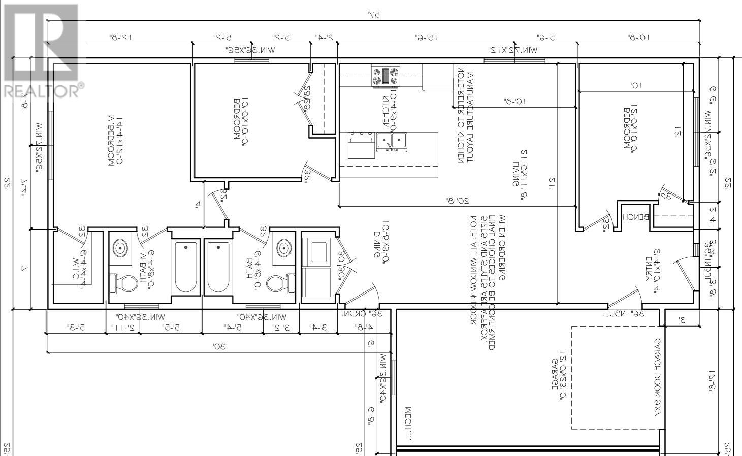
Rooms
Room
Level
Dimensions
Notes
Kitchen
Main level
21. x 9.
Living room
Main level
21. x 11.8
Foyer
Main level
6.4 x 10.4
Primary Bedroom
Main level
14.4 x 12
Ensuite (# pieces 2-6)
Main level
6.4 x 8.
Bedroom
Main level
12 x 10
Bedroom
Main level
10 x 10
Bath (# pieces 1-6)
Main level
6.4 x 8.
Parking Spaces
Name
Spaces
Attached Garage
Land
Total Size
0.125 acres
Amenities
Park, Playground, Public Transit, Shopping
Landscape Features
Landscaped
Sewer
Municipal sewage system
Size of Irregular Land
0.125
Terms of Use
Please review and agree to the following terms of use to access the listing content:
REALTOR®, REALTORS®, and the REALTOR® logo are certification marks that are owned by REALTOR® Canada Inc. and licensed exclusively to The Canadian Real Estate Association (CREA). These certification marks identify real estate professionals who are members of CREA and who must abide by CREA's By-Laws, Rules, and the REALTOR® Code. The MLS® trademark and the MLS® logo are owned by CREA and identify the quality of services provided by real estate professionals who are members of CREA;
The information contained on this site is based in whole or in part on information that is provided by members of CREA, who are responsible for its accuracy. CREA reproduces and distributes this information as a service for its members and assumes no responsibility for its accuracy;
This website is operated by a brokerage or salesperson who is a member of CREA;
The listing content on this website is protected by copyright and other laws, and is intended solely for the private, non-commercial use by individuals. Any other reproduction, distribution or use of the content, in whole or in part, is specifically forbidden. The prohibited uses include commercial use, "screen scraping", "database scraping", and any other activity intended to collect, store, reorganize or manipulate data on the pages produced by or displayed on this website.
The information contained on this site is based in whole or in part on information that is provided under copyright by the Toronto Regional Real Estate Board (TRREB) or by members of The Canadian Real Estate Association (CREA), who are responsible for its accuracy. TRREB and CREA reproduce and distribute this information as a service for their members and assume no responsibility for its accuracy. All information displayed is believed to be accurate but is not guaranteed and should be independently verified. No warranties or representations of any kind are made with respect to the accuracy of such information. The information provided herein must only be used by consumers that have a bona fide interest in the purchase, sale, or lease of real estate and may not be used for any commercial purpose or any other purpose.