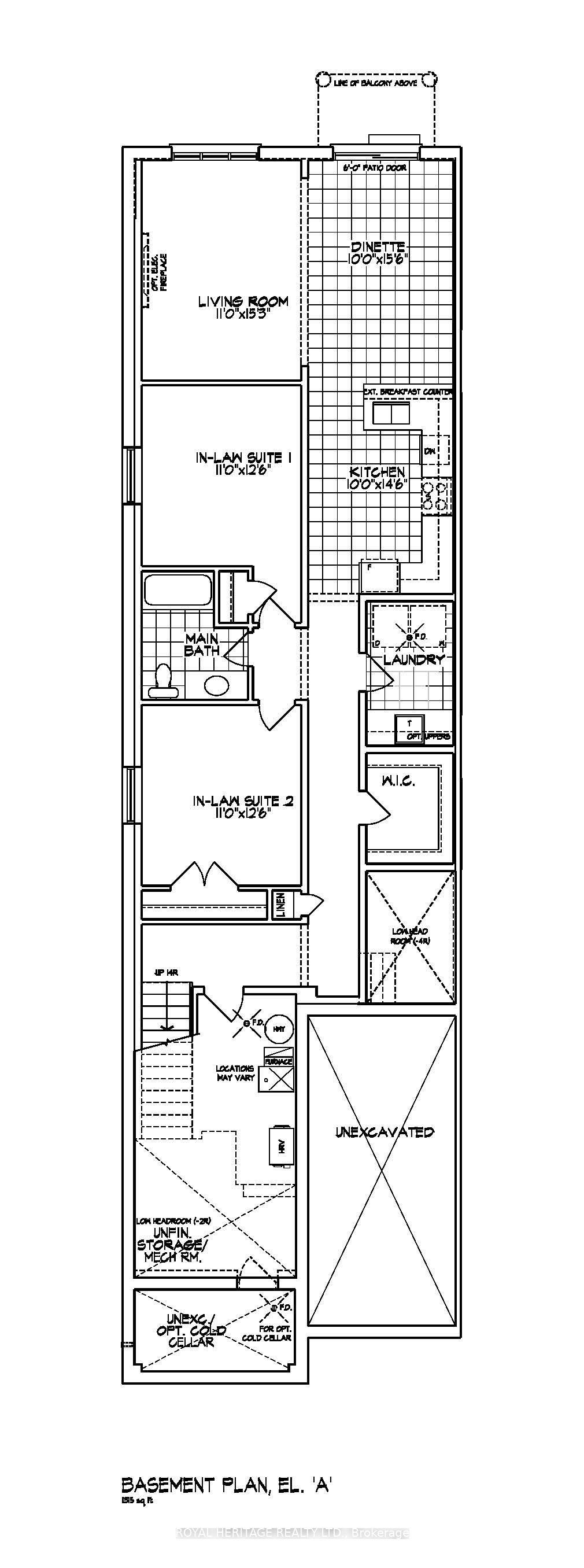
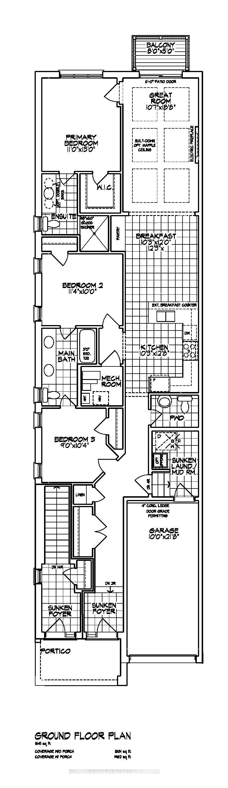
Duplex Bungalow
Bedrooms: 5Bathrooms: 4Lot: 27 x 271 ft
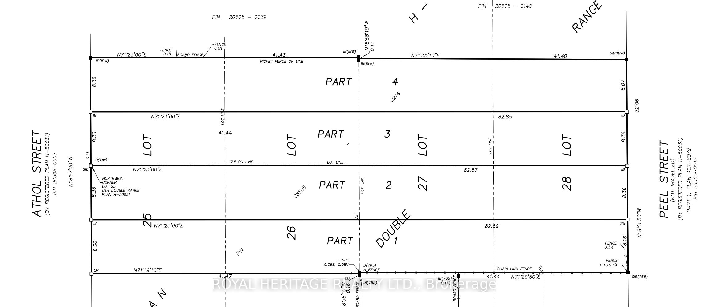
805 Athol St
Whitby, ON
L1N 4A1 | Downtown Whitby | Durham
| Listed By | ROYAL HERITAGE REALTY LTD. |
|---|---|
| Data Provided By | Toronto Regional Real Estate Board |
| MLS® Listing Number | E12914042 |
| Last Updated | Apr 02, 2026 |
| Property Type |
Duplex
More like this: |
|---|---|
| Legal Description | PART LOTS 9, 10, 11 & 12 8TH DOUBLE RANGE PLAN H50031, DESIGNATED AS PART 4 PL 40R33088; REGIONAL MUNICIPALITY OF DURHAM TOWN OF WHITBY |
| Possession Date | Late 2026/Early 2027 |
| Directions/Cross Streets | Brock St S & Burns St E |
| Neighbourhood | Downtown Whitby |
| Area | Durham |
Interested in obtaining the full price history for this property?
Contact us!Contact us! Our real estate professionals would be happy to provide a complete listing history with historical sold prices and dates.
| Fronting On | East |
|---|---|
| Special Designations | Unknown |
| Bedrooms | 5 |
| Bathrooms | 4 |
| Lot | 27 x 271 ft |
| Exterior | Brick |
| Air Conditioning | None |
| Fireplace/Stove | Y |
| Basement | Finished, Apartment, Walk-Out, Separate Entrance |
| Garage Type | Attached |
| Garage/Park Spaces | Y |
| Parking Spaces | 3 |
| Heat Source | Gas |
| Heat Type | Forced Air |
| Sewers | Sewer |
The information contained on this site is based in whole or in part on information that is provided under copyright by the Toronto Regional Real Estate Board (TRREB) or by members of The Canadian Real Estate Association (CREA), who are responsible for its accuracy. TRREB and CREA reproduce and distribute this information as a service for their members and assume no responsibility for its accuracy. All information displayed is believed to be accurate but is not guaranteed and should be independently verified. No warranties or representations of any kind are made with respect to the accuracy of such information.
The information provided herein must only be used by consumers that have a bona fide interest in the purchase, sale, or lease of real estate and may not be used for any commercial purpose or any other purpose.
FREE ESTIMATES ARE COMING
Reserve Your Spot To Be Notified
Coming soon to select cities
in North America
(We'll never share your details)




