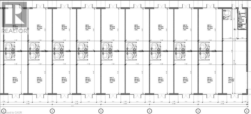
Welcome to Bonds Corner Plaza, ideally located in Woodstock directly across from Toyota. This stunning pre-construction commercial unit is scheduled for completion by April 30, 2026. Whether you are looking to open your own business or add a strong asset to your investment portfolio, this unit offers excellent potential with solid rental demand in the area. Featuring a prime high-traffic location and convenient access to Highway 401, nearby subdivisions, industrial facilities, and major employment hubs, this is an exceptional opportunity you won’t want to miss. (id:47421)
Interested in obtaining the full price history for this property? Contact us!Contact us! Our real estate professionals would be happy to provide a complete listing history with historical sold prices and dates.
Detailed Information
Community Features
High Traffic Area, Industrial Park
Features
Visual exposure
Listing Contract Date
2026-01-18
Maintenance Fee Payment Frequency
Monthly
Ownership Type
Condominium
Property Type
Retail
Transaction Type
For sale
Zoning Description
C4
Building
Basement Type
None
Constructed Date
2026
Stories Total
1
Size (Exterior)
869
Utility Water
Municipal water
Land
Total Size
Unknown
Access Type
Highway access
Sewer
Municipal sewage system
Terms of Use
Please review and agree to the following terms of use to access the listing content:
REALTOR®, REALTORS®, and the REALTOR® logo are certification marks that are owned by REALTOR® Canada Inc. and licensed exclusively to The Canadian Real Estate Association (CREA). These certification marks identify real estate professionals who are members of CREA and who must abide by CREA's By-Laws, Rules, and the REALTOR® Code. The MLS® trademark and the MLS® logo are owned by CREA and identify the quality of services provided by real estate professionals who are members of CREA;
The information contained on this site is based in whole or in part on information that is provided by members of CREA, who are responsible for its accuracy. CREA reproduces and distributes this information as a service for its members and assumes no responsibility for its accuracy;
This website is operated by a brokerage or salesperson who is a member of CREA;
The listing content on this website is protected by copyright and other laws, and is intended solely for the private, non-commercial use by individuals. Any other reproduction, distribution or use of the content, in whole or in part, is specifically forbidden. The prohibited uses include commercial use, "screen scraping", "database scraping", and any other activity intended to collect, store, reorganize or manipulate data on the pages produced by or displayed on this website.
The information contained on this site is based in whole or in part on information that is provided under copyright by the Toronto Regional Real Estate Board (TRREB) or by members of The Canadian Real Estate Association (CREA), who are responsible for its accuracy. TRREB and CREA reproduce and distribute this information as a service for their members and assume no responsibility for its accuracy. All information displayed is believed to be accurate but is not guaranteed and should be independently verified. No warranties or representations of any kind are made with respect to the accuracy of such information. The information provided herein must only be used by consumers that have a bona fide interest in the purchase, sale, or lease of real estate and may not be used for any commercial purpose or any other purpose.