What An Estate! These ones rarely come available! 6.84 acre parcel - this compound offers a sprawling 3456 sq.ft. rancher with loft. 2 large, bright kitchens, 5 bathrooms, 4 bedrooms & separate laundry. Park-quality landscaping with manicured lawns, ample fruit trees, a beauty pond and a fire pit. Lots of covered parking and workshop space between the 2 large detached shops 25'X50' and 20'X50' plus the horse barn which has 5 stalls and a tac room. Also included is 2 power and water hook ups for RVs. * PREC - Personal Real Estate Corporation (id:47421)
Interested in obtaining the full price history for this property? Contact us!Contact us! Our real estate professionals would be happy to provide a complete listing history with historical sold prices and dates.
Detailed Information
Bedrooms
5
Bathrooms
5
Listing Contract Date
2026-01-15
Ownership Type
Freehold
Property Type
Single Family
Structures
Workshop
Transaction Type
For sale
Views
Mountain view
Building
Amenities
Laundry - In Suite
Basement Development
Finished
Basement Type
Unknown (Finished)
Constructed Date
1964
Construction Style (Attachment)
Detached
Heating Fuel
Electric
Stories Total
2
Type
House
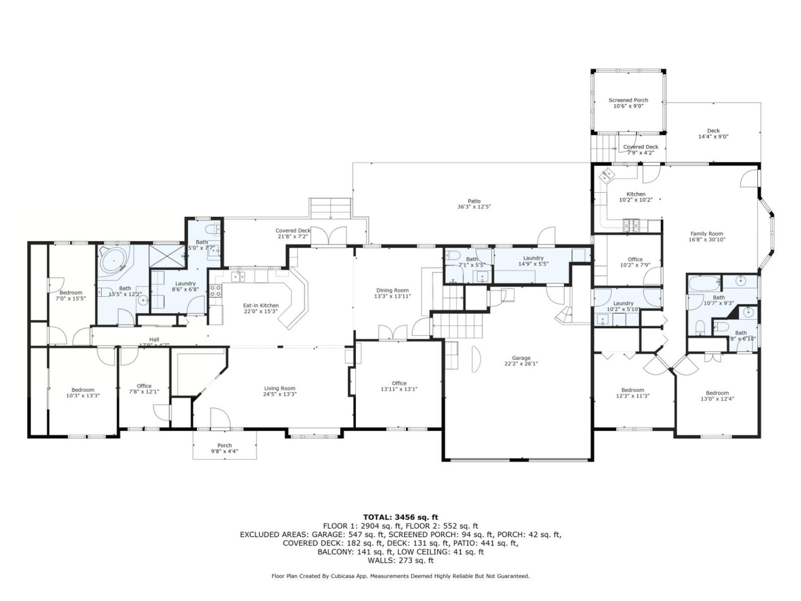
Rooms
Room
Level
Dimensions
Notes
Primary Bedroom
Above
20 ft 3 in x 29 ft 8 in
Other
Above
2 ft 3 in x 10 ft
Living room
Main level
22 ft x 15 ft 3 in
Kitchen
Main level
24 ft 5 in x 13 ft 3 in
Laundry room
Main level
8 ft 6 in x 6 ft 8 in
Office
Main level
7 ft 8 in x 12 ft 1 in
Bedroom 2
Main level
10 ft 3 in x 13 ft 3 in
Bedroom 3
Main level
7 ft x 15 ft 5 in
Office
Main level
13 ft 11 in x 13 ft 1 in
Dining room
Main level
13 ft 3 in x 13 ft 11 in
Laundry room
Main level
14 ft 9 in x 5 ft 5 in
Kitchen
Main level
10 ft 2 in x 10 ft 2 in
Family room
Main level
16 ft 8 in x 30 ft 10 in
Office
Main level
10 ft 2 in x 7 ft 9 in
Bedroom 4
Main level
13 ft x 12 ft 4 in
Bedroom 5
Main level
12 ft 3 in x 11 ft 3 in
Laundry room
Main level
10 ft 2 in x 5 ft 10 in
Parking Spaces
Name
Spaces
Integrated Garage
Land
Total Size
6.84 acres
Acreage
Yes
Size of Irregular Land
6.84
Terms of Use
Please review and agree to the following terms of use to access the listing content:
REALTOR®, REALTORS®, and the REALTOR® logo are certification marks that are owned by REALTOR® Canada Inc. and licensed exclusively to The Canadian Real Estate Association (CREA). These certification marks identify real estate professionals who are members of CREA and who must abide by CREA's By-Laws, Rules, and the REALTOR® Code. The MLS® trademark and the MLS® logo are owned by CREA and identify the quality of services provided by real estate professionals who are members of CREA;
The information contained on this site is based in whole or in part on information that is provided by members of CREA, who are responsible for its accuracy. CREA reproduces and distributes this information as a service for its members and assumes no responsibility for its accuracy;
This website is operated by a brokerage or salesperson who is a member of CREA;
The listing content on this website is protected by copyright and other laws, and is intended solely for the private, non-commercial use by individuals. Any other reproduction, distribution or use of the content, in whole or in part, is specifically forbidden. The prohibited uses include commercial use, "screen scraping", "database scraping", and any other activity intended to collect, store, reorganize or manipulate data on the pages produced by or displayed on this website.
The information contained on this site is based in whole or in part on information that is provided under copyright by the Toronto Regional Real Estate Board (TRREB) or by members of The Canadian Real Estate Association (CREA), who are responsible for its accuracy. TRREB and CREA reproduce and distribute this information as a service for their members and assume no responsibility for its accuracy. All information displayed is believed to be accurate but is not guaranteed and should be independently verified. No warranties or representations of any kind are made with respect to the accuracy of such information. The information provided herein must only be used by consumers that have a bona fide interest in the purchase, sale, or lease of real estate and may not be used for any commercial purpose or any other purpose.